Craig Plan
Ready to build
402 Villages at Hinds Crk Ln, Clinton TN 37716
Home by D.R. Horton
Last updated 2 days ago
The Price Range displayed reflects the base price of the homes built in this community.
You get to select from the many different types of homes built by this Builder and personalize your New Home with options and upgrades.
3 BR
2.5 BA
2 GR
1,645 SQ FT
Claim this listing to update information, get access to exclusive tools and more!

Floorplan 0 1/1
Overview
1 Half Bathroom
2 Stories
Single Family
Craig Plan Info
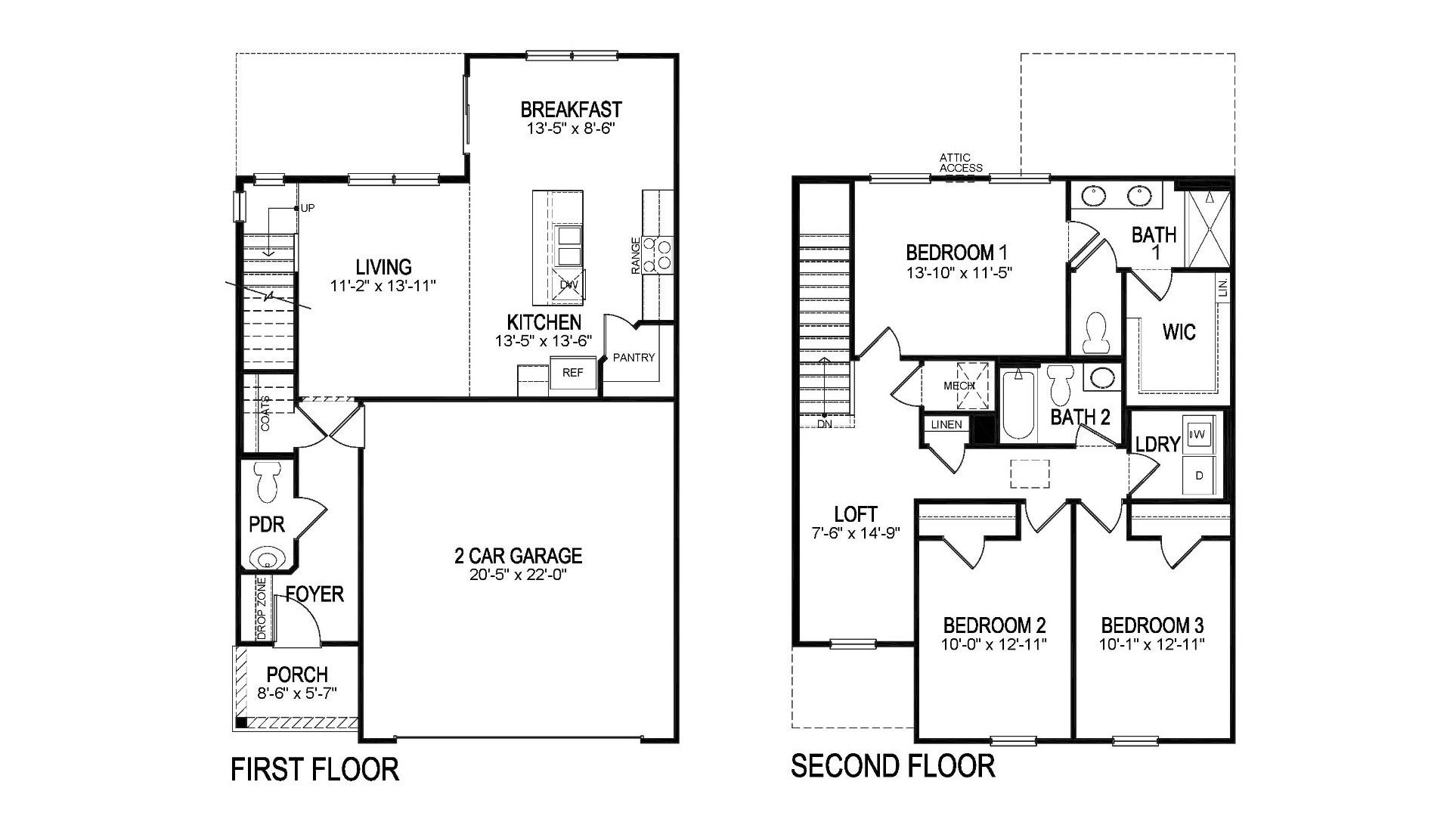
The Craig is one of our two-story floorplans available in the Mary's Pointe community. This thoughtfully designed layout includes 3 bedrooms, 2.5 bathrooms, a 2-car garage, and 1,634 square feet of cozy living space, with several exterior styles to choose from. The spacious eat-in kitchen features a separate dining area that opens to the patio. An island with granite countertops and space for barstools provides ample room for cooking and entertaining. Equipped with stainless steel appliances, the kitchen ensures an easy cooking and cleaning experience. It flows seamlessly into the large living area and includes a convenient half bath just down the hall. Both the living and kitchen spaces are filled with natural light from multiple windows, and an optional dining area overlooks the backyard. The living room also provides direct access to the stairs leading to the second floor. Upstairs, the primary bedroom boasts a large walk-in closet and a private bathroom with double vanities. The laundry room, featuring tile flooring, is conveniently located nearby, along with a secondary bathroom between the two additional bedrooms. Both of these bedrooms are carpeted and feature spacious closets and large windows to bring in plenty of natural light.
Floor plan center
View floor plan details for this property.
- Floor Plans
- Exterior Images
- Interior Images
- Other Media
Neighborhood
Community location & sales center
402 Villages at Hinds Crk Ln
Clinton, TN 37716
402 Villages at Hinds Crk Ln
Clinton, TN 37716
888-355-8096
Schools near Mary's Pointe
- Anderson County
- Andersonville Elementary School
- Norris Middle School
- Anderson County High School
Actual schools may vary. Contact the builder for more information.
Amenities
Home details
Ready to build
Build the home of your dreams with the Craig plan by selecting your favorite options. For the best selection, pick your lot in Mary's Pointe today!
Nearby schools
Anderson County
Andersonville Elementary School
Elementary school. Grades PK to 5.
Public school
Teacher - student ratio: 1:13
Students enrolled: 325
865-494-7695
1951 Mountain Rd, Andersonville, TN, 37705
Norris Middle School
Middle school. Grades 6 to 8.
Public school
Teacher - student ratio: 1:14
Students enrolled: 489
865-494-7171
5 Norris Sq, Norris, TN, 37828
Anderson County High School
High school. Grades 9 to 12.
Public school
Teacher - student ratio: 1:14
Students enrolled: 1036
865-457-4716
130 Maverick Cir, Clinton, TN, 37716
Actual schools may vary. We recommend verifying with the local school district, the school assignment and enrollment process.
Neighborhood amenities
Walmart Supercenter
1.55 miles away
150 Tanner Ln
Naseem Inc
3.17 miles away
2655 Lake City Hwy
Archer's Food Center Inc
3.37 miles away
27 W Norris Rd
Ingles Market
4.44 miles away
190 Clinch Ave
Food City
4.57 miles away
507 S Charles G Seivers Blvd
Walmart Bakery
1.55 miles away
150 Tanner Ln
Wake & Bake LLC
3.42 miles away
3354 Andersonville Hwy
Bb's Cakery
3.89 miles away
Carriage Place
Natural Energy Nutrition Center
3.89 miles away
725 S Charles G Seivers Blvd
Emory Station Nutrition
8.83 miles away
7549 Barnett Way
Burger King
0.78 mile away
2136 N Charles G Seivers Blvd
Speedy Cafe
0.90 mile away
2148 N Charles G Seivers Blvd
SONIC Drive-in
1.02 miles away
2210 N Charles G Seivers Blvd
Arby's
1.06 miles away
2181 N Charles G Seivers Blvd
Buddy's Bar-B-Q
1.07 miles away
2206 N Charles G Seivers Blvd
Starbucks
1.00 mile away
2174 N Charles G Seivers Blvd
Dunkin'
3.89 miles away
2303 Andersonville Hwy
Starbucks
4.57 miles away
507 S Charles G Seivers Blvd
Crossroads Coffeehouse
8.29 miles away
1960 Oak Ridge Hwy
Starbucks
8.73 miles away
401 E Emory Rd
Shoe Show
1.37 miles away
102 Tanner Pl
maurices
1.43 miles away
128 Tanner Pl
Walmart Supercenter
1.55 miles away
150 Tanner Ln
Hammers LLC
2.19 miles away
1230 N Charles G Seivers Blvd
United Grocery Outlet
2.40 miles away
1115 N Charles G Seivers Blvd
Gametme Pizza
3.35 miles away
3332 Andersonville Hwy
Lasierra Mexican Restaurant
3.35 miles away
3330 Andersonville Hwy
1st Last Chance
6.02 miles away
548 N Main St
My Place
7.95 miles away
560 Edgemoor Rd
Please note this information may vary. If you come across anything inaccurate, please contact us.
Builder details
D.R. Horton
In 1978, D.R. Horton broke ground on our first home in Fort Worth, Texas. Since that day, the company has defined its success not by bricks and mortar, but by the satisfaction of the families that make our houses their homes. Our foundation is a single, guiding principle: a value-first dedication to the individual needs of each and every one of our nation’s homebuyers.
From first-time homebuyers to empty nesters, our family of brands provides a home for every stage in life. Our highly-trained, market experts are where you want to live, from New Jersey to Hawaii, providing unique, personalized services tailored to your individual needs. But the real value comes from the quality construction we put into every home, and the peace of mind that comes with a premium-backed warranty from America’s Number One Homebuilder.
We’ve come a long way, and while more people choose our family of brands over any other builder in the country, we never forget the most important thing of all – the families that choose us for their place to call home.
So continue to live out those dreams, America, and know we’ll be here for you every step of the way.
More new homes in Clinton, Tennessee
Craig Plan by D.R. Horton
saved to favorites!
To see all the homes you’ve saved, visit the My Favorites section of your account.
Discover More Great Communities
Select additional listings for more information
Way to Go!
An agent will be in contact soon!
