Craig Plan
Ready to build
203 Eclipse Lane, Knoxville TN 37924
Home by D.R. Horton
Last updated 23 hours ago
The Price Range displayed reflects the base price of the homes built in this community.
You get to select from the many different types of homes built by this Builder and personalize your New Home with options and upgrades.
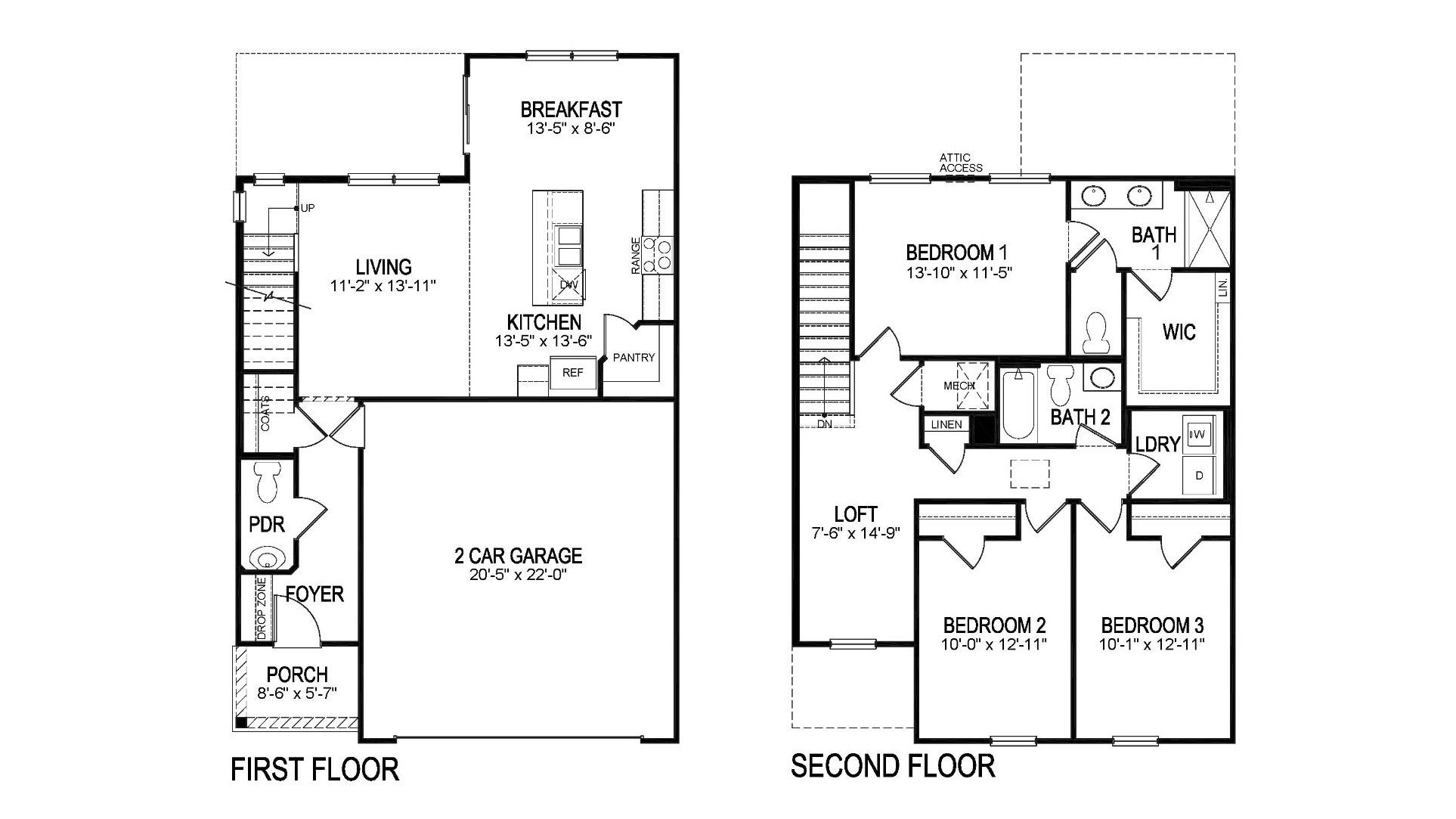
3 BR
2.5 BA
2 GR
1,645 SQ FT
Claim this listing to update information, get access to exclusive tools and more!

Floorplan 0 1/1
Overview
1 Half Bathroom
1645 Sq Ft
2 Bathrooms
2 Car Garage
2 Stories
3 Bedrooms
Single Family
Craig Plan Info
Welcome to the Craig at Ridge at Neals Landing. With 1,645 square feet of thoughtfully crafted living space, this home is perfect for anyone who loves an open, functional layout. Upstairs, you'll find a loft area ideal for a home office, playroom, or lounge. The primary suite offers a private retreat with ample space, a large walk-in closet, and an en-suite bath. Two additional bedrooms share a full bath. Downstairs, the heart of the home lies in the open-concept kitchen and living room. Designed for both everyday living and entertaining, the Craig delivers the ideal balance of functional living areas and a welcoming atmosphere. Come see how this floor plan can make your next house feel like home.
Floor plan center
View floor plan details for this property.
- Floor Plans
- Exterior Images
- Interior Images
- Other Media
Neighborhood
Community location & sales center
203 Eclipse Lane
Knoxville, TN 37924
203 Eclipse Lane
Knoxville, TN 37924
888-355-8096
Schools near The Ridge at Neals Landing
- Knox County Schools
- Sunnyview Primary School
- Carter Middle School
- Carter High School
Actual schools may vary. Contact the builder for more information.
Amenities
Home details
Ready to build
Build the home of your dreams with the Craig plan by selecting your favorite options. For the best selection, pick your lot in The Ridge at Neals Landing today!
Nearby schools
Knox County Schools
Elementary school. Grades PK to 2.
- Public school
- Teacher - student ratio: 1:16
- Students enrolled: 274
412 Bagwell Rd, Knoxville, TN, 37924
865-594-1173
Middle school. Grades 6 to 8.
- Public school
- Teacher - student ratio: 1:14
- Students enrolled: 586
204 N Carter School Rd, Straw Plains, TN, 37871
865-933-3426
High school. Grades 9 to 12.
- Public school
- Teacher - student ratio: 1:13
- Students enrolled: 769
210 N Carter School Rd, Straw Plains, TN, 37871
865-933-3434
Actual schools may vary. We recommend verifying with the local school district, the school assignment and enrollment process.
Neighborhood amenities
Food City
0.29 mile away
7510 Asheville Hwy
Price Less Foods
3.37 miles away
522 Andrew Johnson Hwy
Ian's Market
3.83 miles away
5411 Asheville Hwy
Dannys Market
4.68 miles away
1203 Andrew Johnson Hwy
Walmart Supercenter
4.94 miles away
3051 Kinzel Way
Natural & Organic Foods
2.34 miles away
6408 Asheville Hwy
Walmart Bakery
4.94 miles away
3051 Kinzel Way
Sam's Club Bakery
5.31 miles away
2920 Knoxville Center Dr
Flowers Baking Co
6.28 miles away
4612 Greenway Dr
Oak Lounge
0.71 mile away
7211 Asheville Hwy
Wendy's
1.25 miles away
7407 Strawberry Plains Pike
Aubrey's-Strawberry Plains
1.30 miles away
805 Huckleberry Springs Rd
TCBY
1.35 miles away
7406 Strawberry Plains Pike
McDonald's
1.38 miles away
7402 Strawberry Plains Pike
Dunkin'
5.14 miles away
6115 Asheville Hwy
Starbucks
5.14 miles away
2712 Loves Creek Rd
Starbucks
6.22 miles away
5405 Washington Pike
Pike House Coffee
7.74 miles away
7404 Tazewell Pike
Likewise Coffee LLC
8.11 miles away
1209 E Magnolia Ave
Rustic Rose
2.41 miles away
6326 Asheville Hwy
A Little Something By Devin
3.12 miles away
8124 Cambridge Reserve Dr
Family Dollar
3.44 miles away
540 Andrew Johnson Hwy
Claire's
4.94 miles away
3051 Kinzel Way
Walmart Supercenter
4.94 miles away
3051 Kinzel Way
Oak Lounge
0.71 mile away
7211 Asheville Hwy
Hollywood Lounge
4.39 miles away
3523 E Governor John Sevier Hwy
Saddle Bags Bar & Grill
5.06 miles away
1311 Leconte Rd
Applebee's Grill + Bar
5.48 miles away
2912 Knoxville Center Dr
Xtreme Sports Bar & Grill
6.47 miles away
3017 E Magnolia Ave
Please note this information may vary. If you come across anything inaccurate, please contact us.
Builder details
D.R. Horton
In 1978, D.R. Horton broke ground on our first home in Fort Worth, Texas. Since that day, the company has defined its success not by bricks and mortar, but by the satisfaction of the families that make our houses their homes. Our foundation is a single, guiding principle: a value-first dedication to the individual needs of each and every one of our nation’s homebuyers.
From first-time homebuyers to empty nesters, our family of brands provides a home for every stage in life. Our highly-trained, market experts are where you want to live, from New Jersey to Hawaii, providing unique, personalized services tailored to your individual needs. But the real value comes from the quality construction we put into every home, and the peace of mind that comes with a premium-backed warranty from America’s Number One Homebuilder.
We’ve come a long way, and while more people choose our family of brands over any other builder in the country, we never forget the most important thing of all – the families that choose us for their place to call home.
So continue to live out those dreams, America, and know we’ll be here for you every step of the way.
More new homes in Knoxville, Tennessee
Craig Plan by D.R. Horton
saved to favorites!
To see all the homes you’ve saved, visit the My Favorites section of your account.
Discover More Great Communities
Select additional listings for more information
Way to Go!
An agent will be in contact soon!
