5129 Lost Creek Drive (Craig)
Under Construction
Morristown, TN 37813
Home by D.R. Horton
Last updated 2 days ago
The Price Range displayed reflects the base price of the homes built in this community.
You get to select from the many different types of homes built by this Builder and personalize your New Home with options and upgrades.
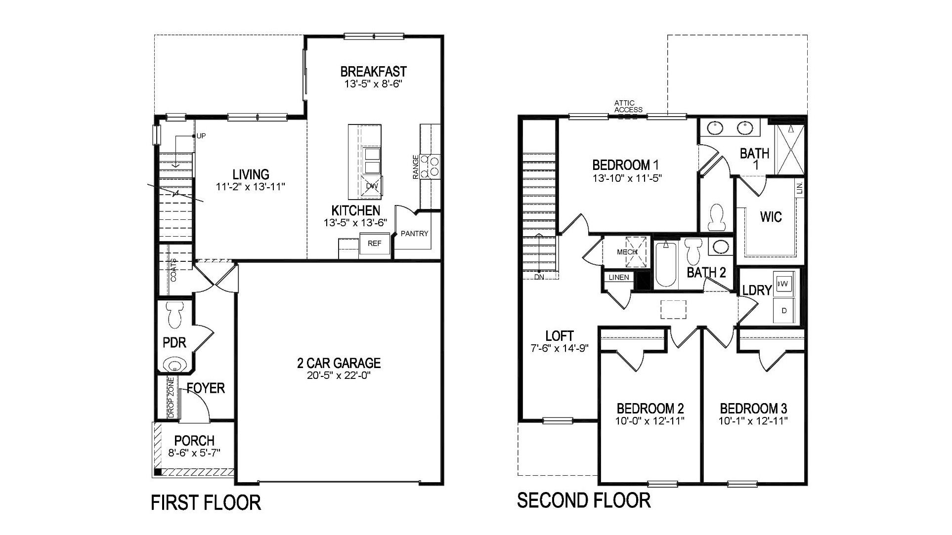
3 BR
2.5 BA
2 GR
1,645 SQ FT
Claim this listing to update information, get access to exclusive tools and more!

Floor Plan 1/2
Overview
1 Half Bathroom
1645 Sq Ft
2 Bathrooms
2 Car Garage
2 Stories
3 Bedrooms
Single Family
5129 Lost Creek Drive (Craig) Home Info
Welcome to 5129 Lost Creek Drive, a move-in ready home available for immediate sale! The Craig is one of our two-story floorplans available in the Millstone Village community. This thoughtfully designed layout includes 3 bedrooms, 2.5 bathrooms, a 2-car garage, and 1,634 square feet of cozy living space, with several exterior styles to choose from. The spacious eat-in kitchen features a separate dining area that opens to the patio. An island with granite countertops and space for barstools provides ample room for cooking and entertaining. Equipped with stainless steel appliances, the kitchen ensures an easy cooking and cleaning experience. It flows seamlessly into the large living area and includes a convenient half bath just down the hall. Both the living and kitchen spaces are filled with natural light from multiple windows, and an optional dining area overlooks the backyard. The living room also provides direct access to the stairs leading to the second floor. D.R. Horton is an Equal Housing Opportunity Builder. Home and community information, including pricing, included features, terms, availability and amenities, are subject to change and prior sale at any time without notice or obligation. Pictures, photographs, colors, features, and sizes are for illustration purposes only and will vary from the homes as built. Images may contain virtual staging.
Floor plan center
View floor plan details for this property.
- Floor Plans
- Exterior Images
- Interior Images
- Other Media
Neighborhood
Community location & sales center
5152 Lost Creek Dr
Morristown, TN 37813
5152 Lost Creek Dr
Morristown, TN 37813
888-251-3094
Schools near Millstone Village
- Hamblen County
- Manley Elementary School
- West View Middle School
- Morristown-hamblen High School West
Actual schools may vary. Contact the builder for more information.
Amenities
Home details
Now building
This home is currently under construction at 5129 Lost Creek Drive and will soon be available for move-in at Millstone Village. Contact D.R. Horton today to lock in your options!
Nearby schools
Hamblen County
Elementary school. Grades PK to 5.
- Public school
- Teacher - student ratio: 1:14
- Students enrolled: 612
551 W Economy Rd, Morristown, TN, 37814
423-585-3874
Middle school. Grades 6 to 8.
- Public school
- Teacher - student ratio: 1:16
- Students enrolled: 579
1 Indian Path, Morristown, TN, 37813
423-581-2407
High school. Grades 9 to 12.
- Public school
- Teacher - student ratio: 1:16
- Students enrolled: 1506
1 Trojan Trl, Morristown, TN, 37813
423-581-1600
Actual schools may vary. We recommend verifying with the local school district, the school assignment and enrollment process.
Neighborhood amenities
ALDI
1.53 miles away
154 W Pin Ln
Walmart Supercenter
1.56 miles away
4331 W Andrew Johnson Hwy
Ingles Market
2.07 miles away
3980 W Andrew Johnson Hwy
Food City
3.65 miles away
2310 Sandstone Dr
West Side Food Market
4.38 miles away
303 Jarnigan Ave
Yummy Cakes & More
1.08 miles away
5225 Bullard Dr
Walmart Bakery
1.56 miles away
4331 W Andrew Johnson Hwy
Flowers Baking Co of Morristown
1.87 miles away
6716 W Andrew Johnson Hwy
2 Lakes Cheesecakes
3.28 miles away
1250 E Old Andrew Johnson Hwy
Healthy Food Herb Vitamin Pet
3.95 miles away
203 E Economy Rd
Timet Hearth Melting Corp
0.68 mile away
5501 S Air Park Blvd
Subway
0.92 mile away
5969 W Andrew Johnson Hwy
McDonald's
0.96 mile away
5995 W Andrew Johnson Hwy
King Donuts
1.00 mile away
5960 W Andrew Johnson Hwy
Charlotte's Family Restaurant
1.05 miles away
6057 W Andrew Johnson Hwy
King Donuts
1.00 mile away
5960 W Andrew Johnson Hwy
Tropical Smoothie Cafe
1.62 miles away
140 Hatfield Dr
Starbucks
2.07 miles away
3980 W Andrew Johnson Hwy
Alpha Nutrition
2.17 miles away
3767 W Andrew Johnson Hwy
Dutch Bros Coffee
2.98 miles away
2850 W Andrew Johnson Hwy
Walmart Supercenter
1.56 miles away
4331 W Andrew Johnson Hwy
Chic Family Boutique
1.66 miles away
4327 W Andrew Johnson Hwy
CC Belle
2.10 miles away
6900 W Andrew Johnson Hwy
Family Dollar
2.48 miles away
3512 W Andrew Johnson Hwy
Kelley Marie Chic Boutique
3.42 miles away
2412 W Andrew Johnson Hwy
Chili's
1.56 miles away
141 Hatfield Dr
Buffalo Wild Wings
2.98 miles away
2843 W Andrew Johnson Hwy
Applebee's Grill + Bar
3.48 miles away
2328 W Andrew Johnson Hwy
LongHorn Steakhouse
7.09 miles away
2410 E Morris Blvd
JJ Lounge
8.72 miles away
2028 N Highway 92
Please note this information may vary. If you come across anything inaccurate, please contact us.
Builder details
D.R. Horton
In 1978, D.R. Horton broke ground on our first home in Fort Worth, Texas. Since that day, the company has defined its success not by bricks and mortar, but by the satisfaction of the families that make our houses their homes. Our foundation is a single, guiding principle: a value-first dedication to the individual needs of each and every one of our nation’s homebuyers.
From first-time homebuyers to empty nesters, our family of brands provides a home for every stage in life. Our highly-trained, market experts are where you want to live, from New Jersey to Hawaii, providing unique, personalized services tailored to your individual needs. But the real value comes from the quality construction we put into every home, and the peace of mind that comes with a premium-backed warranty from America’s Number One Homebuilder.
We’ve come a long way, and while more people choose our family of brands over any other builder in the country, we never forget the most important thing of all – the families that choose us for their place to call home.
So continue to live out those dreams, America, and know we’ll be here for you every step of the way.
More new homes in Morristown, Tennessee
5129 Lost Creek Drive (Craig) by D.R. Horton
saved to favorites!
To see all the homes you’ve saved, visit the My Favorites section of your account.
Discover More Great Communities
Select additional listings for more information
Way to Go!
An agent will be in contact soon!
