CROFTON Plan
Ready to build
31023 Coastal Living Lane, Millville DE 19967
Home by D.R. Horton
Last updated 2 days ago
The Price Range displayed reflects the base price of the homes built in this community.
You get to select from the many different types of homes built by this Builder and personalize your New Home with options and upgrades.
4 BR
2.5 BA
2 GR
2,313 SQ FT
Claim this listing to update information, get access to exclusive tools and more!

Floorplan 0 1/2
Overview
1 Half Bathroom
2 Stories
Townhouse
CROFTON Plan Info
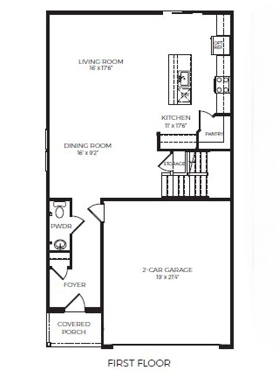
The Crofton, a 2,313 square foot open concept two-story townhome, offers four bedrooms, two and a half bathrooms, and a two-car garage. The inviting foyer offers a convenient powder room, coat closet, and easy access to the garage. The home's well-appointed kitchen boasts substantial cabinet space, granite or quartz countertops, an oversized island, a pantry closet, and stainless steel appliances. The dining area, centered kitchen, and expansive great room are all open and allow for family and friends to gather comfortably. Upstairs, the large owner's bedroom has a walk-in closet and a modern bathroom with a double bowl vanity, a generously sized shower, and a linen closet. There are three additional guest bedrooms, all with plentiful closet space, a guest bathroom with a double bowl vanity, a functional laundry room, and a large hallway linen closet. Pictures, artist renderings, photographs, colors, features, and sizes are for illustration purposes only and will vary from the homes as built. Image representative of plan only and may vary as built. Images are of model home and include custom design features that may not be available in other homes. Furnishings and decorative items not included with home purchase.
Floor plan center
View floor plan details for this property.
- Floor Plans
- Exterior Images
- Interior Images
- Other Media
Neighborhood
Community location & sales center
31023 Coastal Living Lane
Millville, DE 19967
31023 Coastal Living Lane
Millville, DE 19967
888-790-3488
Schools near Belle Shoal at Millville by the Sea
- Indian River School District
- Lord Baltimore Elementary School
- Selbyville Middle School
- Indian River High School
Actual schools may vary. Contact the builder for more information.
Amenities
Home details
Ready to build
Build the home of your dreams with the CROFTON plan by selecting your favorite options. For the best selection, pick your lot in Belle Shoal at Millville by the Sea today!
Nearby schools
Indian River School District
Lord Baltimore Elementary School
Elementary school. Grades PK to 5
Public school
Class ratio: 1: 13
Enrollment: 579
302-537-2700
120 Atlantic Ave, Ocean View, DE, 19970
Selbyville Middle School
Middle school. Grades 6 to 8
Public school
Class ratio: 1: 13
Enrollment: 719
302-436-1020
80 Bethany Rd, Selbyville, DE, 19975
Indian River High School
High school. Grades 9 to 12
Public school
Class ratio: 1: 13
Enrollment: 1088
302-732-1500
29772 Armory Rd, Dagsboro, DE, 19939
Actual schools may vary. We recommend verifying with the local school district, the school assignment and enrollment process.
Neighborhood amenities
Hocker's Grocery & Deli
0.94 mile away
34960 Atlantic Ave
Hocker's SuperCenter
0.94 mile away
34960 Atlantic Ave
Good Earth Market
1.14 miles away
31806 Good Earth Ln
Giant Food
1.46 miles away
38069 Town Center Dr
Weis Markets
1.56 miles away
36731 Old Mill Rd
Morning Buns Bake Shop
1.62 miles away
35715 Atlantic Ave
Beach Break Bakery & Cafe
2.66 miles away
7 Canal Ct
Three Blonde Bakers
3.62 miles away
5 Garfield Pkwy
Nadine's Coastal Cupcakes & Sweets
4.68 miles away
38130 Jetty Ln
Sweet Disposition
5.12 miles away
38290 London Ave
Birch Tree Cafe
0.99 mile away
31826 Good Earth Ln
Shaka Shack LLC
1.02 miles away
35308 Atlantic Ave
Al Casapulla's Subs Steaks-PZZ
1.11 miles away
35265 Atlantic Ave
Agape Creamery LLC
1.21 miles away
35287 Atlantic Ave
Perucci's
1.31 miles away
35507 Atlantic Ave
Starbucks
1.46 miles away
38069 Town Center Dr
Fractured Prune
1.57 miles away
210 Town Center Dr
Drifting Grounds Coffee House
1.84 miles away
117 Atlantic Ave
Dunkin'
4.12 miles away
33364 S Pennsylvania Ave
Starbucks
4.68 miles away
31221 Americana Pkwy
R Lynne Boutique
1.82 miles away
35849 Atlantic Ave
The Coastal Cottage
1.96 miles away
101 Atlantic Ave
Lete
2.44 miles away
1934 Route 1
Crazy Ladyz
2.69 miles away
9 Atlantic Ave
Delaware Surf Co
2.73 miles away
7 Town Rd
Hooked Up Ale House & Raw Bar
1.46 miles away
38069 Town Center Dr
Sedona
4.05 miles away
26 N Pennsylvania Ave
Bethany Boathouse
4.09 miles away
39817 Hickman Plaza Rd
Scotty's Bayside Tavern
4.61 miles away
36666 Bluewater Run W
Signatures at Bayside
4.88 miles away
12021 N Haven Dr
Please note this information may vary. If you come across anything inaccurate, please contact us.
Builder details
D.R. Horton
In 1978, D.R. Horton broke ground on our first home in Fort Worth, Texas. Since that day, the company has defined its success not by bricks and mortar, but by the satisfaction of the families that make our houses their homes. Our foundation is a single, guiding principle: a value-first dedication to the individual needs of each and every one of our nation’s homebuyers.
From first-time homebuyers to empty nesters, our family of brands provides a home for every stage in life. Our highly-trained, market experts are where you want to live, from New Jersey to Hawaii, providing unique, personalized services tailored to your individual needs. But the real value comes from the quality construction we put into every home, and the peace of mind that comes with a premium-backed warranty from America’s Number One Homebuilder.
We’ve come a long way, and while more people choose our family of brands over any other builder in the country, we never forget the most important thing of all – the families that choose us for their place to call home.
So continue to live out those dreams, America, and know we’ll be here for you every step of the way.
More new homes in Millville, Delaware
CROFTON Plan by D.R. Horton
saved to favorites!
To see all the homes you’ve saved, visit the My Favorites section of your account.
Discover More Great Communities
Select additional listings for more information
Way to Go!
An agent will be in contact soon!
