9301 Greenway Trl (CROFTON)
Under Construction
Selbyville, DE 19975
Home by D.R. Horton
Last updated 19 hours ago
The Price Range displayed reflects the base price of the homes built in this community.
You get to select from the many different types of homes built by this Builder and personalize your New Home with options and upgrades.
4 BR
2.5 BA
2 GR
2,313 SQ FT
Claim this listing to update information, get access to exclusive tools and more!

Floor Plan 1/2
Overview
1 Half Bathroom
2 Bathrooms
2 Car Garage
2 Stories
2313 Sq Ft
4 Bedrooms
Multi Family
9301 Greenway Trl (CROFTON) Home Info
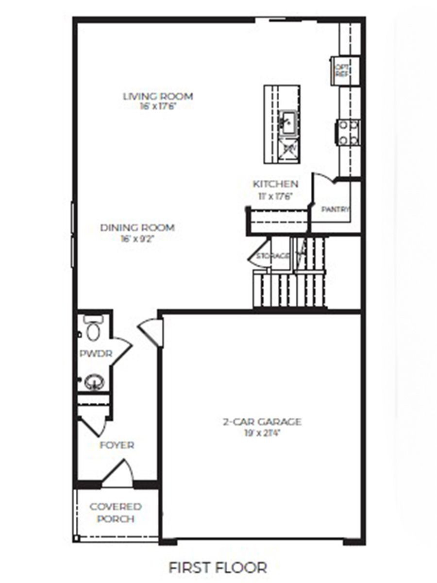
Currently under construction at 9301 Greenway Trail, a new villa home at Coastal Villages in Selbyville, DE awaits you. The impressive Crofton, a 2,313 square foot open concept two-story villa, offers four bedrooms, two and a half bathrooms, and a two-car garage. The inviting foyer offers a convenient powder room, coat closet, and easy access to the garage. The home's well-appointed kitchen boasts modern soft-close white cabinetry, quartz countertops, an oversized island, a pantry closet, and stainless steel appliances. The spacious dining area, centered kitchen, and expansive great room are all open and allow for family and friends to gather comfortably. Upstairs, the large owner's bedroom has a walk-in closet and a modern bathroom with a double bowl vanity, a generously sized shower, and a linen closet. There are three additional guest bedrooms, all with plentiful closet space, a guest bathroom with a double bowl vanity, a functional laundry room, and a large hallway linen closet. Your new home comes complete with white window treatments, a fully sodded, landscaped, and irrigated lawn, and exclusive America's smart home® package, ensuring your peace of mind and comfort in every aspect of living. Pictures, artist renderings, photographs, colors, features, and sizes are for illustration purposes only and will vary from the homes as built. Image representative of plan only and may vary as built. Images are of model home and include custom design features that may not be
Floor plan center
View floor plan details for this property.
- Floor Plans
- Exterior Images
- Interior Images
- Other Media
Neighborhood
Community location & sales center
8615 Crystal Lake Drive
Selbyville, DE 19975
8615 Crystal Lake Drive
Selbyville, DE 19975
888-790-3488
Schools near Coastal Villages
- Indian River School District
- Selbyville Middle School
- Indian River High School
Actual schools may vary. Contact the builder for more information.
Amenities
Home details
Now building
This home is currently under construction at 9301 Greenway Trl and will soon be available for move-in at Coastal Villages. Contact D.R. Horton today to lock in your options!
Nearby schools
Indian River School District
Middle school. Grades 6 to 8.
- Public school
- Teacher - student ratio: 1:13
- Students enrolled: 719
80 Bethany Rd, Selbyville, DE, 19975
302-436-1020
High school. Grades 9 to 12.
- Public school
- Teacher - student ratio: 1:13
- Students enrolled: 1088
29772 Armory Rd, Dagsboro, DE, 19939
302-732-1500
Actual schools may vary. We recommend verifying with the local school district, the school assignment and enrollment process.
Neighborhood amenities
Food Lion
1.82 miles away
32 N Dupont Hwy
Uncle Willie's Market
2.11 miles away
18 N Dupont Hwy
Harris Teeter
4.42 miles away
31221 Americana Pkwy
Food Lion
4.88 miles away
37468 Lion Dr
Food Lion
6.18 miles away
11007 Manklin Creek Rd
Sweet Disposition
2.69 miles away
38290 London Ave
Desserts By Rita
4.18 miles away
12024 Industrial Park Rd
Yummy
5.10 miles away
79 Bramblewood Dr
Nadine's Coastal Cupcakes & Sweets
7.40 miles away
38130 Jetty Ln
Morning Buns Bake Shop
7.61 miles away
35715 Atlantic Ave
APS Market & Grill LLC
1.73 miles away
58 W Church St
La Sierra Tienda
1.73 miles away
58 W Church St
Doyles Restaurant Michael
1.82 miles away
38218 Dupont Blvd
Dunkin'
1.82 miles away
36450 Tidal Rd
Papa Grandes Coastal Taqueria
1.82 miles away
38929 Madison Ave
Dunkin'
1.82 miles away
36450 Tidal Rd
Juicebox LLC
4.41 miles away
31264 Americana Pkwy
Starbucks
4.42 miles away
31221 Americana Pkwy
Dunkin'
6.18 miles away
11001 Manklin Creek Rd
Hungry Donut
6.28 miles away
11021 Nicholas Ln
Family Dollar
2.02 miles away
38223 Dupont Blvd
Lou's Kithcen Creations
5.29 miles away
37473 Leisure Dr
Baseball Armory Clothing Co
6.62 miles away
10 Aurora Ct
T.J. Maxx
7.65 miles away
11421 Coastal Ocean Hwy
Sandy's Dockside Footwear
7.69 miles away
W Virginia Ave
Scotty's Bayside Tavern
4.49 miles away
36666 Bluewater Run W
Cove Bar & Grille
4.50 miles away
31806 Lakeview Dr
Signatures at Bayside
4.61 miles away
12021 N Haven Dr
Don's Seafood & Chophouse
6.21 miles away
11310 Manklin Creek Rd
Delmarva Billiards
6.37 miles away
32448 Royal Blvd
Please note this information may vary. If you come across anything inaccurate, please contact us.
Builder details
D.R. Horton
In 1978, D.R. Horton broke ground on our first home in Fort Worth, Texas. Since that day, the company has defined its success not by bricks and mortar, but by the satisfaction of the families that make our houses their homes. Our foundation is a single, guiding principle: a value-first dedication to the individual needs of each and every one of our nation’s homebuyers.
From first-time homebuyers to empty nesters, our family of brands provides a home for every stage in life. Our highly-trained, market experts are where you want to live, from New Jersey to Hawaii, providing unique, personalized services tailored to your individual needs. But the real value comes from the quality construction we put into every home, and the peace of mind that comes with a premium-backed warranty from America’s Number One Homebuilder.
We’ve come a long way, and while more people choose our family of brands over any other builder in the country, we never forget the most important thing of all – the families that choose us for their place to call home.
So continue to live out those dreams, America, and know we’ll be here for you every step of the way.
More new homes in Selbyville, Delaware
9301 Greenway Trl (CROFTON) by D.R. Horton
saved to favorites!
To see all the homes you’ve saved, visit the My Favorites section of your account.
Discover More Great Communities
Select additional listings for more information
Way to Go!
An agent will be in contact soon!
