Davis Plan
Ready to build
Call for an appointment, Leonard TX 75452
Home by D.R. Horton
Last updated 2 days ago
The Price Range displayed reflects the base price of the homes built in this community.
You get to select from the many different types of homes built by this Builder and personalize your New Home with options and upgrades.
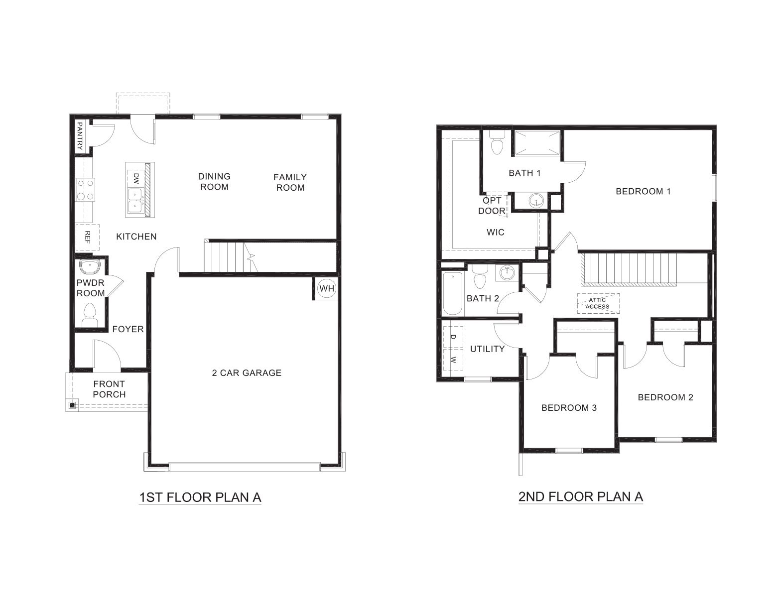
3 BR
2.5 BA
2 GR
1,489 SQ FT
Claim this listing to update information, get access to exclusive tools and more!

Floorplan 0 1/1
Overview
1 Half Bathroom
1489 Sq Ft
2 Bathrooms
2 Car Garage
2 Stories
3 Bedrooms
Single Family
Davis Plan Info
The Davis Plan is located in the community of Leonard Crossing in the charming city of Leonard, Texas. Leonard Crossing homes feature brick or brick and siding elevations and are set on 40 ft lots, ensuring a cohesive neighborhood aesthetic. This 2 story home features 1,489 sf. of living space, with 3 well-proportioned bedrooms provide ample space for family members or guests. 2-1/2 bathrooms offer convenience and privacy. An open concept living area creates a seamless flow between the island kitchen, dining, and living spaces, perfect for family activities and entertaining. The Modern well-equipped kitchen includes an electric range, ample counter space, and storage. The primary bedroom features an en-suite bathroom, providing a private retreat. In every bedroom you'll have carpeted floors and a closet. Laminate flooring in the remainder of the home makes cleaning a breeze. Enjoy outdoor living with a covered patio, ideal for relaxing or entertaining guests. Full two car garage spaces for ample parking and storage. The energy efficiencies included in this new construction home will keep you comfortable in the heat of Summer and warm in the Winter months. Contact us today and find your home at Leonard Crossing. Photos shown here may not depict the specified home and features. Elevations, exterior/ interior colors, options, available upgrades that require an additional charge, and standard features will vary in each community and subject change without notice. Call for det
Floor plan center
View floor plan details for this property.
- Floor Plans
- Exterior Images
- Interior Images
- Other Media
Neighborhood
Community location & sales center
Call for an appointment
Leonard, TX 75452
Call for an appointment
Leonard, TX 75452
888-355-8096
Schools near Leonard Crossing
- Leonard Independent School District
- Leonard Elementary School
- Leonard Junior High School
- Leonard High School
Actual schools may vary. Contact the builder for more information.
Amenities
Home details
Ready to build
Build the home of your dreams with the Davis plan by selecting your favorite options. For the best selection, pick your lot in Leonard Crossing today!
Nearby schools
Leonard Independent School District
Elementary school. Grades PK to 3.
- Public school
- Teacher - student ratio: 1:13
- Students enrolled: 244
300 E Mulberry St, Leonard, TX, 75452
903-587-2316
Middle school. Grades 6 to 8.
- Public school
- Teacher - student ratio: 1:13
- Students enrolled: 200
500 E Hackberry St, Leonard, TX, 75452
903-587-2315
High school. Grades 9 to 12.
- Public school
- Teacher - student ratio: 1:9
- Students enrolled: 255
1000 N Poplar St 2n, Leonard, TX, 75452
903-587-3556
Actual schools may vary. We recommend verifying with the local school district, the school assignment and enrollment process.
Neighborhood amenities
Spring Market
0.17 mile away
420 S US Highway 69
Magers Food Store
7.48 miles away
14712 S State Highway 121
Wolfe City Grocery
9.66 miles away
109 E Main St
Cutting Board Cafe & Bakery
7.03 miles away
211 N Pearl St
Henslees Shaklee Product
9.79 miles away
610 S Mill St
SONIC Drive-in
0.20 mile away
551 S US Highway 69
Florentina's Tex Mex Restaurant
0.28 mile away
507 N US Highway 69
Dairy Queen
0.31 mile away
401 N US Highway 69
Durango Mexican Restaurant
0.44 mile away
715 N Crossroads
Gzims Pizza
0.44 mile away
715 N Crossroads
Opal Dylan Boutique
0.28 mile away
507 N US Highway 69
Double J Boutique
1.74 miles away
17000 S State Highway 78
Please note this information may vary. If you come across anything inaccurate, please contact us.
Builder details
D.R. Horton
In 1978, D.R. Horton broke ground on our first home in Fort Worth, Texas. Since that day, the company has defined its success not by bricks and mortar, but by the satisfaction of the families that make our houses their homes. Our foundation is a single, guiding principle: a value-first dedication to the individual needs of each and every one of our nation’s homebuyers.
From first-time homebuyers to empty nesters, our family of brands provides a home for every stage in life. Our highly-trained, market experts are where you want to live, from New Jersey to Hawaii, providing unique, personalized services tailored to your individual needs. But the real value comes from the quality construction we put into every home, and the peace of mind that comes with a premium-backed warranty from America’s Number One Homebuilder.
We’ve come a long way, and while more people choose our family of brands over any other builder in the country, we never forget the most important thing of all – the families that choose us for their place to call home.
So continue to live out those dreams, America, and know we’ll be here for you every step of the way.
More new homes in Leonard, Texas
Davis Plan by D.R. Horton
saved to favorites!
To see all the homes you’ve saved, visit the My Favorites section of your account.
Discover More Great Communities
Select additional listings for more information
Way to Go!
An agent will be in contact soon!
