DELMAR Plan
Ready to build
Millville DE 19967
Home by D.R. Horton
Last updated 3 days ago
The Price Range displayed reflects the base price of the homes built in this community.
You get to select from the many different types of homes built by this Builder and personalize your New Home with options and upgrades.
3 BR
2.5 BA
1 GR
1,500 SQ FT
Claim this listing to update information, get access to exclusive tools and more!

Floorplan 0 1/2
Overview
1 Car Garage
1 Half Bathroom
1500 Sq Ft
2 Bathrooms
2 Stories
3 Bedrooms
Townhome
DELMAR Plan Info
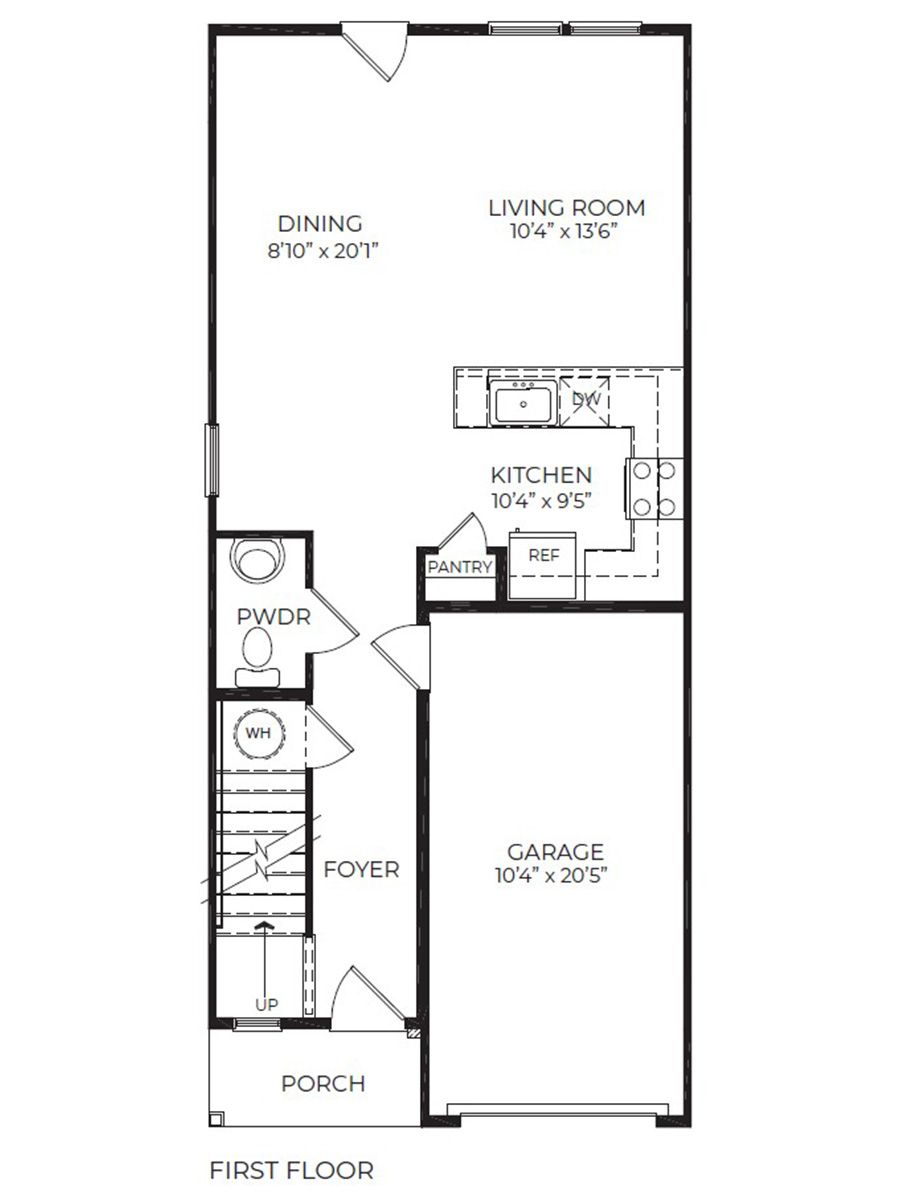
The Delmar, a 1500 square foot open-concept two story townhome, offers three bedrooms, two and a half bathrooms, and a one-car garage. As you enter from the front porch, the inviting foyer leads you to the conveniently located power room and the one-car garage. The home's functional eat-in kitchen features substantial cabinet space, a spacious peninsula island with room for seating, stainless steel appliances and a pantry closet. The kitchen is open to the ample living room and dining area making family gatherings effortless. Upstairs, the spacious main bedroom comes complete with an oversized walk-in closet and a modern bathroom with a double bowl vanity, and generously sized walk-in shower. A linen closet is conveniently located in the hallway. Additionally, there are two sizeable guest bedrooms, each with plenty of closet space, and a guest bathroom with a vanity and tub shower located down the hallway. A functional laundry closet completes the upstairs. Pictures, artist renderings, photographs, colors, features, and sizes are for illustration purposes only and will vary from the homes as built. Image representative of plan only and may vary as built. Images are of model home and include custom design features that may not be available in other homes. Furnishings and decorative items not included with home purchase.
Floor plan center
View floor plan details for this property.
- Floor Plans
- Exterior Images
- Interior Images
- Other Media
Neighborhood
Community location
21484 Farmington Road
Frankford, DE 19945
31023 Coastal Living Lane
Millville, DE 19967
888-790-3488
Schools near West Bay Village at Millville by the Sea
- Indian River School District
Actual schools may vary. Contact the builder for more information.
Amenities
Home details
Ready to build
Build the home of your dreams with the DELMAR plan by selecting your favorite options. For the best selection, pick your lot in West Bay Village at Millville by the Sea today!
Builder details
D.R. Horton
In 1978, D.R. Horton broke ground on our first home in Fort Worth, Texas. Since that day, the company has defined its success not by bricks and mortar, but by the satisfaction of the families that make our houses their homes. Our foundation is a single, guiding principle: a value-first dedication to the individual needs of each and every one of our nation’s homebuyers.
From first-time homebuyers to empty nesters, our family of brands provides a home for every stage in life. Our highly-trained, market experts are where you want to live, from New Jersey to Hawaii, providing unique, personalized services tailored to your individual needs. But the real value comes from the quality construction we put into every home, and the peace of mind that comes with a premium-backed warranty from America’s Number One Homebuilder.
We’ve come a long way, and while more people choose our family of brands over any other builder in the country, we never forget the most important thing of all – the families that choose us for their place to call home.
So continue to live out those dreams, America, and know we’ll be here for you every step of the way.
More new homes in Frankford, Delaware
DELMAR Plan by D.R. Horton
saved to favorites!
To see all the homes you’ve saved, visit the My Favorites section of your account.
Discover More Great Communities
Select additional listings for more information
Way to Go!
An agent will be in contact soon!
