DELMAR Plan
Ready to build
116 Camden Dr, Waynesboro VA 22980
Home by D.R. Horton
Last updated 1 day ago
The Price Range displayed reflects the base price of the homes built in this community.
You get to select from the many different types of homes built by this Builder and personalize your New Home with options and upgrades.
3 BR
2.5 BA
1 GR
1,500 SQ FT
Claim this listing to update information, get access to exclusive tools and more!

Floorplan 0 1/2
Overview
1 Car Garage
1 Half Bathroom
1500 Sq Ft
2 Bathrooms
2 Stories
3 Bedrooms
Townhome
DELMAR Plan Info
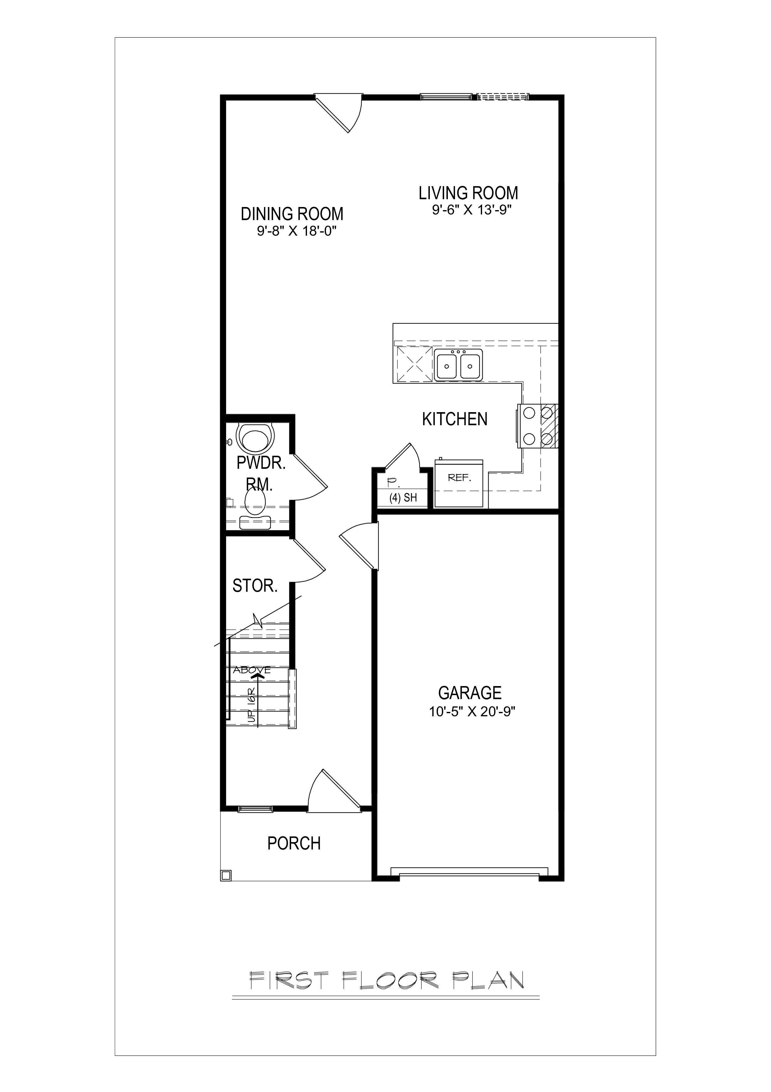
Welcome to the Delmar. This charming 1,500 sq. ft. townhouse offers a perfect blend of comfort and functionality. With 3 spacious bedrooms, 2.5 bathrooms, and a convenient 1-car garage, this home is ideal for modern living. The first floor features a bright and inviting living room that seamlessly flows into the dining area, creating an open, airy space perfect for entertaining. The well-appointed kitchen is equipped with ample cabinetry, a pantry for extra storage, and plenty of counter space for all your culinary needs. A convenient powder room rounds out the first floor, adding to the home's practicality. Upstairs, the large primary suite is a true retreat, complete with a generous walk-in closet and a private ensuite bath featuring a double vanity for added convenience. Two additional bedrooms offer plenty of space, with easy access to a full bathroom on the second floor, perfect for family or guests. With thoughtful design and ample space, this townhouse offers everything you need for comfortable living.
Floor plan center
View floor plan details for this property.
- Floor Plans
- Exterior Images
- Interior Images
- Other Media
Neighborhood
Community location & sales center
116 Camden Dr
Waynesboro, VA 22980
116 Camden Dr
Waynesboro, VA 22980
888-790-3488
Schools near Summit Townes
- Waynesboro City Public Schools
Actual schools may vary. Contact the builder for more information.
Amenities
Home details
Ready to build
Build the home of your dreams with the DELMAR plan by selecting your favorite options. For the best selection, pick your lot in Summit Townes today!
Builder details
D.R. Horton
In 1978, D.R. Horton broke ground on our first home in Fort Worth, Texas. Since that day, the company has defined its success not by bricks and mortar, but by the satisfaction of the families that make our houses their homes. Our foundation is a single, guiding principle: a value-first dedication to the individual needs of each and every one of our nation’s homebuyers.
From first-time homebuyers to empty nesters, our family of brands provides a home for every stage in life. Our highly-trained, market experts are where you want to live, from New Jersey to Hawaii, providing unique, personalized services tailored to your individual needs. But the real value comes from the quality construction we put into every home, and the peace of mind that comes with a premium-backed warranty from America’s Number One Homebuilder.
We’ve come a long way, and while more people choose our family of brands over any other builder in the country, we never forget the most important thing of all – the families that choose us for their place to call home.
So continue to live out those dreams, America, and know we’ll be here for you every step of the way.
More new homes in Waynesboro, Virginia
DELMAR Plan by D.R. Horton
saved to favorites!
To see all the homes you’ve saved, visit the My Favorites section of your account.
Discover More Great Communities
Select additional listings for more information
Way to Go!
An agent will be in contact soon!
