DENTON Plan
Ready to build
21047 Donald Avenue, Robertsdale AL 36567
Home by D.R. Horton
Last updated 21 hours ago
The Price Range displayed reflects the base price of the homes built in this community.
You get to select from the many different types of homes built by this Builder and personalize your New Home with options and upgrades.
4 BR
2 BA
1 GR
2,250 SQ FT
Claim this listing to update information, get access to exclusive tools and more!

Floorplan 1 1/1
Overview
1 Car Garage
1 Story
2 Bathrooms
2250 Sq Ft
4 Bedrooms
Single Family
DENTON Plan Info
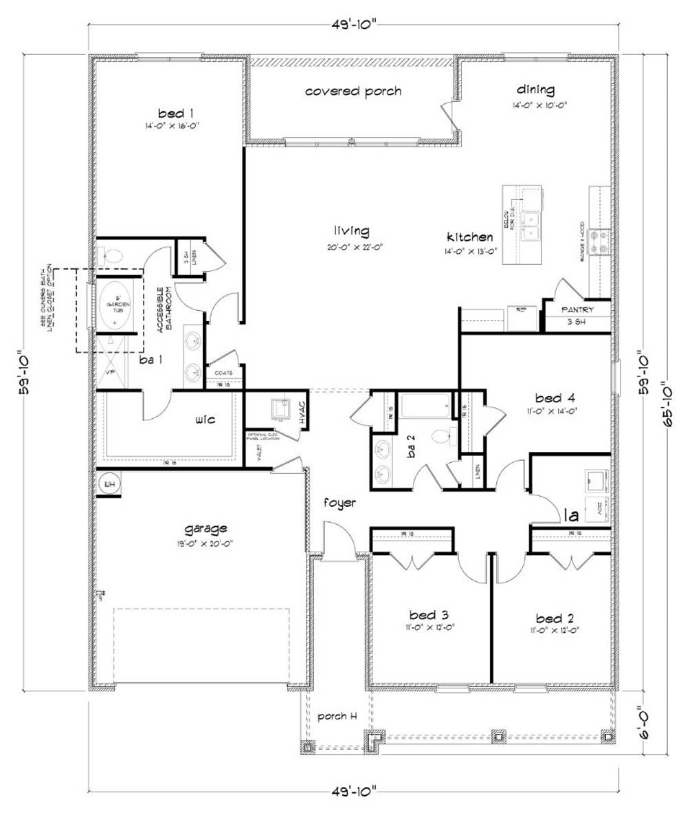
We invite you to explore the Denton floor plan, a beautifully designed one-story home located in the desirable Blackwater Ridge community in Robertsdale, Alabama. This expansive 2,250-square-foot home features 4 bedrooms, 2 bathrooms, and a 2-car garage, providing the perfect space for your family to grow and entertain. From the moment you enter, you'll be impressed by the attention to detail and high-quality finishes throughout. The foyer offers convenient access to a well-appointed bathroom, three bedrooms, the laundry room, the garage, and the inviting living room. The open-concept layout effortlessly connects the great room, kitchen, and dining areas, creating a welcoming and spacious environment that's ideal for both entertaining and everyday living. The core of the home is the kitchen, bathed in natural light and designed to impress. It features abundant counter space, a large center island, shaker-style cabinetry, stainless-steel appliances, sleek granite countertops, and a pantry for additional storage. Whether you're preparing family meals or hosting friends, this kitchen is both functional and stylish. The primary suite is a true sanctuary, offering a spacious walk-in closet and a luxurious ensuite bathroom with a double vanity, a garden tub, a separate shower, and a water closet. The additional three bedrooms are perfect for guests, children, or a home office, and share a well-located second bathroom featuring a tub/shower combination for increased convenience.
Floor plan center
View floor plan details for this property.
- Floor Plans
- Exterior Images
- Interior Images
- Other Media
Neighborhood
Community location & sales center
21047 Donald Avenue
Robertsdale, AL 36567
21047 Donald Avenue
Robertsdale, AL 36567
888-790-3488
Schools near Blackwater Ridge
- Baldwin County Public Schools
- Robertsdale High School
Actual schools may vary. Contact the builder for more information.
Amenities
Home details
Ready to build
Build the home of your dreams with the DENTON plan by selecting your favorite options. For the best selection, pick your lot in Blackwater Ridge today!
Nearby schools
Baldwin County Public Schools
High school. Grades 9 to 12.
- Public school
- Teacher - student ratio: 1:18
- Students enrolled: 1450
21630 State Highway 59 S, Robertsdale, AL, 36567
251-947-4154
Actual schools may vary. We recommend verifying with the local school district, the school assignment and enrollment process.
Builder details
D.R. Horton
In 1978, D.R. Horton broke ground on our first home in Fort Worth, Texas. Since that day, the company has defined its success not by bricks and mortar, but by the satisfaction of the families that make our houses their homes. Our foundation is a single, guiding principle: a value-first dedication to the individual needs of each and every one of our nation’s homebuyers.
From first-time homebuyers to empty nesters, our family of brands provides a home for every stage in life. Our highly-trained, market experts are where you want to live, from New Jersey to Hawaii, providing unique, personalized services tailored to your individual needs. But the real value comes from the quality construction we put into every home, and the peace of mind that comes with a premium-backed warranty from America’s Number One Homebuilder.
We’ve come a long way, and while more people choose our family of brands over any other builder in the country, we never forget the most important thing of all – the families that choose us for their place to call home.
So continue to live out those dreams, America, and know we’ll be here for you every step of the way.
More new homes in Robertsdale, Alabama
DENTON Plan by D.R. Horton
saved to favorites!
To see all the homes you’ve saved, visit the My Favorites section of your account.
Discover More Great Communities
Select additional listings for more information
Way to Go!
An agent will be in contact soon!
