300 Arbor Dr (Dewsbury)
Under Construction
Princeton, TX 75407
Home by D.R. Horton
Last updated 2 days ago
The Price Range displayed reflects the base price of the homes built in this community.
You get to select from the many different types of homes built by this Builder and personalize your New Home with options and upgrades.
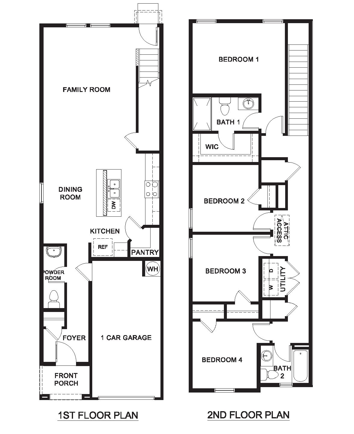
4 BR
2.5 BA
1 GR
1,648 SQ FT
Claim this listing to update information, get access to exclusive tools and more!

Floor Plan 1/1
Overview
1 Car Garage
1 Half Bathroom
1648 Sq Ft
2 Bathrooms
2 Stories
4 Bedrooms
Single Family
300 Arbor Dr (Dewsbury) Home Info
Introducing the Dewsbury, one of our two-story floorplans featured in our Arbor Trails South community in Princeton, Texas! With 2 farmhouse elevations to choose from, the Dewsbury is sure to turn heads. Inside this 4-bedroom, 2.5-bathroom home, you'll find 1,648 square feet of open concept living. Your kitchen, living, and dining areas blend seamlessly into a space perfect for everyday living and entertaining. The kitchen features quality cabinets with hidden hinges and crown molding, hard surface countertops, kitchen island and stainless-steel range and dishwasher, which are sure to make meal prep easy. You'll never be too far from the action with the living and dining area right there. In every bedroom you'll have carpeted floors and a closet in each room. The primary bedroom has its own attached bathroom that features a walk-in closet and all the space you need to get ready in the morning. Enjoy bedrooms upstairs with a large shower in your main bedroom ensuite. Contact us today and find your home at Arbor Trails! Photos shown here may not depict the specified home and features. Elevations, exterior/ interior colors, options, available upgrades that require an additional charge, and standard features will vary in each community and subject change without notice. Call for details.
Floor plan center
View floor plan details for this property.
- Floor Plans
- Exterior Images
- Interior Images
- Other Media
Neighborhood
Community location & sales center
6931 Jessamine Dr
Princeton, TX 75407
6931 Jessamine Dr
Princeton, TX 75407
888-355-8096
Schools near Arbor Trails South
- Princeton Independent School District
- Princeton High School
Actual schools may vary. Contact the builder for more information.
Amenities
Home details
Now building
This home is currently under construction at 300 Arbor Dr and will soon be available for move-in at Arbor Trails South. Contact D.R. Horton today to lock in your options!
Nearby schools
Princeton Independent School District
High school. Grades 9 to 12.
- Public school
- Teacher - student ratio: 1:16
- Students enrolled: 1521
1000 E Princeton Dr, Princeton, TX, 75407
469-952-5405
Actual schools may vary. We recommend verifying with the local school district, the school assignment and enrollment process.
Builder details
D.R. Horton
In 1978, D.R. Horton broke ground on our first home in Fort Worth, Texas. Since that day, the company has defined its success not by bricks and mortar, but by the satisfaction of the families that make our houses their homes. Our foundation is a single, guiding principle: a value-first dedication to the individual needs of each and every one of our nation’s homebuyers.
From first-time homebuyers to empty nesters, our family of brands provides a home for every stage in life. Our highly-trained, market experts are where you want to live, from New Jersey to Hawaii, providing unique, personalized services tailored to your individual needs. But the real value comes from the quality construction we put into every home, and the peace of mind that comes with a premium-backed warranty from America’s Number One Homebuilder.
We’ve come a long way, and while more people choose our family of brands over any other builder in the country, we never forget the most important thing of all – the families that choose us for their place to call home.
So continue to live out those dreams, America, and know we’ll be here for you every step of the way.
More new homes in Princeton, Texas
300 Arbor Dr (Dewsbury) by D.R. Horton
saved to favorites!
To see all the homes you’ve saved, visit the My Favorites section of your account.
Discover More Great Communities
Select additional listings for more information
Way to Go!
An agent will be in contact soon!
