DONNER Plan
Ready to build
4222 Misty Woods Way, Sparks NV 89436
Home by D.R. Horton
at Golden Eagle
Last updated 2 days ago
The Price Range displayed reflects the base price of the homes built in this community.
You get to select from the many different types of homes built by this Builder and personalize your New Home with options and upgrades.
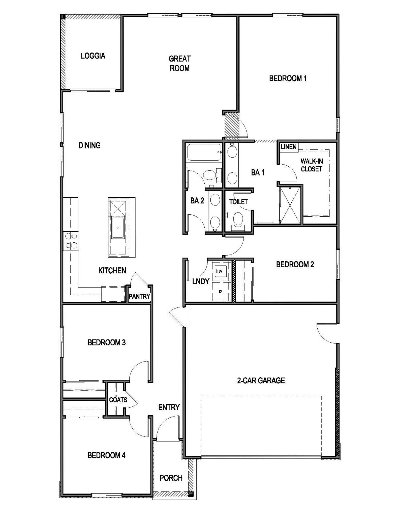
4 BR
2 BA
2 GR
1,736 SQ FT
Claim this listing to update information, get access to exclusive tools and more!

Floorplan 0 1/2
Overview
1 Story
1736 Sq Ft
2 Bathrooms
2 Car Garage
4 Bedrooms
Single Family
DONNER Plan Info
The Donner floorplan is a single-story home found exclusively at our Golden Eagle community in Sparks, Nevada. Inside this 4-bedroom, 2-bathroom home, you'll find 1,736 square feet of comfortable living. The kitchen features shaker-style cabinets, quartz countertops, and stainless-steel appliances. The Donner is an open-concept floorplan, so when cooking, you'll never be too far from the action happening in the living room and dining area. In each of the 4 bedrooms, you'll find carpeted floors and ample closet space. Whether these rooms become bedrooms, office spaces, or other bonus rooms, the option is yours. The primary bedroom has its own attached bathroom that features a large walk-in closet. Sharing a sink isn't a worry with the double vanity, and you also get additional privacy with a separate door for the toilet and shower. The smart home technology integrated into each home means peace of mind at your fingertips. Find security and control through the Qolsys panel, your phone, or voice and when you want to add additional smart home tech, easily integrate with Z-wave or Bluetooth technology. Contact us today and learn more about the Donner plan at Golden Eagle!
Floor plan center
View floor plan details for this property.
- Floor Plans
- Exterior Images
- Interior Images
- Other Media
Neighborhood
Community location & sales center
4222 Misty Woods Way
Sparks, NV 89436
4222 Misty Woods Way
Sparks, NV 89436
888-355-8096
Schools near Golden Eagle
- Washoe County School District
Actual schools may vary. Contact the builder for more information.
Amenities
Home details
Ready to build
Build the home of your dreams with the DONNER plan by selecting your favorite options. For the best selection, pick your lot in Golden Eagle today!
Builder details
D.R. Horton
In 1978, D.R. Horton broke ground on our first home in Fort Worth, Texas. Since that day, the company has defined its success not by bricks and mortar, but by the satisfaction of the families that make our houses their homes. Our foundation is a single, guiding principle: a value-first dedication to the individual needs of each and every one of our nation’s homebuyers.
From first-time homebuyers to empty nesters, our family of brands provides a home for every stage in life. Our highly-trained, market experts are where you want to live, from New Jersey to Hawaii, providing unique, personalized services tailored to your individual needs. But the real value comes from the quality construction we put into every home, and the peace of mind that comes with a premium-backed warranty from America’s Number One Homebuilder.
We’ve come a long way, and while more people choose our family of brands over any other builder in the country, we never forget the most important thing of all – the families that choose us for their place to call home.
So continue to live out those dreams, America, and know we’ll be here for you every step of the way.
More new homes in Sparks, Nevada
DONNER Plan by D.R. Horton
saved to favorites!
To see all the homes you’ve saved, visit the My Favorites section of your account.
Discover More Great Communities
Select additional listings for more information
Way to Go!
An agent will be in contact soon!
