Edgewood Plan
Ready to build
1425 S Lost Springs Drive, Washington UT 84780
Home by D.R. Horton
at Long Valley
Last updated 2 days ago
The Price Range displayed reflects the base price of the homes built in this community.
You get to select from the many different types of homes built by this Builder and personalize your New Home with options and upgrades.
4 BR
2.5 BA
2 GR
2,228 SQ FT
Claim this listing to update information, get access to exclusive tools and more!

Floorplan 0 1/2
Overview
1 Half Bathroom
2 Stories
Single Family
Edgewood Plan Info
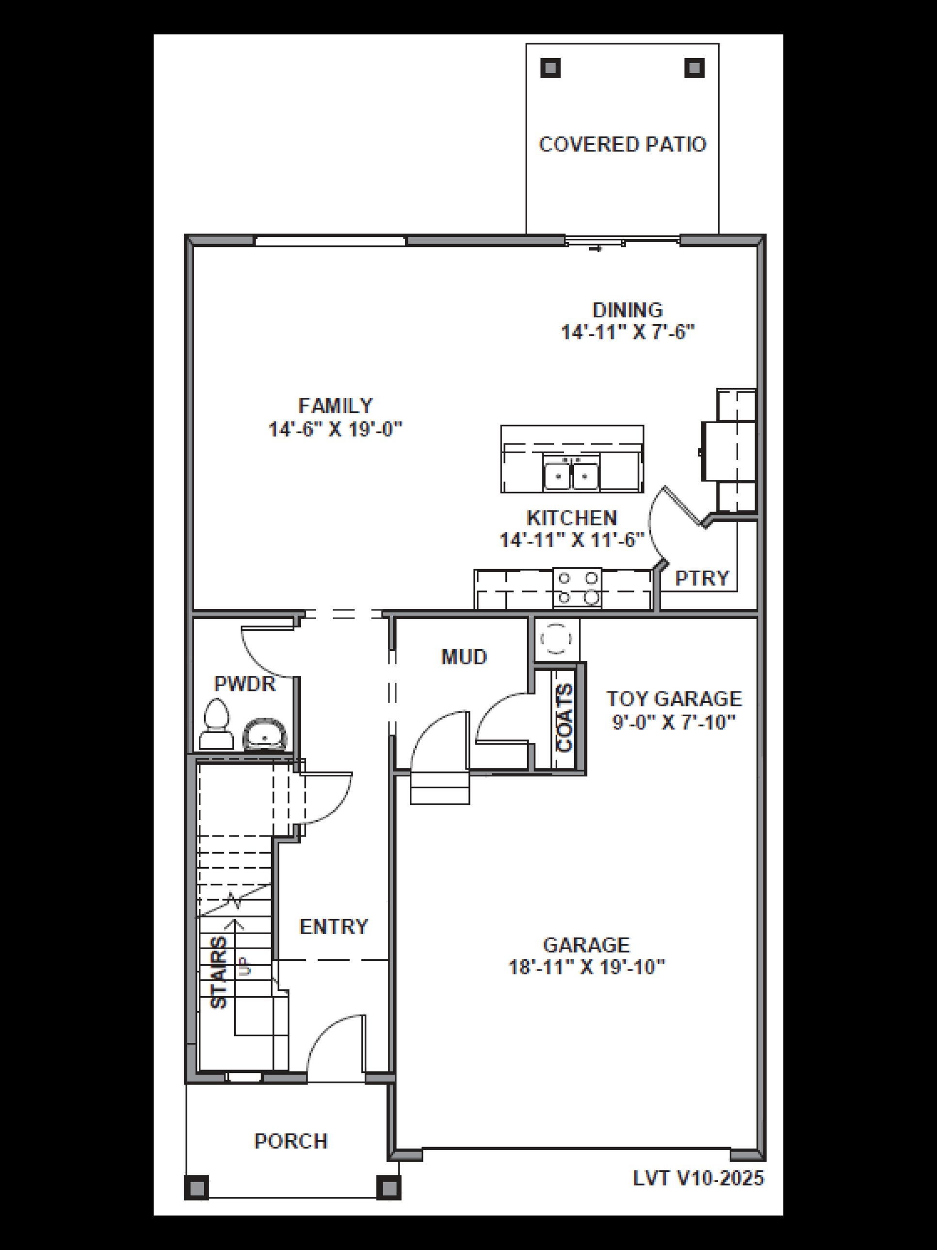
The Edgewood is a beautifully designed two-story home in our Long Valley community, near Washington City. Its efficient layout features 4 bedrooms, 2.5 bathrooms, a 2-car garage and a toy garage. The Edgewood has several attractive exterior designs to choose from, allowing homeowners to find their ideal look. On the first floor, a bright, open-concept living space with family room, dining area and kitchen provides ample room for gathering, entertaining and relaxing. The kitchen includes a walk-in pantry, large center island, stainless steel appliances such as a dishwasher, range, and microwave as well as shaker-style cabinets. A covered patio off the dining room makes it possible to enjoy the outdoors in the shade. The first floor can be accessed from a covered front porch, or a garage that conveniently leads to a mudroom with a coat closet for storing belongings. A powder bath off the entry way is ideally placed for guests. The Edgewood's second story boasts a comfortable primary bedroom with a large walk-in closet, and a full en suite bathroom with bathtub and private, enclosed toilet area. Also upstairs are an additional three bedrooms, two of which have their own walk-in closets. The second floor also has a laundry room where clothing can be conveniently cleaned near the bedrooms, and a second full bathroom. Additionally, a loft offers an attractive gathering space with the flexibility to be used as a sitting area, library or media room. Contact us today to learn
Floor plan center
View floor plan details for this property.
- Floor Plans
- Exterior Images
- Interior Images
- Other Media
Neighborhood
Community location & sales center
1425 S Lost Springs Drive
Washington, UT 84780
1425 S Lost Springs Drive
Washington, UT 84780
888-790-3488
Schools near Long Valley
- Washington District
- Pine View High School
Actual schools may vary. Contact the builder for more information.
Amenities
Home details
Ready to build
Build the home of your dreams with the Edgewood plan by selecting your favorite options. For the best selection, pick your lot in Long Valley today!
Nearby schools
Washington District
High school. Grades 10 to 12.
- Public school
- Teacher - student ratio: 1:21
- Students enrolled: 1143
2850 E 750 N, Saint George, UT, 84790
435-628-5255
Actual schools may vary. We recommend verifying with the local school district, the school assignment and enrollment process.
Builder details
D.R. Horton
In 1978, D.R. Horton broke ground on our first home in Fort Worth, Texas. Since that day, the company has defined its success not by bricks and mortar, but by the satisfaction of the families that make our houses their homes. Our foundation is a single, guiding principle: a value-first dedication to the individual needs of each and every one of our nation’s homebuyers.
From first-time homebuyers to empty nesters, our family of brands provides a home for every stage in life. Our highly-trained, market experts are where you want to live, from New Jersey to Hawaii, providing unique, personalized services tailored to your individual needs. But the real value comes from the quality construction we put into every home, and the peace of mind that comes with a premium-backed warranty from America’s Number One Homebuilder.
We’ve come a long way, and while more people choose our family of brands over any other builder in the country, we never forget the most important thing of all – the families that choose us for their place to call home.
So continue to live out those dreams, America, and know we’ll be here for you every step of the way.
More new homes in Washington, Utah
Edgewood Plan by D.R. Horton
saved to favorites!
To see all the homes you’ve saved, visit the My Favorites section of your account.
Discover More Great Communities
Select additional listings for more information
Way to Go!
An agent will be in contact soon!
