EDMON Plan
Ready to build
314 Sweetspire Street, Moncks Corner SC 29461
Home by D.R. Horton
Last updated 1 day ago
The Price Range displayed reflects the base price of the homes built in this community.
You get to select from the many different types of homes built by this Builder and personalize your New Home with options and upgrades.
4 BR
2.5 BA
2 GR
1,821 SQ FT
Claim this listing to update information, get access to exclusive tools and more!

Floorplan 0 1/1
Overview
1 Half Bathroom
2 Stories
Townhouse
EDMON Plan Info
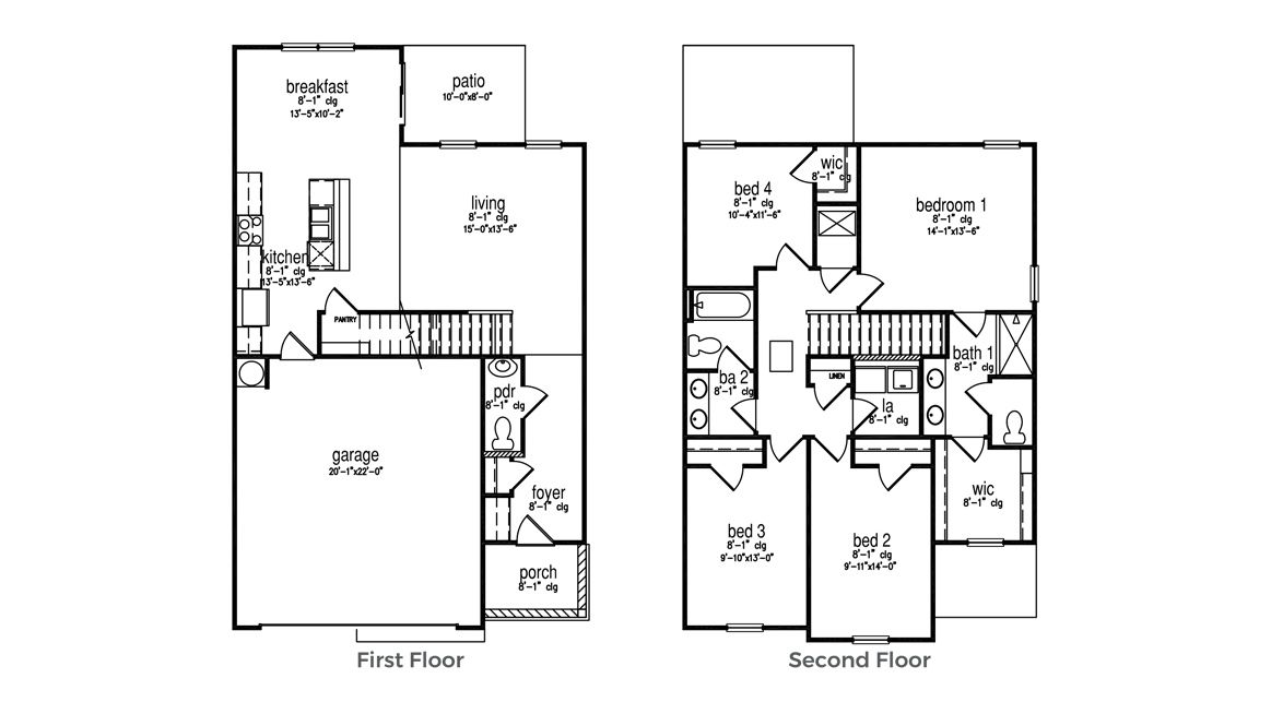
The EDMON floorplan is a two-story floorplan with a large open great room and kitchen. The first floor offers an open floorplan which can be used as a home office, playroom or even additional dining space. On the second floor you are greeted by a laundry room, primary bedroom with a walk-in closet, and 3 additional bedrooms. All new homes will include D.R. Horton's Home is Connected® package, an industry leading suite of smart home products that keeps homeowners connected with the people and place they value the most. This technology allows homeowners to monitor and control their home from the couch or across the globe. Products include touchscreen interface, video doorbell, front door light, z-wave t-stat, and keyless door lock. *Square footage dimensions are approximate. *The photos you see here are for illustration purposes only, interior and exterior features, options, colors and selections will differ. Please reach out to sales agent for options.
Floor plan center
View floor plan details for this property.
- Floor Plans
- Exterior Images
- Interior Images
- Other Media
Neighborhood
Community location & sales center
314 Sweetspire Street <br/> Moncks Corner, SC 29461
314 Sweetspire Street <br/> Moncks Corner, SC 29461
888-355-8096
Schools near Carolina Groves
- Berkeley 01 School District
- Whitesville Elementary School
- Berkeley Middle School
- Berkeley High School
Actual schools may vary. Contact the builder for more information.
Amenities
Home details
Ready to build
Build the home of your dreams with the EDMON plan by selecting your favorite options. For the best selection, pick your lot in Carolina Groves today!
Nearby schools
Berkeley 01 School District
Whitesville Elementary School
Elementary school. Grades PK to 5.
Public school
Teacher - student ratio: 1:18
Students enrolled: 1031
843-899-8880
324 Gaillard Rd, Moncks Corner, SC, 29461
Berkeley Middle School
Middle school. Grades 6 to 8.
Public school
Teacher - student ratio: 1:23
Students enrolled: 1403
843-899-8840
320 N Live Oak Dr, Moncks Corner, SC, 29461
Berkeley High School
High school. Grades 9 to 12.
Public school
Teacher - student ratio: 1:20
Students enrolled: 1776
843-899-8800
406 W Main St, Moncks Corner, SC, 29461
Actual schools may vary. We recommend verifying with the local school district, the school assignment and enrollment process.
Neighborhood amenities
Doyle's Dessert Bar LLC
0.73 mile away
1360 Highway 52
Publix
1.90 miles away
2830 Highway 52
Lowcountry Grocers, LLC
1.94 miles away
100 W Main St
Piggly Wiggly
1.94 miles away
100 W Main St
KJ's Market IGA
1.96 miles away
110 S Highway 52
Barony House
1.70 miles away
401 Altman St
Crisps & Crumbs Bakery
1.90 miles away
Clarksbranch RD
Elegant Treats Bakery LLC
2.94 miles away
405 Corner Square Plz
Walmart Bakery
3.53 miles away
511 N Highway 52
Seafood Jungle
0.94 mile away
978 S Live Oak Dr
Donutmakes
0.94 mile away
978 S Live Oak Dr
Stoner's Pizza Joint
1.62 miles away
1010 Old Highway 52
Krispy Krunchy Chicken
1.68 miles away
1000 Highway 52
Barony House
1.70 miles away
401 Altman St
Juice Bar Moncks Corner Inc
1.80 miles away
102 Rembert C Dennis Blvd
Starbucks
3.37 miles away
469 N Highway 52
Essentials Coffee
5.02 miles away
117A Foxbank Plantation Blvd
Starbucks
7.52 miles away
1730 State Rd
Dunkin'
7.61 miles away
205 S Cross Creek Dr
Family Dollar
1.52 miles away
1013 Old Highway 52
K & H Fashion
1.52 miles away
1013 Old Highway 52
It's Fashion
1.80 miles away
102 Rembert C Dennis Blvd
Citi Trends
1.83 miles away
315 E Main St
Barron's Department Store
1.83 miles away
331 E Main St
Tail Race Tavern
2.79 miles away
418 Barony St
Tire Iron Tavern
3.23 miles away
445 N Highway 52
Applebee's Grill + Bar
3.54 miles away
640 Rembert C Dennis Blvd
Bar 52
7.70 miles away
207 Davishill Ln
Buffalo Wild Wings
7.70 miles away
117 N Creek Dr
Please note this information may vary. If you come across anything inaccurate, please contact us.
Builder details
D.R. Horton
In 1978, D.R. Horton broke ground on our first home in Fort Worth, Texas. Since that day, the company has defined its success not by bricks and mortar, but by the satisfaction of the families that make our houses their homes. Our foundation is a single, guiding principle: a value-first dedication to the individual needs of each and every one of our nation’s homebuyers.
From first-time homebuyers to empty nesters, our family of brands provides a home for every stage in life. Our highly-trained, market experts are where you want to live, from New Jersey to Hawaii, providing unique, personalized services tailored to your individual needs. But the real value comes from the quality construction we put into every home, and the peace of mind that comes with a premium-backed warranty from America’s Number One Homebuilder.
We’ve come a long way, and while more people choose our family of brands over any other builder in the country, we never forget the most important thing of all – the families that choose us for their place to call home.
So continue to live out those dreams, America, and know we’ll be here for you every step of the way.
More new homes in Moncks Corner, South Carolina
EDMON Plan by D.R. Horton
saved to favorites!
To see all the homes you’ve saved, visit the My Favorites section of your account.
Discover More Great Communities
Select additional listings for more information
Way to Go!
An agent will be in contact soon!
