Elle Plan
Ready to build
61 Clubview Drive, Hoschton GA 30548
Home by D.R. Horton
at Twin Lakes
Last updated 1 day ago
The Price Range displayed reflects the base price of the homes built in this community.
You get to select from the many different types of homes built by this Builder and personalize your New Home with options and upgrades.
5 BR
3.5 BA
2 GR
2,721 SQ FT
Claim this listing to update information, get access to exclusive tools and more!

Elevation 2 1/3
Overview
1 Half Bathroom
2 Car Garage
2 Stories
2721 Sq Ft
3 Bathrooms
5 Bedrooms
Single Family
Elle Plan Info
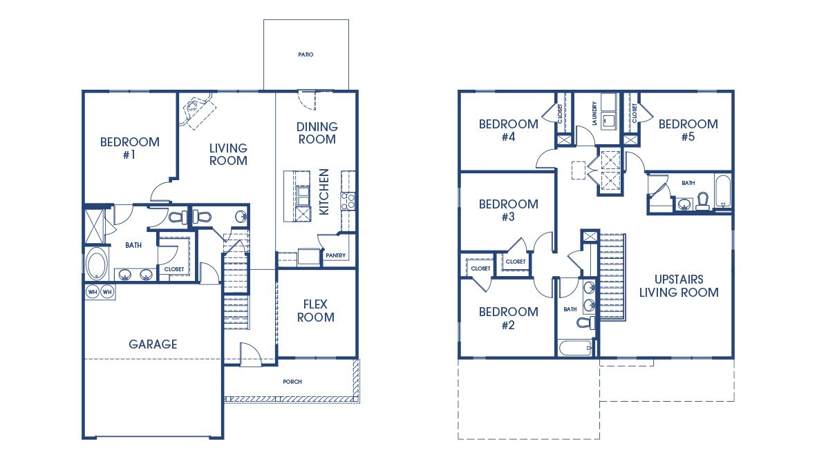
The Elle floorplan at Twin Lakes offers 5 bedrooms, 3 full bathrooms and a convenient powder room in a two-story home covering 2,721 sq feet. The 2-car garage ensures plenty of space for vehicles and extra storage. If a private bedroom suite on the main level is on your wish list, this is the design for you. The adjacent bath features a shower, separate garden tub and dual vanities. This plan also offers an open concept family room that flows seamlessly into a casual dining area. A well-appointed kitchen includes contemporary cabinets, stainless steel appliances and an island with bar top seating. A flex room on the main offers a versatile space that could be formal dining, formal living or a dedicated home office. Upstairs features four generous secondary bedrooms with ample closet space, plus an expansive airy loft, ideal for gaming with friends, movie nights with the family or just relaxing when you need some down time. And you will never be too far from home with Home Is Connected.® Your new home is built with an industry leading suite of smart home products that keep you connected with the people and place you value most. Photos used for illustrative purposes and may not depict actual home.
Floor plan center
View floor plan details for this property.
- Floor Plans
- Exterior Images
- Interior Images
- Other Media
Neighborhood
Community location & sales center
61 Clubview Drive
Hoschton, GA 30548
61 Clubview Drive
Hoschton, GA 30548
888-355-8096
Schools near Twin Lakes
- Jackson County Schools
- West Jackson Intermediate School
- West Jackson Middle School
- Jackson County Comprehensive High School
Actual schools may vary. Contact the builder for more information.
Amenities
Home details
Ready to build
Build the home of your dreams with the Elle plan by selecting your favorite options. For the best selection, pick your lot in Twin Lakes today!
Nearby schools
Jackson County Schools
Elementary school. Grades 3 to 5.
- Public school
- Teacher - student ratio: 1:13
- Students enrolled: 1184
391 E Jefferson St, Hoschton, GA, 30548
706-654-2044
Middle school. Grades 6 to 8.
- Public school
- Teacher - student ratio: 1:15
- Students enrolled: 1502
400 Gum Springs Church Rd, Jefferson, GA, 30549
706-654-2775
High school. Grades 9 to 12.
- Public school
- Teacher - student ratio: 1:19
- Students enrolled: 1833
1668 Winder Hwy, Jefferson, GA, 30549
706-367-5003
Actual schools may vary. We recommend verifying with the local school district, the school assignment and enrollment process.
Neighborhood amenities
Brasleton Fine Foods
1.54 miles away
9924 Davis St
Publix
3.16 miles away
6055 Highway 124 W
Publix
6.06 miles away
401 Gainesville Hwy
Midland Superette
6.39 miles away
121 W Midland Ave
Ingles Market
6.45 miles away
285 N Broad St
Sugar N Proof
0.88 mile away
9924 Davis St
Braselton Barber Shop
1.37 miles away
50 Henry St
Walmart Bakery
6.75 miles away
440 Atlanta Hwy NW
Hunt Brothers Pizza
0.51 mile away
2934 Highway 53
Sliced
0.75 mile away
21 City Sq
Fergusson's on the Square
0.78 mile away
39 City Sq
Hoschton Cafe
0.84 mile away
28 Bell Ave
Dunkin'
1.72 miles away
45 Braselton Commons
Dunkin'
4.76 miles away
2630 Old Winder Hwy
Starbucks
4.93 miles away
5748 Old Winder Hwy
Starbucks
6.46 miles away
283 N Broad St
Vintage Peach Boutique
0.78 mile away
37 City Sq
Silly Kitties Boutique
3.09 miles away
81 Emma Cir
Family Dollar
3.13 miles away
6165 Highway 124 W
Tiam Career Dress
3.57 miles away
1309 Old Victron School Rd
Georgia Spirit Wear
4.00 miles away
629 Wellington Dr
L'auberge Lounge
3.77 miles away
100 Rue Charlemagne Dr
Franchising Inc Rosati's
4.52 miles away
1408 Highway 124
Rosati's Sports Pub
4.52 miles away
1408 Highway 124
Houndstooth Grill & Tavern
4.55 miles away
6323 Grand Hickory Dr
Fryars Tavern
4.62 miles away
715 Highway 211 NW
Please note this information may vary. If you come across anything inaccurate, please contact us.
Builder details
D.R. Horton
In 1978, D.R. Horton broke ground on our first home in Fort Worth, Texas. Since that day, the company has defined its success not by bricks and mortar, but by the satisfaction of the families that make our houses their homes. Our foundation is a single, guiding principle: a value-first dedication to the individual needs of each and every one of our nation’s homebuyers.
From first-time homebuyers to empty nesters, our family of brands provides a home for every stage in life. Our highly-trained, market experts are where you want to live, from New Jersey to Hawaii, providing unique, personalized services tailored to your individual needs. But the real value comes from the quality construction we put into every home, and the peace of mind that comes with a premium-backed warranty from America’s Number One Homebuilder.
We’ve come a long way, and while more people choose our family of brands over any other builder in the country, we never forget the most important thing of all – the families that choose us for their place to call home.
So continue to live out those dreams, America, and know we’ll be here for you every step of the way.
More new homes in Hoschton, Georgia
Elle Plan by D.R. Horton
saved to favorites!
To see all the homes you’ve saved, visit the My Favorites section of your account.
Discover More Great Communities
Select additional listings for more information
Way to Go!
An agent will be in contact soon!
