ELM Plan
Ready to build
1028 Greenbrier Blvd, South Point OH 45680
Home by D.R. Horton
at Greenbrier
Last updated 2 days ago
The Price Range displayed reflects the base price of the homes built in this community.
You get to select from the many different types of homes built by this Builder and personalize your New Home with options and upgrades.
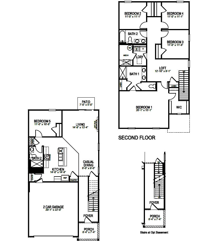
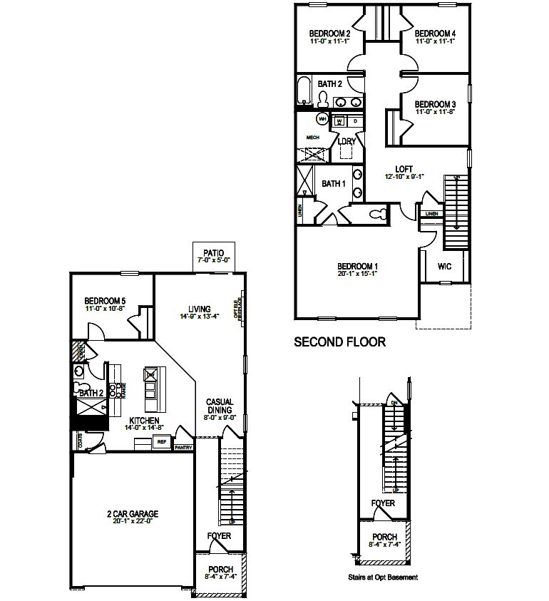
5 BR
3 BA
2 GR
2,415 SQ FT
Claim this listing to update information, get access to exclusive tools and more!

Floorplan 0 1/1
Overview
2 Car Garage
2 Stories
2415 Sq Ft
3 Bathrooms
5 Bedrooms
Single Family
ELM Plan Info
Welcome to the Elm, a spacious and versatile new construction home floorplan! Step into an open and inviting layout perfect for both relaxation and entertainment. This home boasts a well-appointed kitchen ideal for home cooks and gatherings featuring shaker style cabinets, quartz countertops, stainless steel appliances, and a large center island. The adjoining casual dining and expansive living room create a seamless flow, making it easy to enjoy time with family and friends. Enjoy a first-floor bedroom built convenience! Upstairs, you'll find the serene primary bedroom featuring an ensuite walk-in closet and bathroom with a dual sink vanity, private water room, and walk-in shower. Additionally, find 4 generously sized bedrooms, loft space for entertaining, a spacious laundry room, and full bath with dual sinks. Each Elm includes a smart home system including a Qolsys IQ panel, Z-wave deadbolt, video doorbell, and an Amazon Echo Pop; allowing you to control and monitor your home from your couch or from 500 miles away. Embrace a new level of comfort and modern living with the Elm! Photos representative of plan only and may vary as built.
Floor plan center
View floor plan details for this property.
- Floor Plans
- Exterior Images
- Interior Images
- Other Media
Neighborhood
Community location & sales center
1028 Greenbrier Blvd
South Point, OH 45680
1028 Greenbrier Blvd
South Point, OH 45680
888-790-3488
Schools near Greenbrier
- Lakeview Local Schools
Actual schools may vary. Contact the builder for more information.
Amenities
Home details
Ready to build
Build the home of your dreams with the ELM plan by selecting your favorite options. For the best selection, pick your lot in Greenbrier today!
Builder details
D.R. Horton
In 1978, D.R. Horton broke ground on our first home in Fort Worth, Texas. Since that day, the company has defined its success not by bricks and mortar, but by the satisfaction of the families that make our houses their homes. Our foundation is a single, guiding principle: a value-first dedication to the individual needs of each and every one of our nation’s homebuyers.
From first-time homebuyers to empty nesters, our family of brands provides a home for every stage in life. Our highly-trained, market experts are where you want to live, from New Jersey to Hawaii, providing unique, personalized services tailored to your individual needs. But the real value comes from the quality construction we put into every home, and the peace of mind that comes with a premium-backed warranty from America’s Number One Homebuilder.
We’ve come a long way, and while more people choose our family of brands over any other builder in the country, we never forget the most important thing of all – the families that choose us for their place to call home.
So continue to live out those dreams, America, and know we’ll be here for you every step of the way.
More new homes in South Point, Ohio
ELM Plan by D.R. Horton
saved to favorites!
To see all the homes you’ve saved, visit the My Favorites section of your account.
Discover More Great Communities
Select additional listings for more information
Way to Go!
An agent will be in contact soon!
