7806 N 169 ST (Emerson)
Under Construction
Bennington, NE 68007
Home by D.R. Horton
Last updated 2 days ago
The Price Range displayed reflects the base price of the homes built in this community.
You get to select from the many different types of homes built by this Builder and personalize your New Home with options and upgrades.
4 BR
2.5 BA
2 GR
1,767 SQ FT
Claim this listing to update information, get access to exclusive tools and more!

Floor Plan 1/3
Overview
1 Half Bathroom
1767 Sq Ft
2 Bathrooms
2 Car Garage
2 Stories
4 Bedrooms
Single Family
7806 N 169 ST (Emerson) Home Info
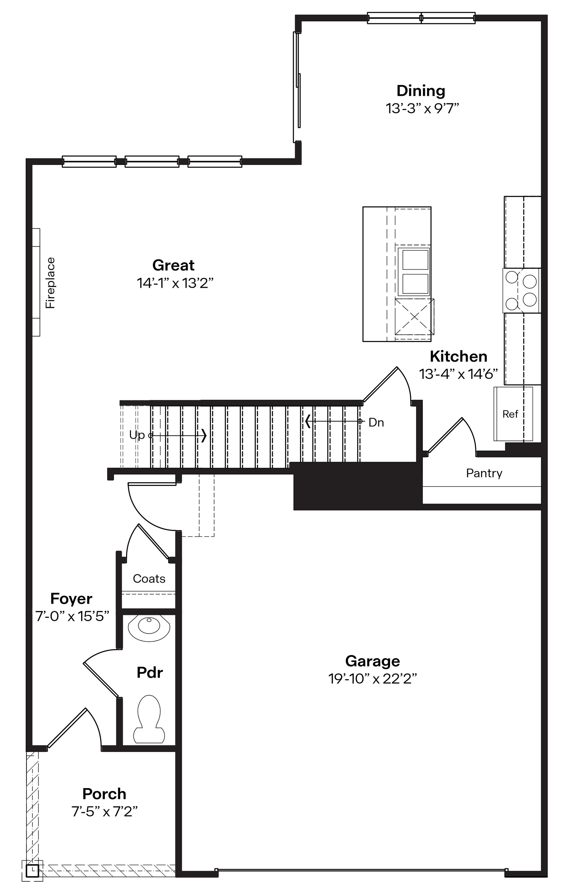
Welcome to 7806 N 169th St in Bennington, Ne. This two-story duplex offers 4 bedrooms, 2.5 bathrooms, and 1,767 sq. ft. of thoughtfully designed living space. The main level features an open layout with a spacious living room and electric fireplace, flowing into a bright dining area and kitchen with a large island, white cabinetry, stainless steel appliances, and a pantry. A guest bath, coat closet, and access to the 2-car garage complete the first floor. Upstairs, the primary suite at the back of the home includes a walk-in closet and private bath with dual vanity and walk-in shower. Two secondary bedrooms sit at the front, along with a second full bath with dual vanity and a centrally located laundry room. With its functional design and inviting spaces, this home is perfect for families of all sizes. Your new home awaits at Majestic Pointe in Bennington today! This home is currently under construction. Photos and video may be similar but not necessarily of subject property, including interior and exterior colors, finishes and appliances.
Floor plan center
View floor plan details for this property.
- Floor Plans
- Exterior Images
- Interior Images
- Other Media
Neighborhood
Community location & sales center
7918 N 169th St
Bennington, NE 68007
7918 N 169th St
Bennington, NE 68007
888-790-3488
Schools near Majestic Pointe Twinhomes
- Bennington Public Schools
- Anchor Pointe Elementary
Actual schools may vary. Contact the builder for more information.
Amenities
Home details
Now building
This home is currently under construction at 7806 N 169 ST and will soon be available for move-in at Majestic Pointe Twinhomes. Contact D.R. Horton today to lock in your options!
Nearby schools
Bennington Public Schools
Elementary school. Grades PK to 5.
- Public school
- Teacher - student ratio: 1:16
- Students enrolled: 475
17007 North Hws Cleveland Blvd, Bennington, NE, 68007
402-238-2166
Actual schools may vary. We recommend verifying with the local school district, the school assignment and enrollment process.
Neighborhood amenities
Walmart Supercenter
2.56 miles away
16960 W Maple Rd
ALDI
2.80 miles away
17240 Evans St
Hy-Vee
3.07 miles away
3410 N 156th St
Fareway
3.54 miles away
13150 Fort St
Baker's Supermarkets
3.92 miles away
13250 W Maple Rd
Walmart Bakery
2.56 miles away
16960 W Maple Rd
Bringing Health Food to the Ghetto
3.40 miles away
2520 N 169th St
GNC
3.92 miles away
13362 W Maple Rd
Natural Healing Tools
4.01 miles away
2401 N 147th St
Walmart Bakery
4.25 miles away
13105 Birch Dr
Big Red Neighborhood Grill & Sports Bar
0.96 mile away
15450 Ida St
Chester's
0.96 mile away
15625 Center West Hadan Dr
Cup & Cone
0.96 mile away
15420 S 2nd St
Nate's Stumble Inn
0.96 mile away
15409 S 2nd St
Dunkin'
2.83 miles away
16250 Evans Plz
Square Donut
2.92 miles away
15825 W Maple Rd
Scooter's Coffeehouse
2.94 miles away
15805 W Maple Rd
Starbucks
2.94 miles away
16959 Evans Plz
Starbucks
3.07 miles away
3410 N 156th St
Walmart Supercenter
2.56 miles away
16960 W Maple Rd
Andy's Boutique
2.63 miles away
3910 N 173rd Ave
Sweet Boutique
2.70 miles away
14242 Fort St
Ross Dress For Less
2.94 miles away
17021 Evans Plz
Target
2.94 miles away
16959 Evans Plz
Big Red Neighborhood Grill & Sports Bar
0.96 mile away
15450 Ida St
Mitch's Pub
2.13 miles away
5106 N 156th St
Geno's Bar & Grill
2.68 miles away
3821 N 167th Ct
Billy O'S Lounge
2.70 miles away
14242 Fort St
Tanners Bar & Grill
2.73 miles away
15505 Ruggles St
Please note this information may vary. If you come across anything inaccurate, please contact us.
Builder details
D.R. Horton
In 1978, D.R. Horton broke ground on our first home in Fort Worth, Texas. Since that day, the company has defined its success not by bricks and mortar, but by the satisfaction of the families that make our houses their homes. Our foundation is a single, guiding principle: a value-first dedication to the individual needs of each and every one of our nation’s homebuyers.
From first-time homebuyers to empty nesters, our family of brands provides a home for every stage in life. Our highly-trained, market experts are where you want to live, from New Jersey to Hawaii, providing unique, personalized services tailored to your individual needs. But the real value comes from the quality construction we put into every home, and the peace of mind that comes with a premium-backed warranty from America’s Number One Homebuilder.
We’ve come a long way, and while more people choose our family of brands over any other builder in the country, we never forget the most important thing of all – the families that choose us for their place to call home.
So continue to live out those dreams, America, and know we’ll be here for you every step of the way.
More new homes in Bennington, Nebraska
7806 N 169 ST (Emerson) by D.R. Horton
saved to favorites!
To see all the homes you’ve saved, visit the My Favorites section of your account.
Discover More Great Communities
Select additional listings for more information
Way to Go!
An agent will be in contact soon!
