ENSLEY Plan
Ready to build
2807 Waterlily Way, Poinciana FL 34759
Home by D.R. Horton
Last updated 23 hours ago
The Price Range displayed reflects the base price of the homes built in this community.
You get to select from the many different types of homes built by this Builder and personalize your New Home with options and upgrades.
4 BR
3 BA
2 GR
2,372 SQ FT
Claim this listing to update information, get access to exclusive tools and more!

Floorplan 0 1/3
Overview
2 Car Garage
2 Stories
2372 Sq Ft
3 Bathrooms
4 Bedrooms
Single Family
ENSLEY Plan Info
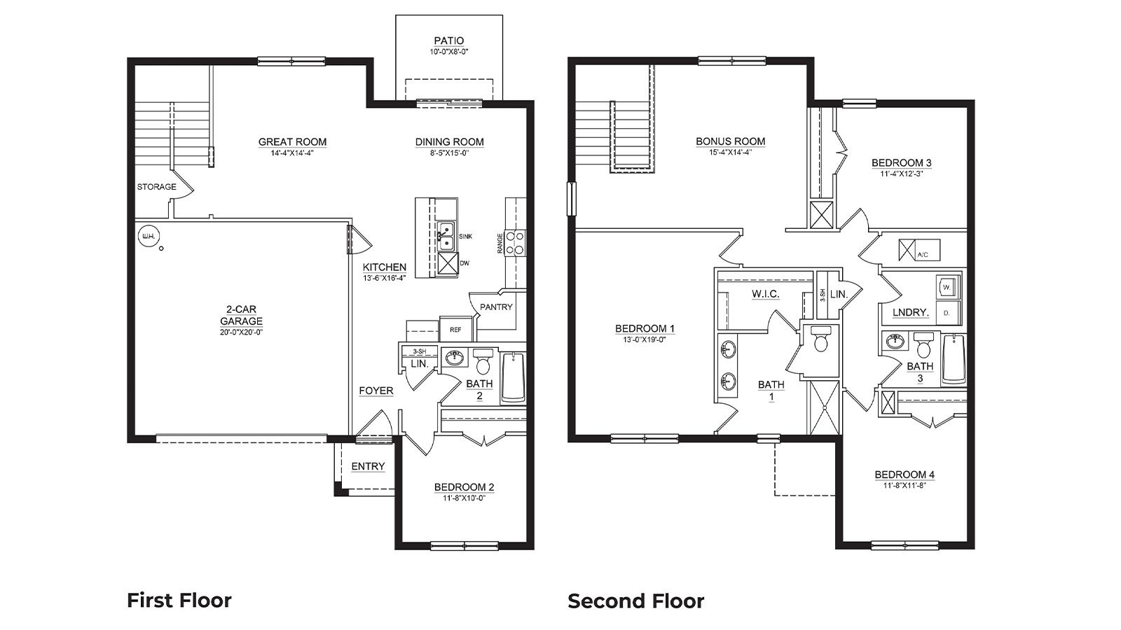
Lake Deer Estates presents the Ensley, available to build in Poinciana, Florida. This two story, all concrete block construction single-family home features 4 bedrooms and 3 bathrooms, optimizing living space with an open concept feel. A foyer welcomes you to a well-appointed kitchen features an island with bar seating, plentiful cabinet and counter space and stainless-steel appliances, while overlooking your dining room, great room and outdoor patio. The first floor features a bedroom and full bathroom at the entrance of the home. As we head up to the second floor, we are greeted with spacious bonus room. Bedroom one, complete with the en suite bathroom is located on the second floor. The second floor is complete with two additional bedrooms, a full bathroom, and a laundry room. Like all homes in Lake Deer Estates, the Ensley includes a Home is Connected smart home technology package which allows you to control your home with your smart device while near or away.
Floor plan center
View floor plan details for this property.
- Floor Plans
- Exterior Images
- Interior Images
- Other Media
Neighborhood
Community location & sales center
2807 Waterlily Way
Poinciana, FL 34759
2807 Waterlily Way
Poinciana, FL 34759
888-355-8096
Schools near Lake Deer Estates
- Polk County Public Schools
- Sandhill Elementary School
- Lake Marion Creek Middle School
- Haines City Senior High School
Actual schools may vary. Contact the builder for more information.
Amenities
Home details
Ready to build
Build the home of your dreams with the ENSLEY plan by selecting your favorite options. For the best selection, pick your lot in Lake Deer Estates today!
Nearby schools
Polk County Public Schools
Elementary school. Grades PK to 5.
- Public school
- Teacher - student ratio: 1:16
- Students enrolled: 991
1801 Tyner Rd, Haines City, FL, 33844
863-419-3166
Elementary-Middle school. Grades 5 to 8.
- Public school
- Teacher - student ratio: 1:26
- Students enrolled: 1044
3055 Lake Marion Creek Dr, Poinciana, FL, 34759
863-427-1471
High school. Grades 9 to 12.
- Public school
- Teacher - student ratio: 1:20
- Students enrolled: 2700
2800 Hornet Dr, Haines City, FL, 33844
863-421-3281
Actual schools may vary. We recommend verifying with the local school district, the school assignment and enrollment process.
Neighborhood amenities
D A Kroger & Associates LLC
5.47 miles away
608 Davinci Pass
Center Food Mart
7.31 miles away
301 Center St
E-Z Storage & Business Center
7.96 miles away
620 Dundee Rd
Winn-Dixie
7.99 miles away
28047 Hwy 27
Walmart Supercenter
8.07 miles away
904 Cypress Pkwy
The Beautiful Cakes
1.94 miles away
341 Erie Dr
Bees Sweet Treats
7.07 miles away
340 Lauderdale Ct
Isla Bonita Bakery
7.19 miles away
310 Edgewood Ct
Walmart Bakery
8.07 miles away
904 Cypress Pkwy
The Beautiful Cakes
1.94 miles away
341 Erie Dr
Isiah's Caribbean Cuisine
2.12 miles away
16202 Indian Creek Dr
Jm's Ice Cream Shop
2.18 miles away
50 Sun Air Blvd E
Locals Bar & Grille-Opening Soon
2.18 miles away
50 Sun Air Blvd E
Laredo Taco Company
2.25 miles away
6519 Marigold Ave
Dale PA K Nutrition
8.18 miles away
1920 Verano Dr
Dunkin'
8.18 miles away
800 Cypress Pkwy
Star Coffee
8.90 miles away
473 Eagle Ridge Dr
La Olla Del Cafe
8.98 miles away
444 US Highway 17 92 N
Dunkin'
9.08 miles away
24195 Highway 27
Family Dollar
2.31 miles away
6501 Marigold Ave
Family Dollar
6.76 miles away
695 Walnut St
Lularoe Lorie Halter LLC
7.80 miles away
11200 W Beach Pkwy
Family Dollar
7.85 miles away
520 Cypress Pkwy
Family Dollar
7.86 miles away
600 Dundee Rd
Cherry Pocket Steak n Seafood
3.78 miles away
3100 Canal Rd
Shady Cove
4.01 miles away
7140 State Road 544 E
Manny' S Bar
7.41 miles away
101 E Main St
New Grove Lounge
8.15 miles away
28390 Highway 27
Liars Lair Saloon
8.50 miles away
14143 Camp Mack Rd
Please note this information may vary. If you come across anything inaccurate, please contact us.
Builder details
D.R. Horton
In 1978, D.R. Horton broke ground on our first home in Fort Worth, Texas. Since that day, the company has defined its success not by bricks and mortar, but by the satisfaction of the families that make our houses their homes. Our foundation is a single, guiding principle: a value-first dedication to the individual needs of each and every one of our nation’s homebuyers.
From first-time homebuyers to empty nesters, our family of brands provides a home for every stage in life. Our highly-trained, market experts are where you want to live, from New Jersey to Hawaii, providing unique, personalized services tailored to your individual needs. But the real value comes from the quality construction we put into every home, and the peace of mind that comes with a premium-backed warranty from America’s Number One Homebuilder.
We’ve come a long way, and while more people choose our family of brands over any other builder in the country, we never forget the most important thing of all – the families that choose us for their place to call home.
So continue to live out those dreams, America, and know we’ll be here for you every step of the way.
More new homes in Poinciana, Florida
ENSLEY Plan by D.R. Horton
saved to favorites!
To see all the homes you’ve saved, visit the My Favorites section of your account.
Discover More Great Communities
Select additional listings for more information
Way to Go!
An agent will be in contact soon!
