Flora Plan
Ready to build
43 Beautyberry Lane, Dallas GA 30132
Home by D.R. Horton
Last updated 19 hours ago
The Price Range displayed reflects the base price of the homes built in this community.
You get to select from the many different types of homes built by this Builder and personalize your New Home with options and upgrades.
4 BR
2.5 BA
2 GR
2,176 SQ FT
Claim this listing to update information, get access to exclusive tools and more!

Floorplan 0 1/1
Overview
1 Half Bathroom
2 Bathrooms
2 Car Garage
2 Stories
2176 Sq Ft
4 Bedrooms
Single Family
Flora Plan Info
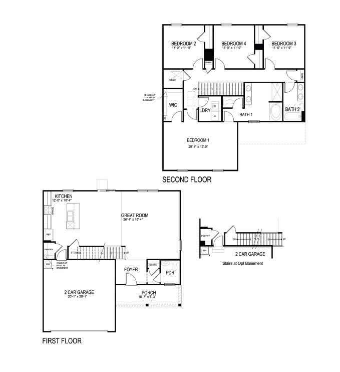
Introducing the stunning Flora plan in Dallas, GA at our welcoming Sheffield Highlands community. This plan is the perfect amount of space for any family, with 4 bedrooms and 2.5 bathrooms in 2,176 square feet on a basement. Step off the large front porch into the open foyer area, with a coat closet and powder room immediately to the right. A large great room greets you from the foyer and flows seamlessly into the kitchen. This open concept allows you to be cooking in dinner in the kitchen while still conversating with family and friends gathered in the living area. The kitchen boasts beautifully crafted cabinets, granite countertops, and all stainless-steel appliances. A quick walk up the staircase from the great room, unfolds the second floor with the laundry room immediately to the left. The primary suite is right off the laundry room, allowing easy access for laundry day. In the primary suite, homeowners can enjoy the walk-in closet, dual vanity, and separate soaking tub and walk-in shower. All 3 additional bedrooms line the other side of the second floor with a dual vanity bathroom at the end of the hallway for easy access. Come out to Sheffield Highlands today to see the beautiful Flora home!
Floor plan center
View floor plan details for this property.
- Floor Plans
- Exterior Images
- Interior Images
- Other Media
Neighborhood
Community location & sales center
43 Beautyberry Lane
Dallas, GA 30132
43 Beautyberry Lane
Dallas, GA 30132
888-355-8096
Schools near Sheffield Highlands
- Paulding County Schools
Actual schools may vary. Contact the builder for more information.
Amenities
Home details
Ready to build
Build the home of your dreams with the Flora plan by selecting your favorite options. For the best selection, pick your lot in Sheffield Highlands today!
Builder details
D.R. Horton
In 1978, D.R. Horton broke ground on our first home in Fort Worth, Texas. Since that day, the company has defined its success not by bricks and mortar, but by the satisfaction of the families that make our houses their homes. Our foundation is a single, guiding principle: a value-first dedication to the individual needs of each and every one of our nation’s homebuyers.
From first-time homebuyers to empty nesters, our family of brands provides a home for every stage in life. Our highly-trained, market experts are where you want to live, from New Jersey to Hawaii, providing unique, personalized services tailored to your individual needs. But the real value comes from the quality construction we put into every home, and the peace of mind that comes with a premium-backed warranty from America’s Number One Homebuilder.
We’ve come a long way, and while more people choose our family of brands over any other builder in the country, we never forget the most important thing of all – the families that choose us for their place to call home.
So continue to live out those dreams, America, and know we’ll be here for you every step of the way.
More new homes in Dallas, Georgia
Flora Plan by D.R. Horton
saved to favorites!
To see all the homes you’ve saved, visit the My Favorites section of your account.
Discover More Great Communities
Select additional listings for more information
Way to Go!
An agent will be in contact soon!
