FRANKLIN Plan
Ready to build
2907 Pineview Drive, Forney TX 75126
Home by D.R. Horton
Last updated 3 days ago
The Price Range displayed reflects the base price of the homes built in this community.
You get to select from the many different types of homes built by this Builder and personalize your New Home with options and upgrades.
5 BR
2.5 BA
2 GR
1,892 SQ FT
Claim this listing to update information, get access to exclusive tools and more!

Floorplan 0 1/1
Overview
1 Half Bathroom
2 Stories
Single Family
FRANKLIN Plan Info
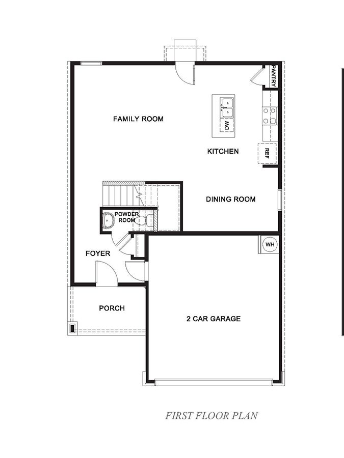
The Franklin plan is one of our two-story homes featured in Maplewood Meadows in Talty, TX. This new home layout offers 2 classic front exteriors, 5 bedrooms, 2.5 baths, 2 car-garage and 1891 square feet of comfortable living. Step inside The Franklin to find an elongated foyer opening to an open concept living room, kitchen, and dining area. The gourmet kitchen faces the living area so you don't miss a thing while cooking and includes quartz counter tops, stainless steel appliances and shaker style cabinetry. The main bedroom is located toward the front of the home on the second story and features an attractive attached bathroom with a walk-in shower, quartz countertops, a grand walk-in closet and plenty of storage space. The second story includes all secondary bedrooms, and two full bathrooms. You'll have carpeted floors in every bedroom and sheet vinyl flooring in your bathrooms and utility room. Additional features include sheet vinyl flooring in entry, living room, and all wet areas, and quartz counter tops in all bathrooms. Contact us today and find your home in Maplewood Meadows by clicking the text with us button or the request information button.
Floor plan center
View floor plan details for this property.
- Floor Plans
- Exterior Images
- Interior Images
- Other Media
Neighborhood
Community location & sales center
2907 Pineview Drive
Forney, TX 75126
2907 Pineview Drive
Forney, TX 75126
888-790-3488
Schools near Maplewood Meadows
- Crandall Independent School District
- Forney Independent School District
- Willet Elementary School
- Rhea Intermediate School
- Themer Middle School
- Forney High School
- Rockwall Independent School District
Actual schools may vary. Contact the builder for more information.
Amenities
Home details
Ready to build
Build the home of your dreams with the FRANKLIN plan by selecting your favorite options. For the best selection, pick your lot in Maplewood Meadows today!
Nearby schools
Forney Independent School District
Willet Elementary School
Elementary school. Grades PK to 4
Public school
Class ratio: 1: 15
Enrollment: 725
469-762-4290
1896 S Gateway Blvd, Forney, TX, 75126
Rhea Intermediate School
Elementary-Middle school. Grades 5 to 6
Public school
Class ratio: 1: 15
Enrollment: 833
469-762-4360
250 Monitor Dr, Forney, TX, 75126
Themer Middle School
Middle school. Grades 7 to 8
Public school
469-762-4100
12503 Fm 1641, Forney, TX, 75126
Forney High School
High school. Grades 9 to 12
Public school
Class ratio: 1: 17
Enrollment: 2272
469-762-4200
1800 Fm 741 S, Forney, TX, 75126
Actual schools may vary. We recommend verifying with the local school district, the school assignment and enrollment process.
Builder details
D.R. Horton
In 1978, D.R. Horton broke ground on our first home in Fort Worth, Texas. Since that day, the company has defined its success not by bricks and mortar, but by the satisfaction of the families that make our houses their homes. Our foundation is a single, guiding principle: a value-first dedication to the individual needs of each and every one of our nation’s homebuyers.
From first-time homebuyers to empty nesters, our family of brands provides a home for every stage in life. Our highly-trained, market experts are where you want to live, from New Jersey to Hawaii, providing unique, personalized services tailored to your individual needs. But the real value comes from the quality construction we put into every home, and the peace of mind that comes with a premium-backed warranty from America’s Number One Homebuilder.
We’ve come a long way, and while more people choose our family of brands over any other builder in the country, we never forget the most important thing of all – the families that choose us for their place to call home.
So continue to live out those dreams, America, and know we’ll be here for you every step of the way.
More new homes in Forney, Texas
FRANKLIN Plan by D.R. Horton
saved to favorites!
To see all the homes you’ve saved, visit the My Favorites section of your account.
Discover More Great Communities
Select additional listings for more information
Way to Go!
An agent will be in contact soon!
