28120 HALLOW TRAIL (FREEPORT)
Under Construction
Elberta, AL 36530
Home by D.R. Horton
at Autumn Lakes
Last updated 21 hours ago
The Price Range displayed reflects the base price of the homes built in this community.
You get to select from the many different types of homes built by this Builder and personalize your New Home with options and upgrades.
4 BR
2 BA
2 GR
1,437 SQ FT
Claim this listing to update information, get access to exclusive tools and more!

Floor Plan 1/1
Overview
1 Story
1437 Sq Ft
2 Bathrooms
2 Car Garage
4 Bedrooms
Single Family
28120 HALLOW TRAIL (FREEPORT) Home Info
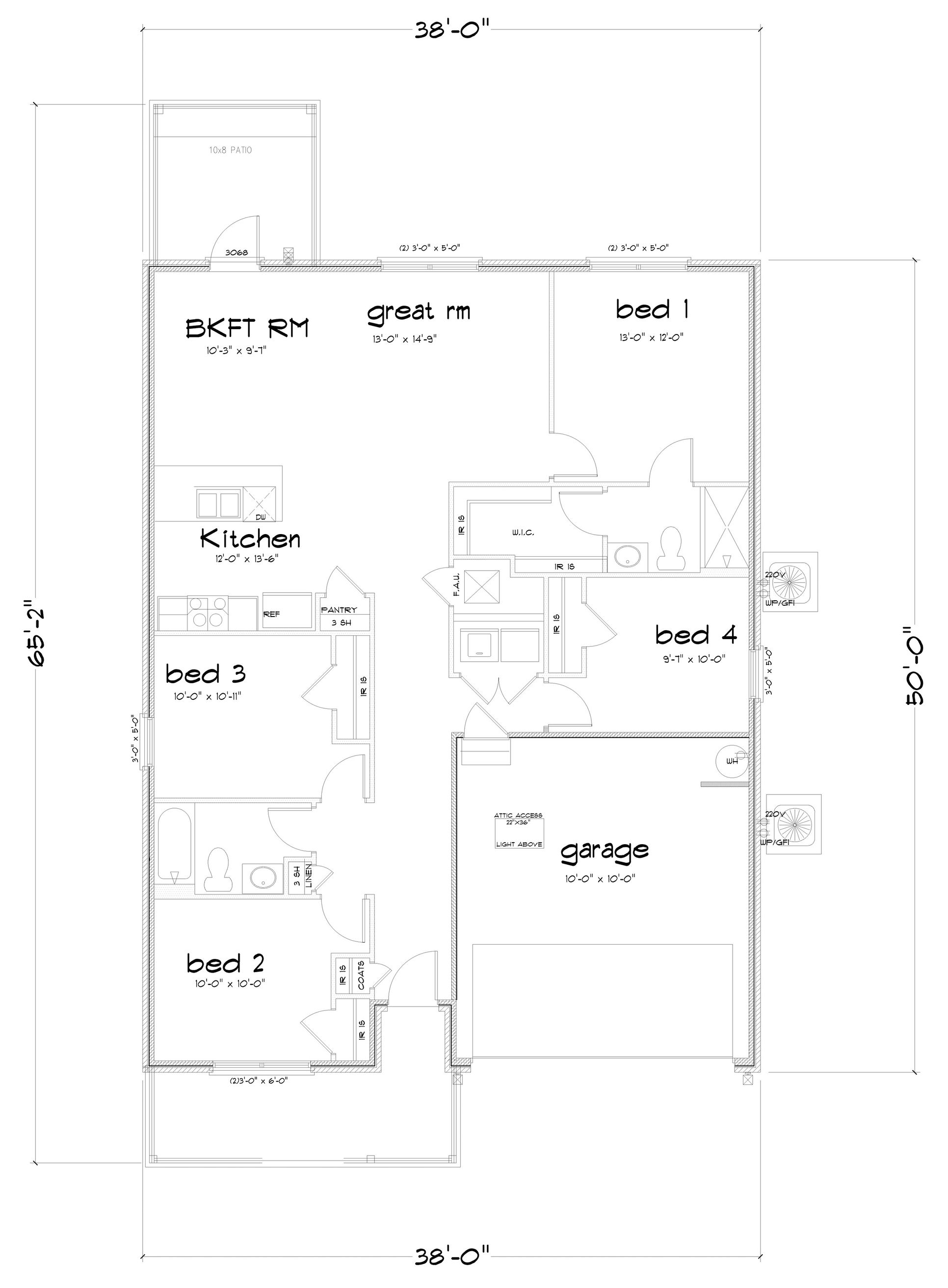
Contact us today to view our new home at 28120 Hallow Trail in the brand new Autumn Lakes subdivision. Our new home community in the beautiful and peaceful Elberta area. This popular floorplan is a one-story floor plan and is sure to catch your attention. This 4-bedroom, 2-bathroom home boasts 1,437 square feet of functionality for convenient and comfortable living. Introducing the Freeport, an expertly designed one-story home set in the scenic Autumn Lakes community in Elberta, Alabama. With 9-foot ceilings throughout and a spacious 1,437 square feet of living space, this 4-bedroom, 2-bathroom home provides ample room for comfort and relaxation. The two-car garage adds convenience and practicality, making this home the perfect fit for modern living. As you step through the front door, you'll be greeted by a bright and inviting foyer. Immediately to your right, you'll find a coat closet for added storage, as well as the first two bedrooms which share a centrally located bathroom boasting a shower/tub combination - ideal for family members or guests. Across the hall, you'll discover direct access to the garage; adjacent to it are the third bedroom and laundry room for ultimate convenience. Continuing past the foyer, the home opens into the expansive great room, where you'll find a seamless flow between the designated areas. The heart of the home is the spacious kitchen, designed for both function and style. It features an island perfect for meal prep or casual dining, gr
Floor plan center
View floor plan details for this property.
- Floor Plans
- Exterior Images
- Interior Images
- Other Media
Neighborhood
Community location & sales center
28025 Hallow Trail
Elberta, AL 36530
28025 Hallow Trail
Elberta, AL 36530
888-790-3488
Schools near Autumn Lakes
- Baldwin County Public Schools
Actual schools may vary. Contact the builder for more information.
Amenities
Home details
Now building
This home is currently under construction at 28120 HALLOW TRAIL and will soon be available for move-in at Autumn Lakes. Contact D.R. Horton today to lock in your options!
Builder details
D.R. Horton
In 1978, D.R. Horton broke ground on our first home in Fort Worth, Texas. Since that day, the company has defined its success not by bricks and mortar, but by the satisfaction of the families that make our houses their homes. Our foundation is a single, guiding principle: a value-first dedication to the individual needs of each and every one of our nation’s homebuyers.
From first-time homebuyers to empty nesters, our family of brands provides a home for every stage in life. Our highly-trained, market experts are where you want to live, from New Jersey to Hawaii, providing unique, personalized services tailored to your individual needs. But the real value comes from the quality construction we put into every home, and the peace of mind that comes with a premium-backed warranty from America’s Number One Homebuilder.
We’ve come a long way, and while more people choose our family of brands over any other builder in the country, we never forget the most important thing of all – the families that choose us for their place to call home.
So continue to live out those dreams, America, and know we’ll be here for you every step of the way.
More new homes in Elberta, Alabama
28120 HALLOW TRAIL (FREEPORT) by D.R. Horton
saved to favorites!
To see all the homes you’ve saved, visit the My Favorites section of your account.
Discover More Great Communities
Select additional listings for more information
Way to Go!
An agent will be in contact soon!
