494 LEATHERTREE LN (GALEN)
Under Construction
Blythewood, SC 29016
Home by D.R. Horton
at Leatherstone
Last updated 22 hours ago
The Price Range displayed reflects the base price of the homes built in this community.
You get to select from the many different types of homes built by this Builder and personalize your New Home with options and upgrades.
4 BR
2.5 BA
2 GR
2,338 SQ FT
Claim this listing to update information, get access to exclusive tools and more!

Floor Plan 1/1
Overview
1 Half Bathroom
2 Bathrooms
2 Car Garage
2 Stories
2338 Sq Ft
4 Bedrooms
Single Family
494 LEATHERTREE LN (GALEN) Home Info
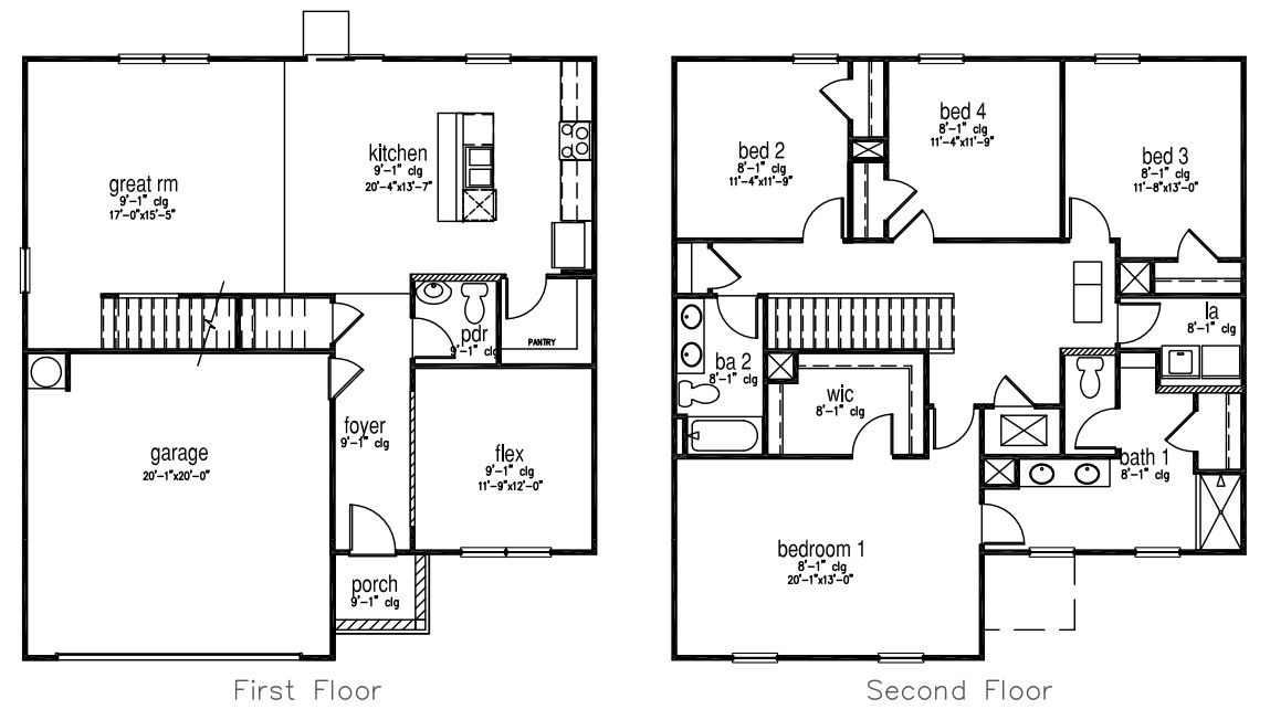
Find your new home in the Galen at 494 Leathertree Lane in Blythewood, SC, a 2-story home with durable Hardie Plank and brick siding. The Galen's classic design offers an open concept main level. The kitchen, featuring a working island with room for seating and an oversized pantry, flows into a casual eating area then into the spacious family room. Luxury vinyl floors finish these main living areas. The kitchen area also comes finished with white quartz countertops and tile backsplash. An additional flex room on the first floor could be a dedicated home office or even a formal dining room. Upstairs includes a large primary bedroom with expansive bath and generous closet. The laundry room, conveniently located near the primary bedroom, and three secondary bedrooms complete the second level. Enjoy the peaceful feel in Leatherstone from the covered front porch or covered back patio. The location of Leatherstone is ideal, as it is located just down the road from I-77 access. The upcoming Scout plant and Downtown Columbia are both just short commutes from this community. Not the mention, you are just down the street from other booming areas such as Killian Road, Hardscrabble Road, and the Town of Blythewood. All of our homes include D.R. Horton's Home is Connected® package, an industry leading suite of smart home products that keeps homeowners connected with the people and place they value the most. The technology allows homeowners to monitor and control their home from the couc
Floor plan center
View floor plan details for this property.
- Floor Plans
- Exterior Images
- Interior Images
- Other Media
Neighborhood
Community location & sales center
2100 Leatherstone Lane
Blythewood, SC 29016
2100 Leatherstone Lane
Blythewood, SC 29016
888-355-8096
Schools near Leatherstone
- Richland 02 School District
- Bethel Hanberry Elementary School
- Muller Road Middle School
- Westwood High School
Actual schools may vary. Contact the builder for more information.
Amenities
Home details
Now building
This home is currently under construction at 494 LEATHERTREE LN and will soon be available for move-in at Leatherstone. Contact D.R. Horton today to lock in your options!
Nearby schools
Richland 02 School District
Elementary school. Grades PK to 5.
- Public school
- Teacher - student ratio: 1:14
- Students enrolled: 759
125 Boney Rd, Blythewood, SC, 29016
803-691-6880
Middle school. Grades 6 to 8.
- Public school
- Teacher - student ratio: 1:17
- Students enrolled: 1246
1031 Muller Rd, Blythewood, SC, 29016
803-691-6851
High school. Grades 9 to 12.
- Public school
- Teacher - student ratio: 1:17
- Students enrolled: 1684
180 Turkey Farm Rd, Blythewood, SC, 29016
803-691-4049
Actual schools may vary. We recommend verifying with the local school district, the school assignment and enrollment process.
Neighborhood amenities
Walmart Supercenter
1.15 miles away
321 Killian Rd
Kroger Marketplace
1.89 miles away
1028 Roberts Branch Pkwy
ALDI
2.39 miles away
1240 Longreen Pkwy
Publix
4.15 miles away
4611 Hard Scrabble Rd
Lidl
4.39 miles away
1401 Summit Pkwy
Walmart Bakery
1.15 miles away
321 Killian Rd
Southern Belle Bakery LLC
2.61 miles away
333 Westmoreland Rd
Vintage Bakery LLC
3.13 miles away
409 Ruddy Duck Ct
GNC
4.15 miles away
4611 Hard Scrabble Rd
Mesha's Sinful Cakes & More
4.93 miles away
9003 Two Notch Rd
Hunt Brothers Pizza
1.08 miles away
9401 Wilson Blvd
Monterrey's Mexican Restaurant
1.25 miles away
327 Killian Rd
China Dragon
1.26 miles away
331 Killian Rd
Panera Bread
1.49 miles away
1321 Roberts Branch Pkwy
Arch Enterprises
1.52 miles away
399 Killian Rd
Scooter's Coffeehouse
1.71 miles away
81 Tulip Oak Dr
Starbucks
1.89 miles away
1028 Roberts Branch Pkwy
Starbucks
1.92 miles away
1033 Roberts Branch Pkwy
Tropical Smoothie Cafe
1.92 miles away
1033 Roberts Branch Pkwy
Walmart Supercenter
1.15 miles away
321 Killian Rd
Cato Fashions
1.25 miles away
327 Killian Rd
Jd'd Fashion II
1.25 miles away
327 Killian Rd
Shoe Dept
1.25 miles away
327 Killian Rd
Petty Kid's Clothing LLC
2.88 miles away
301 Stimson Ln
Applebee's Grill + Bar
1.76 miles away
437 Killian Rd
Quick Stop
3.07 miles away
9102 Farrow Rd
Beef'O'Brady's
4.15 miles away
4561 Hard Scrabble Rd
Lite Um Up Cigars Lounge
4.17 miles away
4435 Hard Scrabble Rd
Seven Sports Bar
4.20 miles away
2000 Clemson Rd
Please note this information may vary. If you come across anything inaccurate, please contact us.
Builder details
D.R. Horton
In 1978, D.R. Horton broke ground on our first home in Fort Worth, Texas. Since that day, the company has defined its success not by bricks and mortar, but by the satisfaction of the families that make our houses their homes. Our foundation is a single, guiding principle: a value-first dedication to the individual needs of each and every one of our nation’s homebuyers.
From first-time homebuyers to empty nesters, our family of brands provides a home for every stage in life. Our highly-trained, market experts are where you want to live, from New Jersey to Hawaii, providing unique, personalized services tailored to your individual needs. But the real value comes from the quality construction we put into every home, and the peace of mind that comes with a premium-backed warranty from America’s Number One Homebuilder.
We’ve come a long way, and while more people choose our family of brands over any other builder in the country, we never forget the most important thing of all – the families that choose us for their place to call home.
So continue to live out those dreams, America, and know we’ll be here for you every step of the way.
More new homes in Blythewood, South Carolina
494 LEATHERTREE LN (GALEN) by D.R. Horton
saved to favorites!
To see all the homes you’ve saved, visit the My Favorites section of your account.
Discover More Great Communities
Select additional listings for more information
Way to Go!
An agent will be in contact soon!
