91 3525 KAMALIE MUA ST 56 (Gen3B)
Under Construction
Ewa Beach, HI 96706
Home by D.R. Horton
Last updated 1 day ago
The Price Range displayed reflects the base price of the homes built in this community.
You get to select from the many different types of homes built by this Builder and personalize your New Home with options and upgrades.
3 BR
2 BA
959 SQ FT
Claim this listing to update information, get access to exclusive tools and more!

Floor Plan 1/1
Overview
2 Bathrooms
2 Stories
3 Bedrooms
959 Sq Ft
Single Family
91 3525 KAMALIE MUA ST 56 (Gen3B) Home Info
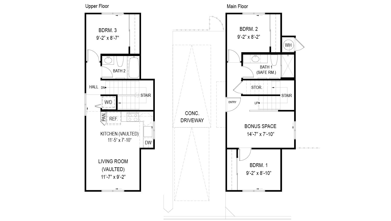
This two story 3-bedroom 2-bathroom detached single family home consists of 959 square feet of net living area and a fully fenced private back yard area. When you step into this home, you will be greeted by the family room, perfect for unwinding after a busy day. The first level features two secondary bedrooms and a bathroom with a walk-in shower and vanity sink. The second level features a kitchen and living room, offering a defined space for relaxation, entertainment, or gathering with guests. You will also find a primary bedroom with a shower-tub combination. Whole house split air conditioning and modern appliances including a range/oven, micro-hood, dishwasher, refrigerator, and washer/dryer allow for ease of living.
Floor plan center
View floor plan details for this property.
- Floor Plans
- Exterior Images
- Interior Images
- Other Media
Neighborhood
Community location & sales center
91 4116 Hikuha St
Ewa Beach, HI 96706
91 4116 Hikuha St
Kapolei, HI 96707
888-790-3488
Schools near 'Ahakea at Ho'opili
- Hawaii Department Of Education
Actual schools may vary. Contact the builder for more information.
Amenities
Home details
Now building
This home is currently under construction at 91 3525 KAMALIE MUA ST 56 and will soon be available for move-in at 'Ahakea at Ho'opili. Contact D.R. Horton today to lock in your options!
Builder details
D.R. Horton
In 1978, D.R. Horton broke ground on our first home in Fort Worth, Texas. Since that day, the company has defined its success not by bricks and mortar, but by the satisfaction of the families that make our houses their homes. Our foundation is a single, guiding principle: a value-first dedication to the individual needs of each and every one of our nation’s homebuyers.
From first-time homebuyers to empty nesters, our family of brands provides a home for every stage in life. Our highly-trained, market experts are where you want to live, from New Jersey to Hawaii, providing unique, personalized services tailored to your individual needs. But the real value comes from the quality construction we put into every home, and the peace of mind that comes with a premium-backed warranty from America’s Number One Homebuilder.
We’ve come a long way, and while more people choose our family of brands over any other builder in the country, we never forget the most important thing of all – the families that choose us for their place to call home.
So continue to live out those dreams, America, and know we’ll be here for you every step of the way.
More new homes in Ewa Beach, Hawaii
91 3525 KAMALIE MUA ST 56 (Gen3B) by D.R. Horton
saved to favorites!
To see all the homes you’ve saved, visit the My Favorites section of your account.
Discover More Great Communities
Select additional listings for more information
Way to Go!
An agent will be in contact soon!
