GLENWOOD Plan
Ready to build
1100 Belhaven Street, Granbury TX 76048
Home by D.R. Horton
at Bella Vista
Last updated 2 days ago
The Price Range displayed reflects the base price of the homes built in this community.
You get to select from the many different types of homes built by this Builder and personalize your New Home with options and upgrades.
4 BR
3 BA
2 GR
2,548 SQ FT
Claim this listing to update information, get access to exclusive tools and more!

Floorplan 0 1/1
Overview
2 Stories
Single Family
GLENWOOD Plan Info
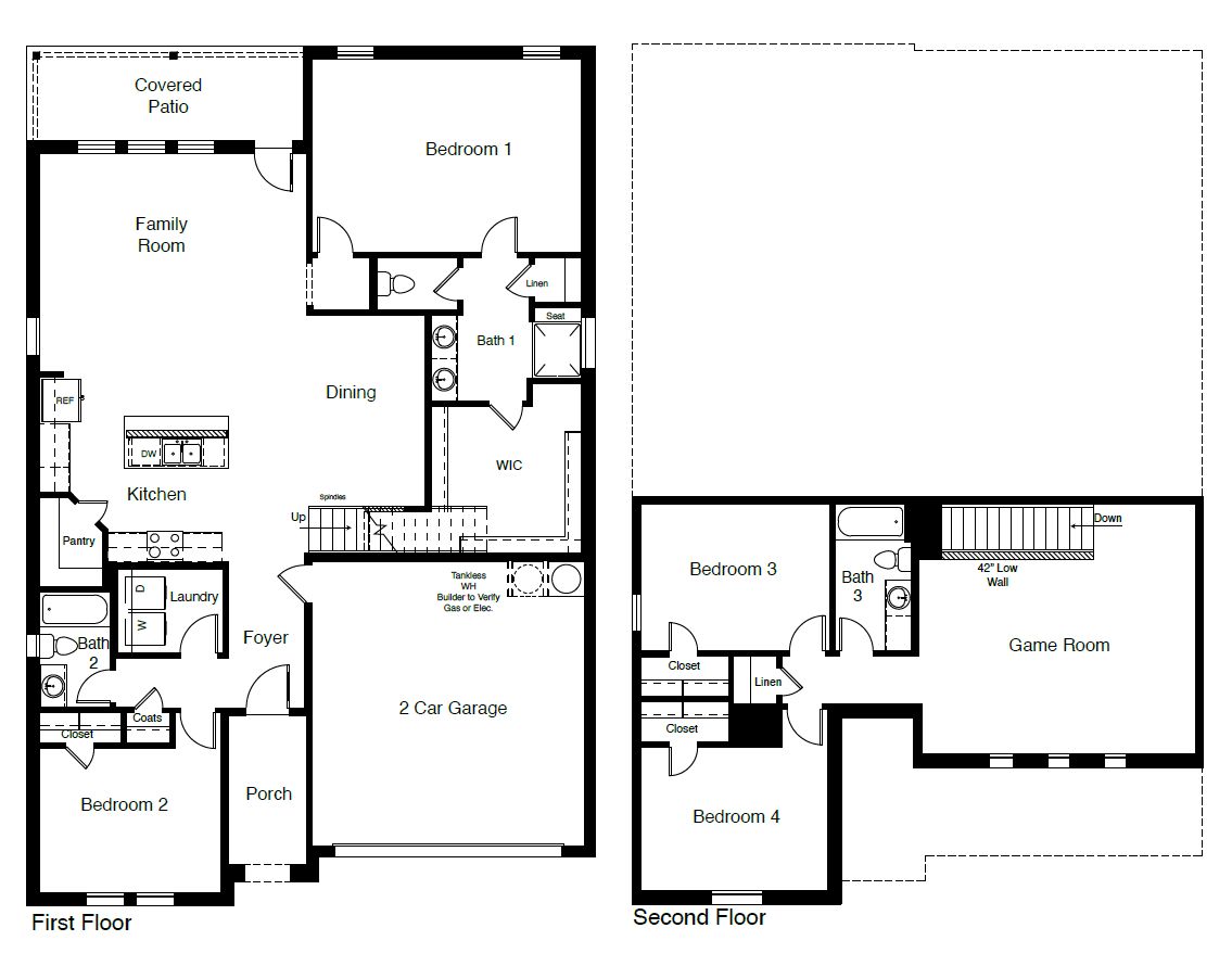
The Glenwood is a versatile two-story home offering approximately 2,526 sq. ft. of living space with 4 bedrooms, 3 bathrooms, a game room, and a 2-car garage, thoughtfully designed to provide both open gathering spaces and private retreats. A welcoming front porch opens into a defined foyer that leads into the main living area, where the kitchen, dining space, and family room flow together seamlessly to create a bright and connected environment ideal for everyday living and entertaining. The kitchen features stainless steel appliances, ample counter space, a centrally located island with sink overlooking the family room, and a walk-in pantry for added storage. The adjacent dining area connects naturally to the family room and offers access to the covered rear patio, extending the living space outdoors. The private primary suite is conveniently located on the first floor and includes a spacious bedroom, walk-in closet, and a full bath with linen storage. An additional secondary bedroom and full bathroom on the first floor provide flexibility for guests or a home office. Upstairs, two secondary bedrooms, a full bathroom, and a large game room offer additional living space ideal for recreation, relaxation, or multi-generational living. A dedicated laundry room and direct access to the two-car garage enhance everyday functionality. With its smart two-story layout, flexible living spaces, and covered outdoor area, the Glenwood delivers comfort and adaptability for a wide range of
Floor plan center
View floor plan details for this property.
- Floor Plans
- Exterior Images
- Interior Images
- Other Media
Neighborhood
Community location & sales center
1100 Belhaven Street
Granbury, TX 76048
1100 Belhaven Street
Granbury, TX 76048
888-355-8096
Schools near Bella Vista
- Granbury Independent School District
- Granbury Middle School
- Granbury High School
Actual schools may vary. Contact the builder for more information.
Amenities
Home details
Ready to build
Build the home of your dreams with the GLENWOOD plan by selecting your favorite options. For the best selection, pick your lot in Bella Vista today!
Nearby schools
Granbury Independent School District
Granbury Middle School
Middle school. Grades 6 to 8.
Public school
Teacher - student ratio: 1:13
Students enrolled: 846
817-408-4850
2000 Crossland Rd, Granbury, TX, 76048
Granbury High School
High school. Grades 9 to 12.
Public school
Teacher - student ratio: 1:14
Students enrolled: 2202
817-408-4600
2000 W Pearl St, Granbury, TX, 76048
Actual schools may vary. We recommend verifying with the local school district, the school assignment and enrollment process.
Builder details
D.R. Horton
In 1978, D.R. Horton broke ground on our first home in Fort Worth, Texas. Since that day, the company has defined its success not by bricks and mortar, but by the satisfaction of the families that make our houses their homes. Our foundation is a single, guiding principle: a value-first dedication to the individual needs of each and every one of our nation’s homebuyers.
From first-time homebuyers to empty nesters, our family of brands provides a home for every stage in life. Our highly-trained, market experts are where you want to live, from New Jersey to Hawaii, providing unique, personalized services tailored to your individual needs. But the real value comes from the quality construction we put into every home, and the peace of mind that comes with a premium-backed warranty from America’s Number One Homebuilder.
We’ve come a long way, and while more people choose our family of brands over any other builder in the country, we never forget the most important thing of all – the families that choose us for their place to call home.
So continue to live out those dreams, America, and know we’ll be here for you every step of the way.
More new homes in Granbury, Texas
GLENWOOD Plan by D.R. Horton
saved to favorites!
To see all the homes you’ve saved, visit the My Favorites section of your account.
Discover More Great Communities
Select additional listings for more information
Way to Go!
An agent will be in contact soon!
