Graces Place Lot 8079 RH
Under Construction
Westerville, OH 43082
Home by Romanelli and Hughes Homes
The Price Range displayed reflects the base price of the homes built in this community.
You get to select from the many different types of homes built by this Builder and personalize your New Home with options and upgrades.
3 BR
3.5 BA
3 GR
3,256 SQ FT
Claim this listing to update information, get access to exclusive tools and more!

Exterior 1/2
Overview
1 Half Bathroom
Single Family
Graces Place Lot 8079 RH Home Info
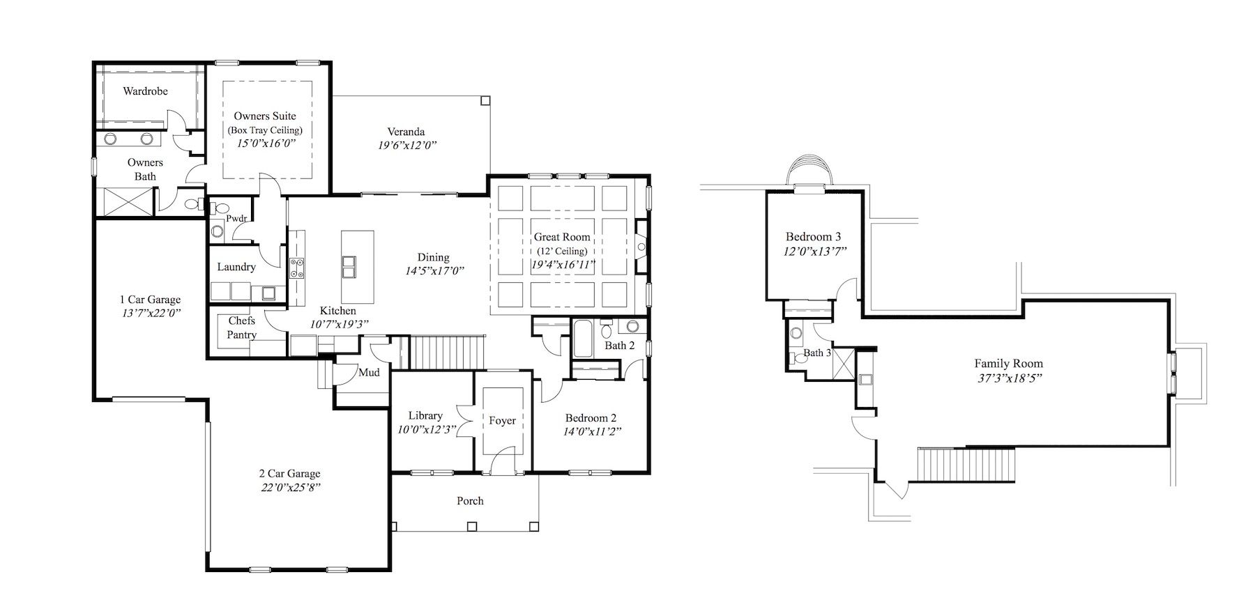
The library has glass french doors and a box tray ceiling adorns the foyer and owners suite which features an oversize shower and spacious wardrobe. The kitchen includes a chefs pantry. A mud room w/bench & closet a covered veranda guest suite w/private bath and a finished lower level with enormous family room bar and 3rd bedroom & full bath complete this beautiful home.
Neighborhood
Community location & sales center
<br/> Westerville, OH 43082
<br/> Westerville, OH 43082
888-790-3488
Schools near Grace’s Place
- Westerville City Schools
- Fouse Elementary School
- Genoa Middle School
- Westerville Central High School
Actual schools may vary. Contact the builder for more information.
Amenities
The schools in Grace’s Place are some of the best in Westerville, Ohio. The community is home to Westerville Central High School, one of the top high schools in the state. In addition, several elementary and middle schools serve the residents of Grace’s Place. All the community schools are highly rated and provide a great education for students. The community is also home to Otterbein University, a private university that is ranked as one of the best in the country.
The Antrim Park and Nature Preserve are great for taking a nature hike, seeing some wildlife, and enjoying the scenery. For those who love golf, The Golf Club at Little Turtle is a great place to tee off. The Columbus Zoo and Aquarium is always a fun place to visit, no matter what your age. The best shopping in Westerville is definitely at Polaris Fashion Place. This massive mall has over 150 stores, restaurants, and a movie theater. You can find everything here, from high-end fashion to affordable everyday items. And if you get hungry, there are plenty of great places to eat, like The Cheesecake Factory, P.F. Chang's, and Five Guys Burgers and Fries. More info about Grace’s Place
Home details
Now building
This home is currently under construction at Graces Place Lot 8079 RH and will soon be available for move-in at Grace’s Place. Contact Romanelli and Hughes Homes today to lock in your options!
Community & neighborhood
Community services & perks
- Park
Nearby schools
Westerville City Schools
Fouse Elementary School
Elementary school. Grades KG to 5.
Public school
Teacher - student ratio: 1:19
Students enrolled: 501
614-797-7400
5800 S Old 3c Hwy, Westerville, OH, 43082
Genoa Middle School
Middle school. Grades 6 to 8.
Public school
Teacher - student ratio: 1:14
Students enrolled: 752
614-797-6500
5948 S Old 3c Hwy, Westerville, OH, 43082
Westerville Central High School
High school. Grades 9 to 12.
Public school
Teacher - student ratio: 1:16
Students enrolled: 1558
614-797-6800
7118 Mount Royal Ave, Westerville, OH, 43082
Actual schools may vary. We recommend verifying with the local school district, the school assignment and enrollment process.
Neighborhood amenities
Kroger
1.57 miles away
7345 State Route 3
Meijer
1.74 miles away
100 Polaris Pkwy
Giant Eagle
1.98 miles away
650 N State St
Market District
1.98 miles away
650 N State St
Northgate Plaza (Maxtown Road)
2.15 miles away
7345-7393 N State Route 3
Cakes on Board LLC
0.99 mile away
6245 Sunbury Rd
Nothing Bundt Cakes
1.57 miles away
7389 State Route 3
Just Pies Inc
1.60 miles away
736 Northfield Rd
Meijer Bakery
1.74 miles away
100 Polaris Pkwy
Bachman's Cake Shoppe
1.83 miles away
752 N State St
Antonio's Pizzeria
1.40 miles away
7001 Sunbury Rd
Giammarco's Italian Restaurant
1.46 miles away
6030 Chandler Ct
Giammarcos Pizza & Pasta Inc
1.46 miles away
6030 Chandler Ct
Yabo's Tacos
1.49 miles away
7097 State Route 3
Jersey Mike's Subs
1.57 miles away
7377 State Route 3
Tim Hortons
1.69 miles away
891 N State St
Zest Juice Co
1.73 miles away
5807 Maxtown Rd
Starbucks
1.98 miles away
650 N State St
Starbucks
2.02 miles away
648 N State St
Starbucks
2.15 miles away
7345 US Highway 3
Play It Again Sports
1.90 miles away
718 N State St
Columbus Running Co
3.07 miles away
50 N State St
Pure Roots Boutique
3.11 miles away
18 N State St
Walmart Supercenter
3.82 miles away
50 E Schrock Rd
Blissed Out Boutique LLC
3.99 miles away
203 Fairdale Ave
Giammarco's Italian Restaurant
1.46 miles away
6030 Chandler Ct
Napa Kitchen + Bar Westerville
1.62 miles away
925 N State St
Wendell's Pub Carryout
1.62 miles away
925 N State St
Wine Dine Westerville
1.62 miles away
925 N State St
Classics Sports Bar
1.83 miles away
740 N State St
Please note this information may vary. If you come across anything inaccurate, please contact us.
Builder details
Romanelli and Hughes Homes
More new homes in Westerville, Ohio
Graces Place Lot 8079 RH by Romanelli and Hughes Homes
saved to favorites!
To see all the homes you’ve saved, visit the My Favorites section of your account.
Discover More Great Communities
Select additional listings for more information
Way to Go!
An agent will be in contact soon!