4002 2ND AVE SW (Hamilton)
Under Construction
Altoona, IA 50009
Home by D.R. Horton
at Stonebridge
Last updated 1 day ago
The Price Range displayed reflects the base price of the homes built in this community.
You get to select from the many different types of homes built by this Builder and personalize your New Home with options and upgrades.
3 BR
2 BA
3 GR
1,498 SQ FT
Claim this listing to update information, get access to exclusive tools and more!

Floor Plan 1/2
Overview
1 Story
1498 Sq Ft
2 Bathrooms
3 Bedrooms
3 Car Garage
Single Family
4002 2ND AVE SW (Hamilton) Home Info
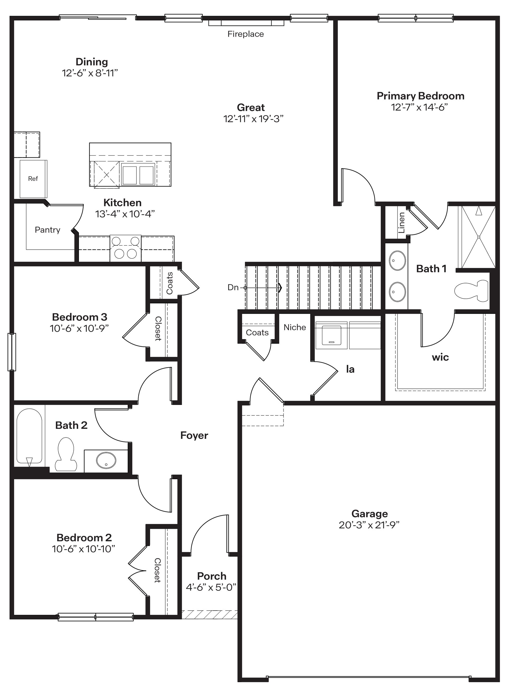
Welcome to 4002 2nd Ave SW in Altoona, Iowa. This ranch-style home offers 3 bedrooms, 2 bathrooms, and 1,498 sq. ft. of open-concept living that blends comfort, style, and functionality. Step inside to a bright foyer leading past two spacious bedrooms and a full bath-perfect for guests, family, or a home office. The kitchen features white cabinetry, stainless steel appliances, and a large island ideal for entertaining or casual meals. The great room, filled with natural light, offers a welcoming atmosphere for gatherings or cozy nights by the electric fireplace. Tucked away for privacy, the primary suite includes a dual-sink vanity, walk-in shower, and a spacious walk-in closet. Thoughtfully designed with modern finishes, this home is ready for you to make it your own. Step into your new home at Stonebridge in Altoona today! This home is currently under construction. Photos and video may be similar but not necessarily of subject property, including interior and exterior colors, finishes and appliances.
Floor plan center
View floor plan details for this property.
- Floor Plans
- Exterior Images
- Interior Images
- Other Media
Neighborhood
Community location & sales center
206 41st Street SW
Altoona, IA 50009
206 41st Street SW
Altoona, IA 50009
888-790-3488
Schools near Stonebridge
- Southeast Polk Community School District
- Clay Elementary School
Actual schools may vary. Contact the builder for more information.
Amenities
Home details
Now building
This home is currently under construction at 4002 2ND AVE SW and will soon be available for move-in at Stonebridge. Contact D.R. Horton today to lock in your options!
Nearby schools
Southeast Polk Community School District
Elementary school. Grades PK to 5.
- Public school
- Teacher - student ratio: 1:17
- Students enrolled: 657
3200 1st Ave S, Altoona, IA, 50009
515-967-4198
Actual schools may vary. We recommend verifying with the local school district, the school assignment and enrollment process.
Neighborhood amenities
Hy-Vee
2.12 miles away
108 8th St SW
Fareway
2.13 miles away
620 8th St SE
Fareway
2.22 miles away
5500 E University Ave
Hy-Vee
2.91 miles away
4815 Maple Dr
ALDI
2.96 miles away
611 34th Ave SW
Nadia's French Bakery LLC
2.17 miles away
720 8th St SE
Walmart Bakery
3.05 miles away
3501 8th St SW
Hiland Bakery LLC
3.41 miles away
2524 E 42nd St
T H Agriculture & Nutrition Co Inc
4.40 miles away
4400 Vandalia Rd
Sass Illy Endeavors Inc
1.88 miles away
1300 Metro East Dr
Pizza Ranch
2.05 miles away
465 Center Pl SW
Jimmy John's
2.08 miles away
301 Center Pl SW
Nomi's Asian Cuisine
2.08 miles away
404 8th St SW
Domino's
2.09 miles away
408 8th St SW
Starbucks
2.01 miles away
108 8th St SW
Scooter's Coffeehouse
2.13 miles away
709 2nd Ave SW
Starbucks
2.13 miles away
3590 Prairie Fire NW
Starbucks
2.74 miles away
3414 8th St SW
Chique Boutique
2.03 miles away
1450 NE 56th St
Hidden Treasures Gifts & Book-Tea-Que
2.20 miles away
511 8th St SE
Target
2.74 miles away
3414 8th St SW
Walmart Supercenter
3.05 miles away
3501 8th St SW
maurices
3.10 miles away
550 36th Ave SW
Bowlero Great Escape
2.16 miles away
655 NE 56th St
Sam's Sports Bar & Grill
2.71 miles away
3160 8th St SW
Hy-Vee Market Grille Express
2.91 miles away
4815 Maple Dr
Applebee's Grill + Bar
3.03 miles away
3741 8th St SW
The Big Steer
3.27 miles away
1715 Adventureland Dr
Please note this information may vary. If you come across anything inaccurate, please contact us.
Builder details
D.R. Horton
In 1978, D.R. Horton broke ground on our first home in Fort Worth, Texas. Since that day, the company has defined its success not by bricks and mortar, but by the satisfaction of the families that make our houses their homes. Our foundation is a single, guiding principle: a value-first dedication to the individual needs of each and every one of our nation’s homebuyers.
From first-time homebuyers to empty nesters, our family of brands provides a home for every stage in life. Our highly-trained, market experts are where you want to live, from New Jersey to Hawaii, providing unique, personalized services tailored to your individual needs. But the real value comes from the quality construction we put into every home, and the peace of mind that comes with a premium-backed warranty from America’s Number One Homebuilder.
We’ve come a long way, and while more people choose our family of brands over any other builder in the country, we never forget the most important thing of all – the families that choose us for their place to call home.
So continue to live out those dreams, America, and know we’ll be here for you every step of the way.
More new homes in Altoona, Iowa
4002 2ND AVE SW (Hamilton) by D.R. Horton
saved to favorites!
To see all the homes you’ve saved, visit the My Favorites section of your account.
Discover More Great Communities
Select additional listings for more information
Way to Go!
An agent will be in contact soon!
