3005 SWEETWATER DR (Hamilton)
Under Construction
Des Moines, IA 50320
Home by D.R. Horton
at Three Lakes
Last updated 1 day ago
The Price Range displayed reflects the base price of the homes built in this community.
You get to select from the many different types of homes built by this Builder and personalize your New Home with options and upgrades.
4 BR
3 BA
3 GR
2,190 SQ FT
Claim this listing to update information, get access to exclusive tools and more!

Floor Plan 1/3
Overview
1 Story
2190 Sq Ft
3 Bathrooms
3 Car Garage
4 Bedrooms
Single Family
3005 SWEETWATER DR (Hamilton) Home Info
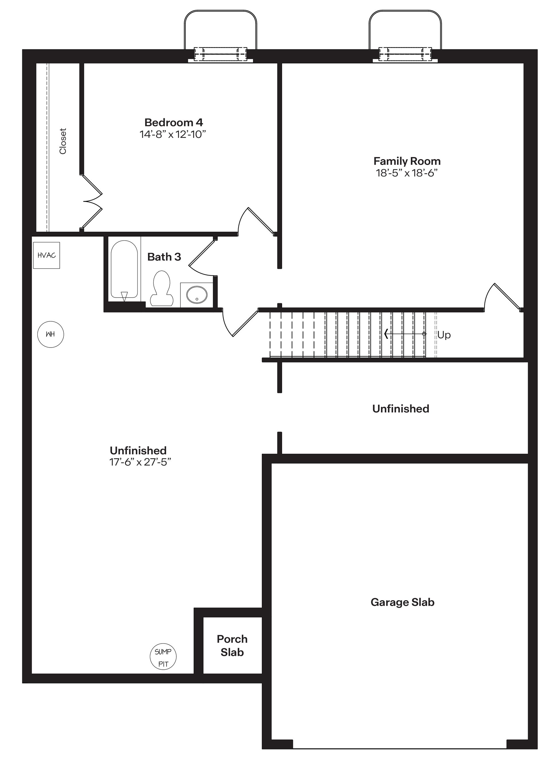
Model Home - Not for Sale. Search Three Lakes at drhorton.com to view available homes in this neighborhood. D.R. Horton, America's Builder, presents the Hamilton. This spacious Ranch home includes 4 Bedrooms and 3 Bathrooms. The Hamilton offers a Finished Basement providing nearly 2,200 square feet of total living space! As you make your way into the main living area, you'll find an open Great Room featuring a cozy fireplace. The Gourmet Kitchen includes a Walk-In Pantry, Quartz Countertops, and a Large Island overlooking the Dining and Great Room. The Primary Bedroom offers a large Walk-In Closet, as well as an ensuite bathroom with dual vanity sink and walk-in shower. Two additional Large Bedrooms and the second full bathroom are split from the Primary Bedroom at the opposite side of the home. Heading to the Finished Lower Level you'll find an additional Oversized living space along with the Fourth Bedroom, full bathroom, and tons of storage space! Home Is Connected: All D.R. Horton homes come with an industry-leading suite of smart home products that keep you connected with the people and place you value most.
Floor plan center
View floor plan details for this property.
- Floor Plans
- Exterior Images
- Interior Images
- Other Media
Neighborhood
Community location & sales center
3005 Sweetwater Dr
Des Moines, IA 50320
3005 Sweetwater Dr
Des Moines, IA 50320
888-790-3488
Schools near Three Lakes
- Carlisle Comm School District
- Des Moines Public Schools
- Studebaker Elementary School
- Mccombs Middle School
- Lincoln High School
Actual schools may vary. Contact the builder for more information.
Amenities
Home details
Now building
This home is currently under construction at 3005 SWEETWATER DR and will soon be available for move-in at Three Lakes. Contact D.R. Horton today to lock in your options!
Nearby schools
Des Moines Public Schools
Elementary school. Grades KG to 5.
- Public school
- Teacher - student ratio: 1:13
- Students enrolled: 523
300 E County Line Rd, Des Moines, IA, 50320
515-242-8436
Middle school. Grades 6 to 8.
- Public school
- Teacher - student ratio: 1:15
- Students enrolled: 654
201 County Line Rd, Des Moines, IA, 50320
515-242-8447
High school. Grades 9 to 12.
- Public school
- Teacher - student ratio: 1:26
- Students enrolled: 2403
2600 Sw 9th St, Des Moines, IA, 50315
515-242-7500
Actual schools may vary. We recommend verifying with the local school district, the school assignment and enrollment process.
Neighborhood amenities
Walmart Supercenter
2.01 miles away
5101 SE 14th St
Filipino Store
2.08 miles away
1300 Cummins Rd
ALDI
2.12 miles away
5512 SE 14th St
Himalayan Asian Market
2.25 miles away
1050 E Army Post Rd
Hy-Vee
2.29 miles away
1107 E Army Post Rd
Walmart Bakery
2.01 miles away
5101 SE 14th St
Clarissa's Crazy Little Bakery
2.66 miles away
2110 King Ave
Mi Casa Cake Shop
2.84 miles away
3306 Indianola Ave
T H Agriculture & Nutrition Co Inc
3.39 miles away
4400 Vandalia Rd
Sudsuckers Inc
1.85 miles away
1511 E Army Post Rd
Olive Garden
1.88 miles away
6157 SE 14th St
Domino's
1.89 miles away
1430 E Army Post Rd
Applebee's Grill + Bar
1.95 miles away
6301 SE 14th St
Culver's
2.00 miles away
5941 SE 14th St
Twisted Bean Coffee Co
1.88 miles away
6155 SE 14th St
Starbucks
2.01 miles away
5901 SE 14th St
Starbucks
2.29 miles away
1107 E Army Post Rd
Starbucks
2.30 miles away
1111 E Army Post Rd
Dunkin'
2.64 miles away
3611 SE 14th St
Walmart Supercenter
2.01 miles away
5101 SE 14th St
Famous Footwear
2.08 miles away
1300 E Army Post Rd
Target
2.25 miles away
1111 E Army Post Rd
Citi Trends
2.30 miles away
1111 E Army Post Rd
Foot Locker
2.30 miles away
1111 E Army Post Rd
Applebee's Grill + Bar
1.95 miles away
6301 SE 14th St
Donna Lounge
2.37 miles away
4424 SE 14th St
Buffalo Wild Wings
2.75 miles away
3311 SE 14th St
Andys Place
3.59 miles away
5114 SW 9th St
Wicked Rabbit
3.64 miles away
1101 Army Post Rd
Please note this information may vary. If you come across anything inaccurate, please contact us.
Builder details
D.R. Horton
In 1978, D.R. Horton broke ground on our first home in Fort Worth, Texas. Since that day, the company has defined its success not by bricks and mortar, but by the satisfaction of the families that make our houses their homes. Our foundation is a single, guiding principle: a value-first dedication to the individual needs of each and every one of our nation’s homebuyers.
From first-time homebuyers to empty nesters, our family of brands provides a home for every stage in life. Our highly-trained, market experts are where you want to live, from New Jersey to Hawaii, providing unique, personalized services tailored to your individual needs. But the real value comes from the quality construction we put into every home, and the peace of mind that comes with a premium-backed warranty from America’s Number One Homebuilder.
We’ve come a long way, and while more people choose our family of brands over any other builder in the country, we never forget the most important thing of all – the families that choose us for their place to call home.
So continue to live out those dreams, America, and know we’ll be here for you every step of the way.
More new homes in Des Moines, Iowa
3005 SWEETWATER DR (Hamilton) by D.R. Horton
saved to favorites!
To see all the homes you’ve saved, visit the My Favorites section of your account.
Discover More Great Communities
Select additional listings for more information
Way to Go!
An agent will be in contact soon!
