HAMILTON - DUPLEX Plan
Ready to build
192 Smith Ln, Beaver Falls PA 15010
Home by D.R. Horton
Last updated 1 day ago
The Price Range displayed reflects the base price of the homes built in this community.
You get to select from the many different types of homes built by this Builder and personalize your New Home with options and upgrades.
3 BR
2 BA
2 GR
1,498 SQ FT
Claim this listing to update information, get access to exclusive tools and more!

Floorplan 0 1/1
Overview
1 Story
Duplex
HAMILTON - DUPLEX Plan Info
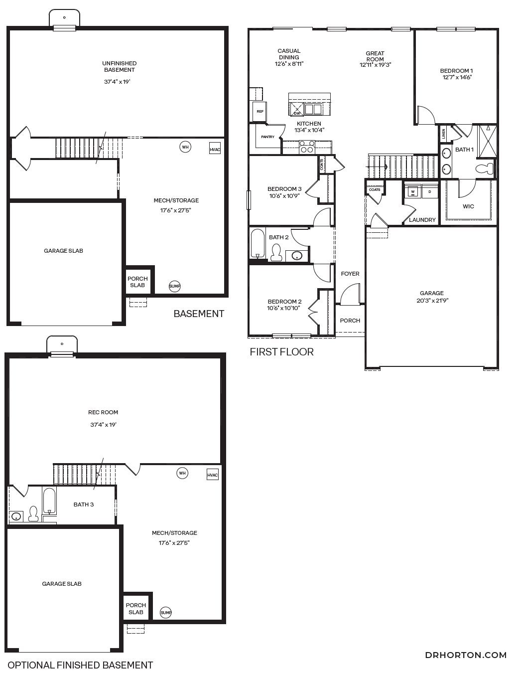
Come see the Hamilton floorplan in Chippewa Trails. This single-story home option is beautifully laid out with 3 bedrooms, 2 bathrooms, basement, and a 2-car garage - all in 1890 sq. ft. Varying exterior options, including traditional, and modern, with or without a front porch, give you a unique look with a practical design. When you enter the home, you'll be greeted with two bedrooms and a secondary bathroom, as well as a main level laundry room. Continuing down the hallway, find yourself in the open-concept living area that blends the kitchen, great room, and dining area. The kitchen features shaker-style cabinetry and quartz countertops. It is set off from the living area by a kitchen island with a built-in sink. Walking through the great room, you'll find the primary bedroom with an attached bathroom. The bathroom has a double vanity and a large walk-in closet for all your belongings. Like all our homes, you'll always be close to home with our smart home technology integrated into your home. Find security and control through the Qolsys panel, your phone, or your voice. You can easily integrate it with Z-wave or Bluetooth technology when you want to add additional smart home tech. The community itself is nestled in Chippewa Township, within Blackhawk School District, and just minutes from shopping, dining, schools, and recreational trail and parks. Commuters will love the quick access to I-376 and Route 51, making it accessible to reach Cranberry Township, the Pittsbur
Floor plan center
View floor plan details for this property.
- Floor Plans
- Exterior Images
- Interior Images
- Other Media
Neighborhood
Community location & sales center
192 Smith Ln
Beaver Falls, PA 15010
192 Smith Ln
Beaver Falls, PA 15010
888-790-3488
Schools near Chippewa Trails
- Blackhawk School District
- Blackhawk Intermediate School
- Highland Middle School
- Blackhawk High School
Actual schools may vary. Contact the builder for more information.
Amenities
Home details
Ready to build
Build the home of your dreams with the HAMILTON - DUPLEX plan by selecting your favorite options. For the best selection, pick your lot in Chippewa Trails today!
Nearby schools
Blackhawk School District
Blackhawk Intermediate School
Elementary school. Grades 3 to 5
Public school
Class ratio: 1: 15
Enrollment: 708
724-843-5050
635 Shenango Rd, Beaver Falls, PA, 15010
Highland Middle School
Middle school. Grades 6 to 8
Public school
Class ratio: 1: 14
Enrollment: 700
724-843-1700
402 Shenango Rd, Beaver Falls, PA, 15010
Blackhawk High School
Middle-High school. Grades 8 to 12
Public school
Class ratio: 1: 14
Enrollment: 762
724-846-9600
500 Blackhawk Rd, Beaver Falls, PA, 15010
Actual schools may vary. We recommend verifying with the local school district, the school assignment and enrollment process.
Neighborhood amenities
ALDI
1.43 miles away
2580 Constitution Blvd
Giant Eagle
1.61 miles away
2650 Constitution Blvd
Walmart Supercenter
1.73 miles away
100 Chippewa Town Ctr
Giles Town & Country Market
2.30 miles away
801 24th St
Weaver's Market
2.46 miles away
301 3rd Ave E
Crumbs & Cones Bakery
1.66 miles away
3401 4th Ave
Walmart Bakery
1.73 miles away
100 Chippewa Town Ctr
Grandma's Bakery
5.90 miles away
513 Lawrence Ave
Crystal's Cakery
5.91 miles away
526 Lawrence Ave
Sweet Offering
6.16 miles away
116 Little Beaver Dr
Corner Tavern
1.21 miles away
214 37th St Ext
Z Pub & Diner
1.43 miles away
2580 Constitution Blvd
Yolandas
1.45 miles away
2228 Darlington Rd
McDonald's
1.52 miles away
2546 Constitution Blvd
Pizza Roma & Pasta House
1.52 miles away
2556 Constitution Blvd
Dunkin'
1.56 miles away
2561 Constitution Blvd
Beaver Falls Coffee & Tea Co
1.76 miles away
3219 4th Ave
Oram's Donut Shop
2.82 miles away
1406 7th Ave
National Grind Coffee
5.97 miles away
435 Lawrence Ave
Cafe Kolache
6.80 miles away
402 3rd St
Cohill Fashions
1.64 miles away
3508 4th Ave
Walmart Supercenter
1.73 miles away
100 Chippewa Town Ctr
Cable Creations
2.68 miles away
1605 7th Ave
Mary's Bride & Formal
2.75 miles away
1514 7th Ave
Wolfes Womens Shoes & Clothing
2.96 miles away
1105 7th Ave
Corner Tavern
1.21 miles away
214 37th St Ext
Z Pub & Diner
1.43 miles away
2580 Constitution Blvd
El Pato Mexican Grill
1.60 miles away
2527 Darlington Rd
Applebee's Grill + Bar
1.78 miles away
850 Chippewa Town Ctr
Tress's Annex
2.32 miles away
717 24th St
Please note this information may vary. If you come across anything inaccurate, please contact us.
Builder details
D.R. Horton
In 1978, D.R. Horton broke ground on our first home in Fort Worth, Texas. Since that day, the company has defined its success not by bricks and mortar, but by the satisfaction of the families that make our houses their homes. Our foundation is a single, guiding principle: a value-first dedication to the individual needs of each and every one of our nation’s homebuyers.
From first-time homebuyers to empty nesters, our family of brands provides a home for every stage in life. Our highly-trained, market experts are where you want to live, from New Jersey to Hawaii, providing unique, personalized services tailored to your individual needs. But the real value comes from the quality construction we put into every home, and the peace of mind that comes with a premium-backed warranty from America’s Number One Homebuilder.
We’ve come a long way, and while more people choose our family of brands over any other builder in the country, we never forget the most important thing of all – the families that choose us for their place to call home.
So continue to live out those dreams, America, and know we’ll be here for you every step of the way.
More new homes in Beaver Falls, Pennsylvania
HAMILTON - DUPLEX Plan by D.R. Horton
saved to favorites!
To see all the homes you’ve saved, visit the My Favorites section of your account.
Discover More Great Communities
Select additional listings for more information
Way to Go!
An agent will be in contact soon!
