Hamilton Plan
Ready to build
5402 N 186th Street, Elkhorn NE 68022
Home by D.R. Horton
Last updated 3 days ago
The Price Range displayed reflects the base price of the homes built in this community.
You get to select from the many different types of homes built by this Builder and personalize your New Home with options and upgrades.
3 BR
2 BA
2 GR
1,498 SQ FT
Claim this listing to update information, get access to exclusive tools and more!

Floorplan 0 1/3
Overview
1 Story
1498 Sq Ft
2 Bathrooms
2 Car Garage
3 Bedrooms
Single Family
Hamilton Plan Info
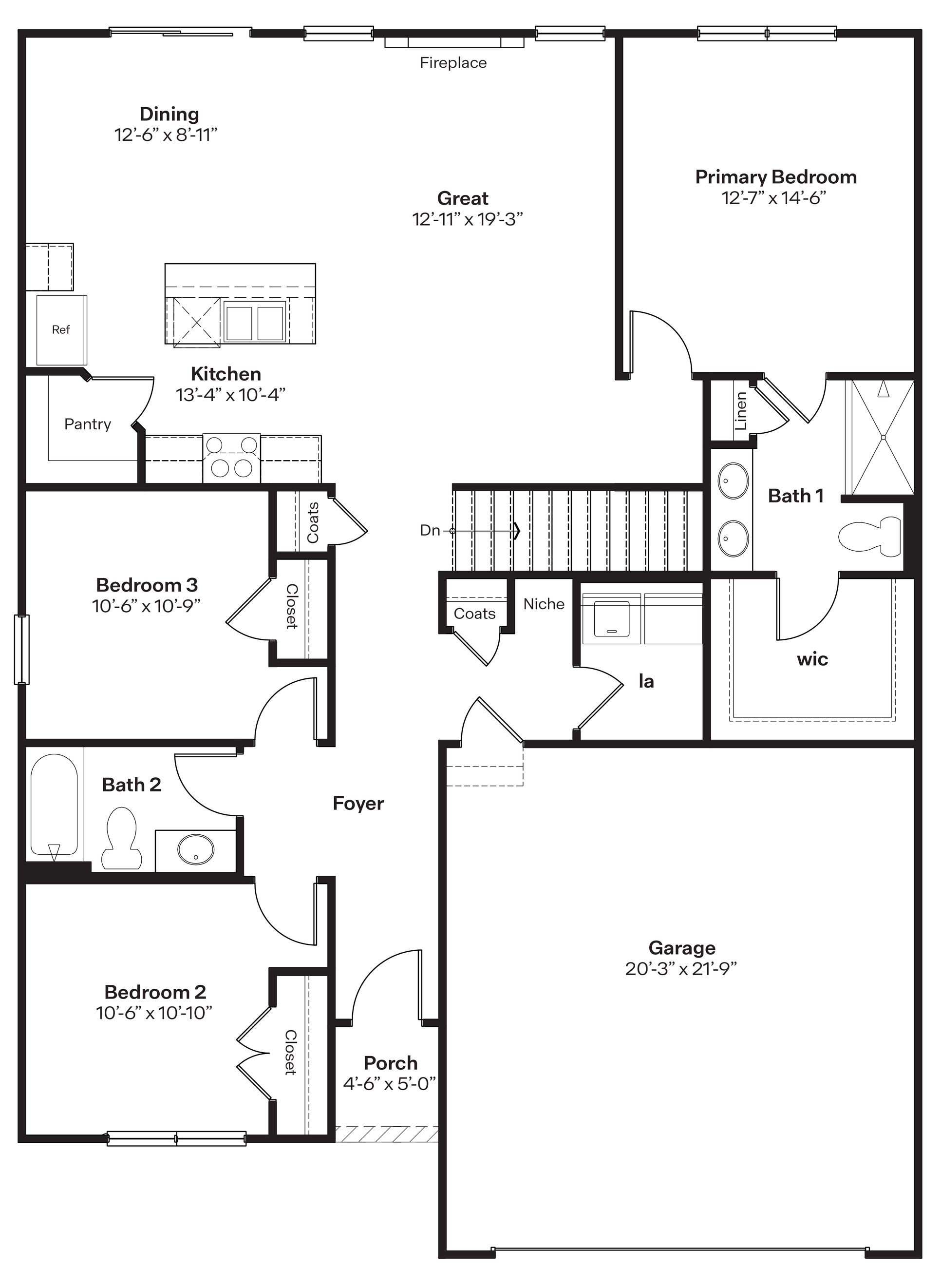
Say hello to the Hamilton Plan by D.R. Horton, located in our Enclave Flats community in Elkhorn, Ne. This single-level home offers 3 bedrooms and 2 full bathrooms, making it perfect for families seeking a modern, open layout. The Hamilton Plan features two large bedrooms at the front of the home, ideal for guests or children, while the primary suite is at the back for added privacy. The primary includes a walk-in closet and spacious bath-perfect for relaxing after a long day. The open-concept living area is designed for both relaxation and entertaining. The kitchen boasts a large island and shaker-style cabinetry, making it perfect for cooking, dining, or hosting friends and family. Practicality is key in the Hamilton Plan, with a convenient closet for coats and jackets upon entering from the garage, helping keep your home organized. The Hamilton Plan includes energy-efficient features and high-quality materials, providing an incredible value for homebuyers. Call today to schedule a tour in the Enclave Flats community.
Floor plan center
View floor plan details for this property.
- Floor Plans
- Exterior Images
- Interior Images
- Other Media
Neighborhood
Community location & sales center
5402 N 186th Street
Elkhorn, NE 68022
5402 N 186th Street
Elkhorn, NE 68022
888-790-3488
Schools near Enclave Flats
- Elkhorn Public Schools
- Hillrise Elementary School
- Elkhorn Middle School
- Elkhorn High School
Actual schools may vary. Contact the builder for more information.
Amenities
Home details
Ready to build
Build the home of your dreams with the Hamilton plan by selecting your favorite options. For the best selection, pick your lot in Enclave Flats today!
Nearby schools
Elkhorn Public Schools
Elementary school. Grades PK to 5.
- Public school
- Teacher - student ratio: 1:12
- Students enrolled: 341
20110 Hopper St, Elkhorn, NE, 68022
402-289-2602
Middle school. Grades 6 to 8.
- Public school
- Teacher - student ratio: 1:13
- Students enrolled: 607
3200 N 207th Plz, Elkhorn, NE, 68022
402-289-2428
High school. Grades 9 to 12.
- Public school
- Teacher - student ratio: 1:15
- Students enrolled: 741
1401 Veterans Dr, Elkhorn, NE, 68022
402-289-4239
Actual schools may vary. We recommend verifying with the local school district, the school assignment and enrollment process.
Neighborhood amenities
ALDI
1.59 miles away
17240 Evans St
Walmart Supercenter
1.67 miles away
16960 W Maple Rd
Hy-Vee
2.74 miles away
3410 N 156th St
Hy-Vee
3.98 miles away
1000 S 178th St
Baker's Supermarkets
4.02 miles away
505 N 155th Plz
Walmart Bakery
1.67 miles away
16960 W Maple Rd
Bringing Health Food to the Ghetto
2.26 miles away
2520 N 169th St
Sugared Ledge
3.11 miles away
920 N 204th Ave
The Omaha Bakery
3.40 miles away
725 N 210th St
Gigi's Cupcakes
3.69 miles away
16811 Burke St
Qdoba Mexican Eats
1.14 miles away
18924 Evans St
Scooter's Coffeehouse
1.15 miles away
18940 Evans St
Dj's Dugout Sports Bar
1.16 miles away
19020 Evans St
The Good Life Sports Bar & Grill
1.63 miles away
20231 Manderson St
Runza
1.65 miles away
3910 N 203rd St
Scooter's Coffeehouse
1.15 miles away
18940 Evans St
Starbucks
1.87 miles away
5401 S 204th St
Starbucks
1.91 miles away
16959 Evans Plz
Fala's Treasures & Coffee House
2.23 miles away
2627 N 205th St
Dunkin'
2.29 miles away
16250 Evans Plz
Andy's Boutique
1.43 miles away
3910 N 173rd Ave
Walmart Supercenter
1.67 miles away
16960 W Maple Rd
Ross Dress For Less
1.85 miles away
17021 Evans Plz
Target
1.91 miles away
16959 Evans Plz
Peak Performance
2.80 miles away
3606 N 156th St
Qdoba Mexican Eats
1.14 miles away
18924 Evans St
Dj's Dugout Sports Bar
1.16 miles away
19020 Evans St
The Good Life Sports Bar & Grill
1.63 miles away
20231 Manderson St
Patriot Homebrew Supply
1.87 miles away
2929 N 204th St
Heidelberg's Sports Bar
1.97 miles away
3510 N 167th Cir
Please note this information may vary. If you come across anything inaccurate, please contact us.
Builder details
D.R. Horton
In 1978, D.R. Horton broke ground on our first home in Fort Worth, Texas. Since that day, the company has defined its success not by bricks and mortar, but by the satisfaction of the families that make our houses their homes. Our foundation is a single, guiding principle: a value-first dedication to the individual needs of each and every one of our nation’s homebuyers.
From first-time homebuyers to empty nesters, our family of brands provides a home for every stage in life. Our highly-trained, market experts are where you want to live, from New Jersey to Hawaii, providing unique, personalized services tailored to your individual needs. But the real value comes from the quality construction we put into every home, and the peace of mind that comes with a premium-backed warranty from America’s Number One Homebuilder.
We’ve come a long way, and while more people choose our family of brands over any other builder in the country, we never forget the most important thing of all – the families that choose us for their place to call home.
So continue to live out those dreams, America, and know we’ll be here for you every step of the way.
More new homes in Elkhorn, Nebraska
Hamilton Plan by D.R. Horton
saved to favorites!
To see all the homes you’ve saved, visit the My Favorites section of your account.
Discover More Great Communities
Select additional listings for more information
Way to Go!
An agent will be in contact soon!
