Hamilton Plan
Ready to build
166 Shelton Place Drive, Evans City PA 16033
Home by D.R. Horton
at Leslie Farms
Last updated 19 hours ago
The Price Range displayed reflects the base price of the homes built in this community.
You get to select from the many different types of homes built by this Builder and personalize your New Home with options and upgrades.
3 BR
2 BA
2 GR
1,498 SQ FT
Claim this listing to update information, get access to exclusive tools and more!

Floorplan 0 1/1
Overview
1 Story
Single Family
Hamilton Plan Info
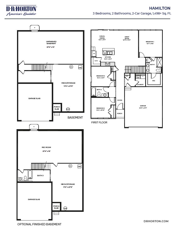
Come see the Hamilton floorplan in Leslie Farms. This single-story home option is beautifully laid out with 3 bedrooms, 2 bathrooms, walk-out basement, and a 2-car garage with 1498 finished square feet. Varying exterior options, including traditional, and modern, with or without a front porch, give you a unique look with a practical design. When you enter the home, you'll be greeted with two bedrooms and a secondary bathroom, as well as a main level laundry room. Continuing down the hallway, find yourself in the open concept living area that blends the kitchen, great room, and dining area. The kitchen features shaker-style cabinetry and quartz countertops. It is set off from the living area by a kitchen island with a built-in sink. Walking through the great room, you'll find the primary bedroom with an attached bathroom. The bathroom has a double vanity and a large walk-in closet for all your belongings. Like all our homes, you'll always be close to home with our smart home technology integrated into your home. Find security and control through the Qolsys panel, your phone, or your voice. You can easily integrate it with Z-wave or Bluetooth technology when you want to add additional smart home tech. Enjoy a commuter-friendly location, just 8 miles from I-79, providing easy access to shopping, dining, and entertainment, providing peaceful living and modern convenience. Schedule your tour today to see all that Leslie Farms has to offer!
Floor plan center
View floor plan details for this property.
- Floor Plans
- Exterior Images
- Interior Images
- Other Media
Neighborhood
Community location & sales center
166 Shelton Place Drive <br/> Evans City, PA 16033
166 Shelton Place Drive <br/> Evans City, PA 16033
888-790-3488
Schools near Leslie Farms
- Butler Area School District
Actual schools may vary. Contact the builder for more information.
Amenities
Home details
Ready to build
Build the home of your dreams with the Hamilton plan by selecting your favorite options. For the best selection, pick your lot in Leslie Farms today!
Neighborhood amenities
Evans City Comm Food Cupboard
3.67 miles away
202 Van Buren St
Sam's Club
5.73 miles away
200 Moraine Pointe Plz
Giant Eagle
5.73 miles away
700 Moraine Pointe Plz
South West Butler County Food
5.83 miles away
557 Perry Hwy
ALDI
5.93 miles away
300 Butler CMNS
P & BS Sweets & Eats
3.63 miles away
243 E Main St
Autumn's Cakes
4.76 miles away
470 Whitestown Rd
Lagerhaus Bakery
5.66 miles away
534 Main St
Sam's Club Bakery
5.73 miles away
200 Moraine Pointe Plz
T J's Hideaway
0.73 mile away
346 Spithaler School Rd
Cliffords Restaurant
1.43 miles away
514 Upper Harmony Rd
Missing Links Brewery
2.93 miles away
891 Evans City Rd
Debbie Lee's Delight
3.02 miles away
886 Evans City Rd
The Beacon Hotel
3.16 miles away
231 Beacon Rd
Coffee Brake
3.71 miles away
111 E Main St
Cummings Coffee
4.32 miles away
530 Evans City Rd
Wunderbar Coffee House
5.52 miles away
253 Mercer St
Dunkin'
5.70 miles away
134 Pittsburgh Rd
Starbucks
5.88 miles away
310 Greenwood Plz
Moon Phases & Co Boutique
5.66 miles away
528 Main St
P-40 Outfitters Clothing Company
5.67 miles away
496 Pittsburgh Rd
Sam's Club
5.73 miles away
200 Moraine Pointe Plz
maurices
5.99 miles away
310 Butler CMNS
Famous Footwear
6.00 miles away
320 Butler CMNS
T J's Hideaway
0.73 mile away
346 Spithaler School Rd
Bakers Backstreet Tavern
3.72 miles away
113 Jefferson St
McBride Station
4.84 miles away
340 Pittsburgh Rd
Rock Ann Haven
5.36 miles away
141 Greenwood Dr
Ht's Spillway
5.70 miles away
120 Pflugh Rd
Please note this information may vary. If you come across anything inaccurate, please contact us.
Builder details
D.R. Horton
In 1978, D.R. Horton broke ground on our first home in Fort Worth, Texas. Since that day, the company has defined its success not by bricks and mortar, but by the satisfaction of the families that make our houses their homes. Our foundation is a single, guiding principle: a value-first dedication to the individual needs of each and every one of our nation’s homebuyers.
From first-time homebuyers to empty nesters, our family of brands provides a home for every stage in life. Our highly-trained, market experts are where you want to live, from New Jersey to Hawaii, providing unique, personalized services tailored to your individual needs. But the real value comes from the quality construction we put into every home, and the peace of mind that comes with a premium-backed warranty from America’s Number One Homebuilder.
We’ve come a long way, and while more people choose our family of brands over any other builder in the country, we never forget the most important thing of all – the families that choose us for their place to call home.
So continue to live out those dreams, America, and know we’ll be here for you every step of the way.
More new homes in Evans City, Pennsylvania
Hamilton Plan by D.R. Horton
saved to favorites!
To see all the homes you’ve saved, visit the My Favorites section of your account.
Discover More Great Communities
Select additional listings for more information
Way to Go!
An agent will be in contact soon!
