13502 Whitmore St (Hamilton)
Under Construction
Omaha, NE 68142
Home by D.R. Horton
Last updated 1 day ago
The Price Range displayed reflects the base price of the homes built in this community.
You get to select from the many different types of homes built by this Builder and personalize your New Home with options and upgrades.
4 BR
3 BA
2 GR
2,190 SQ FT
Claim this listing to update information, get access to exclusive tools and more!

Floor Plan 1/3
Overview
1 Story
2 Car Garage
2190 Sq Ft
3 Bathrooms
4 Bedrooms
Single Family
13502 Whitmore St (Hamilton) Home Info
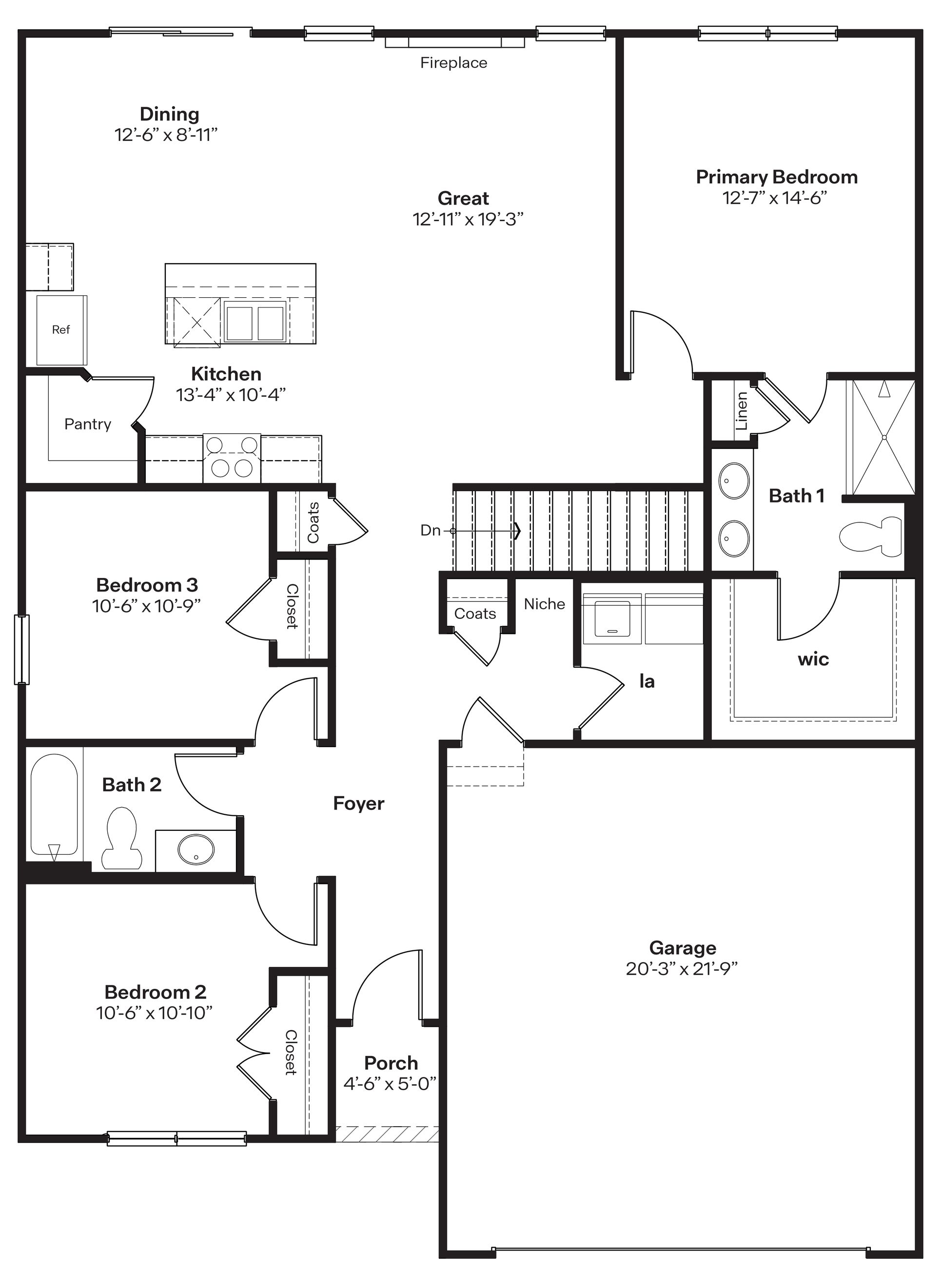
Model Home - Not for Sale. Search Westbrook Hills at drhorton.com to view available homes in this neighborhood. D.R. Horton, America's Builder, presents the Hamilton. This spacious Ranch home includes 4 Bedrooms and 3 Bathrooms. The Hamilton offers a Finished Basement providing nearly 2,200 square feet of total living space! As you make your way into the main living area, you'll find an open Great Room featuring a cozy fireplace. The Gourmet Kitchen includes a Walk-In Pantry, Quartz Countertops, and a Large Island overlooking the Dining and Great Room. The Primary Bedroom offers a large Walk-In Closet, as well as an ensuite bathroom with dual vanity sink and walk-in shower. Two additional Large Bedrooms and the second full bathroom are split from the Primary Bedroom at the opposite side of the home. Heading to the Finished Lower Level you'll find an additional Oversized living space along with the Fourth Bedroom, full bathroom, and tons of storage space! All D.R. Horton homes come with an industry-leading suite of smart home products that keep you connected with the people and place you value most.
Floor plan center
View floor plan details for this property.
- Floor Plans
- Exterior Images
- Interior Images
- Other Media
Neighborhood
Community location & sales center
13502 Whitmore St
Omaha, NE 68142
13502 Whitmore St
Omaha, NE 68142
888-790-3488
Schools near Westbrook Hills
- Omaha Public Schools
- Saddlebrook Elementary School
- Alfonza W Davis Middle School
- Westview High
Actual schools may vary. Contact the builder for more information.
Amenities
Home details
Now building
This home is currently under construction at 13502 Whitmore St and will soon be available for move-in at Westbrook Hills. Contact D.R. Horton today to lock in your options!
Nearby schools
Omaha Public Schools
Elementary school. Grades PK to 5.
- Public school
- Teacher - student ratio: 1:16
- Students enrolled: 472
14850 Laurel Ave Ste 1, Omaha, NE, 68116
402-933-3915
Middle school. Grades 6 to 8.
- Public school
- Teacher - student ratio: 1:16
- Students enrolled: 759
8050 N 129th Ave, Omaha, NE, 68142
531-299-2340
High school. Grades 9 to 12.
- Public school
15800 Summit Plz, Bennington, NE, 68007
531-299-3040
Actual schools may vary. We recommend verifying with the local school district, the school assignment and enrollment process.
Neighborhood amenities
Fareway
1.09 miles away
13150 Fort St
Baker's Supermarkets
1.93 miles away
13250 W Maple Rd
Asian Thyme Market
2.17 miles away
2914 N 108th St
Walmart Neighborhood Market
2.21 miles away
13105 Birch Dr
Hy-Vee
2.44 miles away
10808 Fort St
GNC
1.93 miles away
13362 W Maple Rd
Walmart Bakery
2.21 miles away
13105 Birch Dr
Hy-Vee Bakery
2.43 miles away
10808 Fort St
Walmart Bakery
3.00 miles away
6304 N 99th St
Natural Healing Tools
3.09 miles away
2401 N 147th St
Real Meals
0.71 mile away
6325 N 128th St
Runza
0.76 mile away
6913 N 145th St
CDJ Johnson Family LP
1.07 miles away
5324 N 134th Ave
DRM Inc
1.07 miles away
5324 N 134th Ave
Jean's Bistro
1.18 miles away
14242 Fort St
Scooter's Coffeehouse
1.77 miles away
11901 Fort St
Starbucks
1.93 miles away
13250 W Maple Rd
Starbucks
1.96 miles away
4001 N 132nd St
Scooter's Coffeehouse
2.15 miles away
3703 N 144th St
Scooter's Coffeehouse
2.24 miles away
3695 N 129th St
Sweet Boutique
1.18 miles away
14242 Fort St
Kohl's
1.92 miles away
13550 W Maple Rd
Burlington
1.92 miles away
13450 W Maple Rd
Famous Footwear
1.93 miles away
13330 W Maple Rd
Target
1.96 miles away
4001 N 132nd St
Billy O'S Lounge
1.18 miles away
14242 Fort St
Applebee's Grill + Bar
1.94 miles away
13208 W Maple Rd
Big Red Neighborhood Grill & Sports Bar
2.08 miles away
15450 Ida St
Mitch's Pub
2.14 miles away
5106 N 156th St
Buffalo Wild Wings
2.17 miles away
13214 W Maple Rd
Please note this information may vary. If you come across anything inaccurate, please contact us.
Builder details
D.R. Horton
In 1978, D.R. Horton broke ground on our first home in Fort Worth, Texas. Since that day, the company has defined its success not by bricks and mortar, but by the satisfaction of the families that make our houses their homes. Our foundation is a single, guiding principle: a value-first dedication to the individual needs of each and every one of our nation’s homebuyers.
From first-time homebuyers to empty nesters, our family of brands provides a home for every stage in life. Our highly-trained, market experts are where you want to live, from New Jersey to Hawaii, providing unique, personalized services tailored to your individual needs. But the real value comes from the quality construction we put into every home, and the peace of mind that comes with a premium-backed warranty from America’s Number One Homebuilder.
We’ve come a long way, and while more people choose our family of brands over any other builder in the country, we never forget the most important thing of all – the families that choose us for their place to call home.
So continue to live out those dreams, America, and know we’ll be here for you every step of the way.
More new homes in Omaha, Nebraska
13502 Whitmore St (Hamilton) by D.R. Horton
saved to favorites!
To see all the homes you’ve saved, visit the My Favorites section of your account.
Discover More Great Communities
Select additional listings for more information
Way to Go!
An agent will be in contact soon!
