12937 S 66TH AVE (HAMILTON)
Under Construction
Papillion, NE 68133
Home by D.R. Horton
at Oak Leaf
Last updated 1 day ago
The Price Range displayed reflects the base price of the homes built in this community.
You get to select from the many different types of homes built by this Builder and personalize your New Home with options and upgrades.
3 BR
2 BA
2 GR
1,498 SQ FT
Claim this listing to update information, get access to exclusive tools and more!

Floor Plan 1/3
Overview
1 Story
1498 Sq Ft
2 Bathrooms
2 Car Garage
3 Bedrooms
Single Family
12937 S 66TH AVE (HAMILTON) Home Info
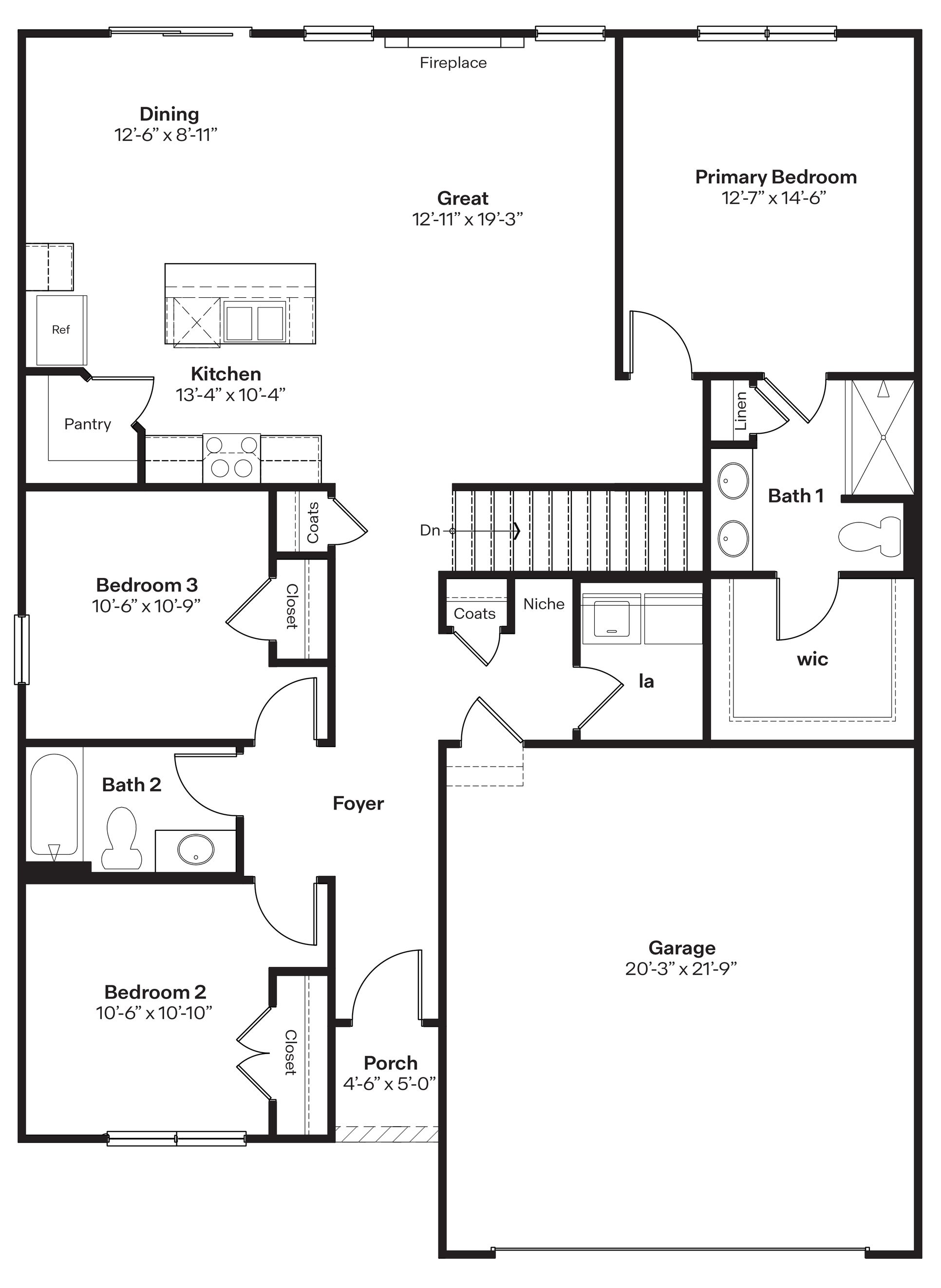
Welcome to 12937 S 66th Ave in Papillion, Ne. This ranch-style home offers 3 bedrooms, 2 bathrooms, and 1,498 sq. ft. of open-concept living that blends comfort, style, and functionality. Step inside to a bright foyer leading past two spacious bedrooms and a full bath-perfect for guests, family, or a home office. The kitchen features white cabinetry, stainless steel appliances, and a large island ideal for entertaining or casual meals. The great room, filled with natural light, offers a welcoming atmosphere for gatherings or cozy nights by the electric fireplace. Tucked away for privacy, the primary suite includes a dual-sink vanity, walk-in shower, and a spacious walk-in closet. Thoughtfully designed with modern finishes, this home is ready for you to make it your own. Step into your new home at Oak Leaf in Papillion today! This home is currently under construction. Photos and video may be similar but not necessarily of subject property, including interior and exterior colors, finishes and appliances.
Floor plan center
View floor plan details for this property.
- Floor Plans
- Exterior Images
- Interior Images
- Other Media
Neighborhood
Community location & sales center
6615 Bluebell St
Papillion, NE 68133
6615 Bluebell St
Papillion, NE 68133
888-790-3488
Schools near Oak Leaf
- South Sarpy District 46
Actual schools may vary. Contact the builder for more information.
Amenities
Home details
Now building
This home is currently under construction at 12937 S 66TH AVE and will soon be available for move-in at Oak Leaf. Contact D.R. Horton today to lock in your options!
Builder details
D.R. Horton
In 1978, D.R. Horton broke ground on our first home in Fort Worth, Texas. Since that day, the company has defined its success not by bricks and mortar, but by the satisfaction of the families that make our houses their homes. Our foundation is a single, guiding principle: a value-first dedication to the individual needs of each and every one of our nation’s homebuyers.
From first-time homebuyers to empty nesters, our family of brands provides a home for every stage in life. Our highly-trained, market experts are where you want to live, from New Jersey to Hawaii, providing unique, personalized services tailored to your individual needs. But the real value comes from the quality construction we put into every home, and the peace of mind that comes with a premium-backed warranty from America’s Number One Homebuilder.
We’ve come a long way, and while more people choose our family of brands over any other builder in the country, we never forget the most important thing of all – the families that choose us for their place to call home.
So continue to live out those dreams, America, and know we’ll be here for you every step of the way.
More new homes in Papillion, Nebraska
12937 S 66TH AVE (HAMILTON) by D.R. Horton
saved to favorites!
To see all the homes you’ve saved, visit the My Favorites section of your account.
Discover More Great Communities
Select additional listings for more information
Way to Go!
An agent will be in contact soon!
