Hamilton Plan
Ready to build
604 Maddie Lane, Tiffin IA 52340
Home by D.R. Horton
Last updated 1 day ago
The Price Range displayed reflects the base price of the homes built in this community.
You get to select from the many different types of homes built by this Builder and personalize your New Home with options and upgrades.
3 BR
2 BA
2 GR
1,498 SQ FT
Claim this listing to update information, get access to exclusive tools and more!

Floorplan 0 1/3
Overview
1 Story
1498 Sq Ft
2 Bathrooms
2 Car Garage
3 Bedrooms
Single Family
Hamilton Plan Info
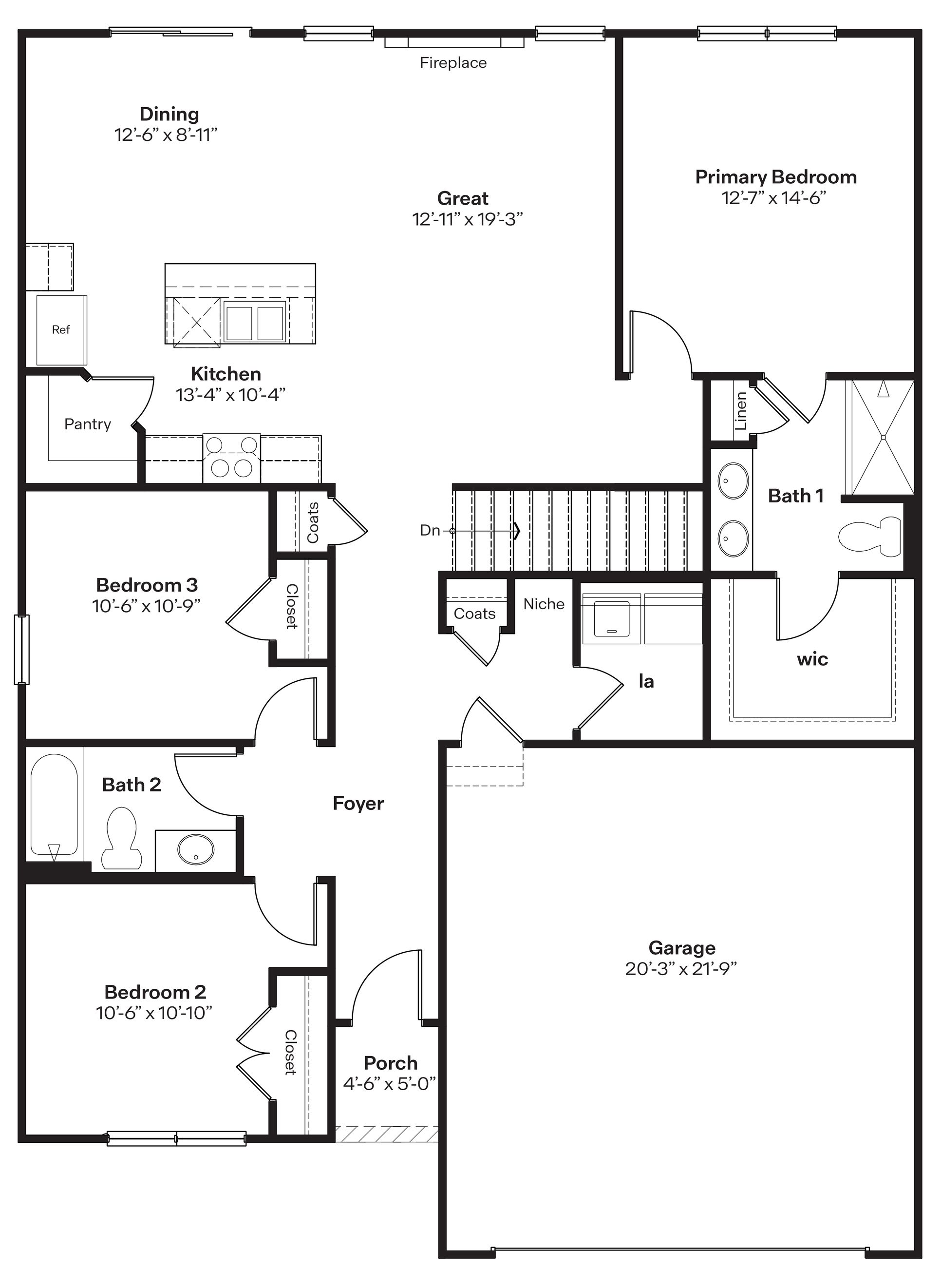
Say hello to the Hamilton Plan by D.R. Horton, located in our Prairie Village Single Family community in Tiffin, Iowa. This ranch style floor plan offers 4 bedrooms, 3 full bathrooms, and 2,190 sq. ft. of living space with a finished basement, making it perfect for families seeking a modern, open layout. The Hamilton Plan features two large bedrooms at the front of the home, ideal for guests or children, while the primary suite is at the back for added privacy. The primary includes a walk-in closet and spacious bath with dual vanity sinks and ceramic-tiled walk-in shower-perfect for relaxing after a long day. The open-concept living area with 9-ft ceilings is designed for both relaxation and entertaining. The kitchen boasts a large island, subway tile backsplash, and shaker-style cabinetry, making it perfect for cooking, dining, or hosting friends and family. Practicality is key in the Hamilton Plan, with a convenient closet for coats and jackets upon entering from the garage, helping keep your home organized. The finished basement offers a large rec area, the fourth bedroom and third full bathroom. The Hamilton Plan includes energy-efficient features and high-quality materials, providing an incredible value for homebuyers. Call today to schedule a tour in the Prairie Village Single Family community.
Floor plan center
View floor plan details for this property.
- Floor Plans
- Exterior Images
- Interior Images
- Other Media
Neighborhood
Community location & sales center
604 Maddie Lane
Tiffin, IA 52340
604 Maddie Lane
Tiffin, IA 52340
888-790-3488
Schools near Prairie Village Single Family
- Clear Creek Amana Comm School District
- Clear Creek Amana Middle School
- Clear Creek Amana High School
Actual schools may vary. Contact the builder for more information.
Amenities
Home details
Ready to build
Build the home of your dreams with the Hamilton plan by selecting your favorite options. For the best selection, pick your lot in Prairie Village Single Family today!
Nearby schools
Clear Creek Amana Comm School District
Middle school. Grades 6 to 8.
- Public school
- Teacher - student ratio: 1:14
- Students enrolled: 640
311 W Marengo Rd, Tiffin, IA, 52340
319-545-4490
High school. Grades 9 to 12.
- Public school
- Teacher - student ratio: 1:13
- Students enrolled: 728
551 W Marengo Rd, Tiffin, IA, 52340
319-545-2361
Actual schools may vary. We recommend verifying with the local school district, the school assignment and enrollment process.
Neighborhood amenities
Fareway
0.39 mile away
500 Croell Ave
Costco Wholesale
2.18 miles away
2900 Heartland Dr
Walmart Supercenter
2.41 miles away
2801 Commerce Dr
Hy-Vee
2.79 miles away
3285 Crosspark Rd
Fareway
3.28 miles away
615 Westwood Dr
Orenda International
2.36 miles away
2863 Coral Ct
Walmart Bakery
2.41 miles away
2801 Commerce Dr
The Java House
2.77 miles away
350 Herky St
GNC
3.07 miles away
1451 Coral Ridge Ave
Nothing Bundt Cakes
3.12 miles away
2611 James St
Bryant's Off 6
0.39 mile away
109 W Marengo Rd
Casa Tequilla 2 Inc
0.51 mile away
119 W Marengo Rd
Jon's Ice Cream Store & Restaurant
0.55 mile away
231 W Marengo Rd
Van Horne Express LLC
0.57 mile away
221 W Marengo Rd
Subway
1.08 miles away
101 Village Dr
Starbucks
2.51 miles away
3290 Redhawk St
Dunn Brothers Coffee
2.64 miles away
3284 Crosspark Rd
Avaey
2.64 miles away
3284 Crosspark Rd
Starbucks
2.79 miles away
3285 Crosspark Rd
Barnes & Noble Cafe
2.95 miles away
1451 Coral Ridge Ave
Costco Wholesale
2.18 miles away
2900 Heartland Dr
Walmart Supercenter
2.41 miles away
2801 Commerce Dr
Kohl's
2.53 miles away
2795 Commerce Dr
Men's Wearhouse
2.80 miles away
2510 Corridor Way
Red Wing Shoe Store
2.81 miles away
2510 Corridor Way
Throttle Down Sports Bar
0.31 mile away
607 E Marengo Rd
Quinton's Bar & Deli
2.83 miles away
2500 Corridor Way
Buffalo Wild Wings
2.85 miles away
2500 Corridor Way
LongHorn Steakhouse
2.90 miles away
2671 James St
Chili's
2.98 miles away
2651 2nd St
Please note this information may vary. If you come across anything inaccurate, please contact us.
Builder details
D.R. Horton
In 1978, D.R. Horton broke ground on our first home in Fort Worth, Texas. Since that day, the company has defined its success not by bricks and mortar, but by the satisfaction of the families that make our houses their homes. Our foundation is a single, guiding principle: a value-first dedication to the individual needs of each and every one of our nation’s homebuyers.
From first-time homebuyers to empty nesters, our family of brands provides a home for every stage in life. Our highly-trained, market experts are where you want to live, from New Jersey to Hawaii, providing unique, personalized services tailored to your individual needs. But the real value comes from the quality construction we put into every home, and the peace of mind that comes with a premium-backed warranty from America’s Number One Homebuilder.
We’ve come a long way, and while more people choose our family of brands over any other builder in the country, we never forget the most important thing of all – the families that choose us for their place to call home.
So continue to live out those dreams, America, and know we’ll be here for you every step of the way.
More new homes in Tiffin, Iowa
Hamilton Plan by D.R. Horton
saved to favorites!
To see all the homes you’ve saved, visit the My Favorites section of your account.
Discover More Great Communities
Select additional listings for more information
Way to Go!
An agent will be in contact soon!
