Hampshire Plan
Ready to build
7009 Butternut Oak Terrace, Huntersville NC 28078
Home by D.R. Horton
Last updated 19 hours ago
The Price Range displayed reflects the base price of the homes built in this community.
You get to select from the many different types of homes built by this Builder and personalize your New Home with options and upgrades.
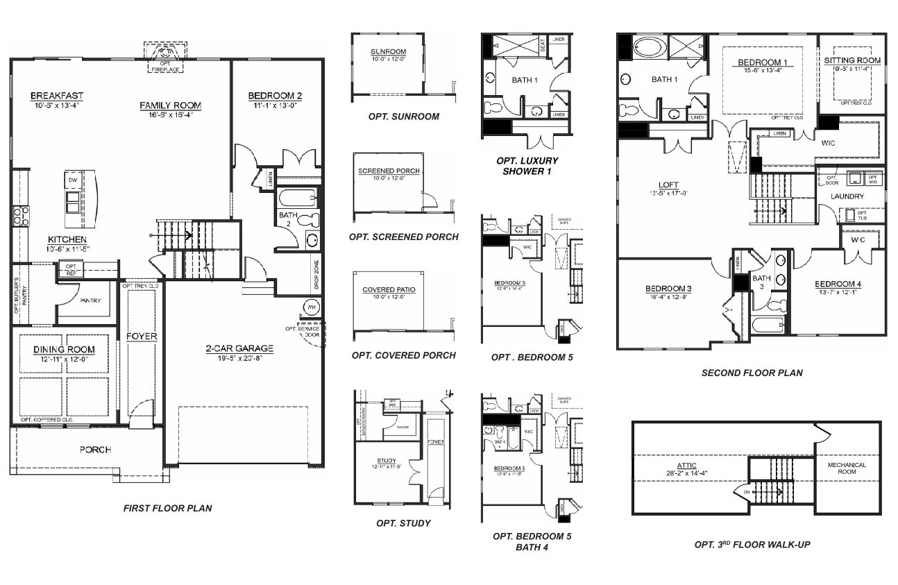
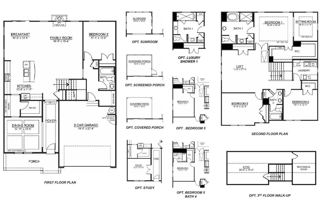
4 BR
3 BA
2 GR
3,113 SQ FT
Claim this listing to update information, get access to exclusive tools and more!

Floorplan 0 1/2
Overview
2 Stories
Single Family
Hampshire Plan Info
The Hampshire is a two-story plan featured in Oak Grove Hill in Huntersville, NC. The Hampshire offers four bedrooms, three bathrooms and a two-car garage. Step inside to discover an expansive living space that caters to the needs of modern living. The heart of this home is the gourmet kitchen, it features high-end stainless-steel appliances, elegant granite countertops with tile backsplash, a center island, and abundant storage space. Escape to the primary suite, a spacious sanctuary completed with a comfortable bedroom area, en-suite bathroom with a soaking tub, a separate shower, and dual vanity. It also includes a walk-in closet and a sitting room. In addition to the primary suite, the Hampshire offers multiple bedrooms, ensuring privacy and comfort for every member of the household. Flex rooms can be customized to fit your specific needs. With its impressive features and versatile living spaces this home is sure to exceed your expectations. Do not miss this opportunity to make this home yours at Oak Grove Hill in Huntersville, NC.
Floor plan center
View floor plan details for this property.
- Floor Plans
- Exterior Images
- Interior Images
- Other Media
Neighborhood
Community location & sales center
7009 Butternut Oak Terrace <br/> Huntersville, NC 28078
7009 Butternut Oak Terrace <br/> Huntersville, NC 28078
888-790-3488
Schools near Oak Grove Hill
- Charlotte-mecklenburg Schools
- Long Creek Elementary School
- Francis Bradley Middle School
- Hopewell High School
Actual schools may vary. Contact the builder for more information.
Amenities
Home details
Ready to build
Build the home of your dreams with the Hampshire plan by selecting your favorite options. For the best selection, pick your lot in Oak Grove Hill today!
Nearby schools
Charlotte-mecklenburg Schools
Long Creek Elementary School
Elementary school. Grades PK to 5.
Public school
Teacher - student ratio: 1:14
Students enrolled: 476
980-343-6095
9213 Beatties Ford Rd Ste A, Huntersville, NC, 28078
Francis Bradley Middle School
Middle school. Grades 6 to 8.
Public school
Teacher - student ratio: 1:18
Students enrolled: 1064
980-343-5750
13345 Beatties Ford Rd, Huntersville, NC, 28078
Hopewell High School
High school. Grades 9 to 12.
Public school
Teacher - student ratio: 1:17
Students enrolled: 1755
980-343-5988
11530 Beatties Ford Rd, Huntersville, NC, 28078
Actual schools may vary. We recommend verifying with the local school district, the school assignment and enrollment process.
Builder details
D.R. Horton
In 1978, D.R. Horton broke ground on our first home in Fort Worth, Texas. Since that day, the company has defined its success not by bricks and mortar, but by the satisfaction of the families that make our houses their homes. Our foundation is a single, guiding principle: a value-first dedication to the individual needs of each and every one of our nation’s homebuyers.
From first-time homebuyers to empty nesters, our family of brands provides a home for every stage in life. Our highly-trained, market experts are where you want to live, from New Jersey to Hawaii, providing unique, personalized services tailored to your individual needs. But the real value comes from the quality construction we put into every home, and the peace of mind that comes with a premium-backed warranty from America’s Number One Homebuilder.
We’ve come a long way, and while more people choose our family of brands over any other builder in the country, we never forget the most important thing of all – the families that choose us for their place to call home.
So continue to live out those dreams, America, and know we’ll be here for you every step of the way.
More new homes in Huntersville, North Carolina
Hampshire Plan by D.R. Horton
saved to favorites!
To see all the homes you’ve saved, visit the My Favorites section of your account.
Discover More Great Communities
Select additional listings for more information
Way to Go!
An agent will be in contact soon!
