Harmony Plan
Ready to build
3650 Azalea Drive, Waukee IA 50263
Home by D.R. Horton
Last updated 1 day ago
The Price Range displayed reflects the base price of the homes built in this community.
You get to select from the many different types of homes built by this Builder and personalize your New Home with options and upgrades.
2 BR
2.5 BA
2 GR
1,498 SQ FT
Claim this listing to update information, get access to exclusive tools and more!

Floorplan 1 1/2
Overview
1 Half Bathroom
1 Story
Single Family
Harmony Plan Info
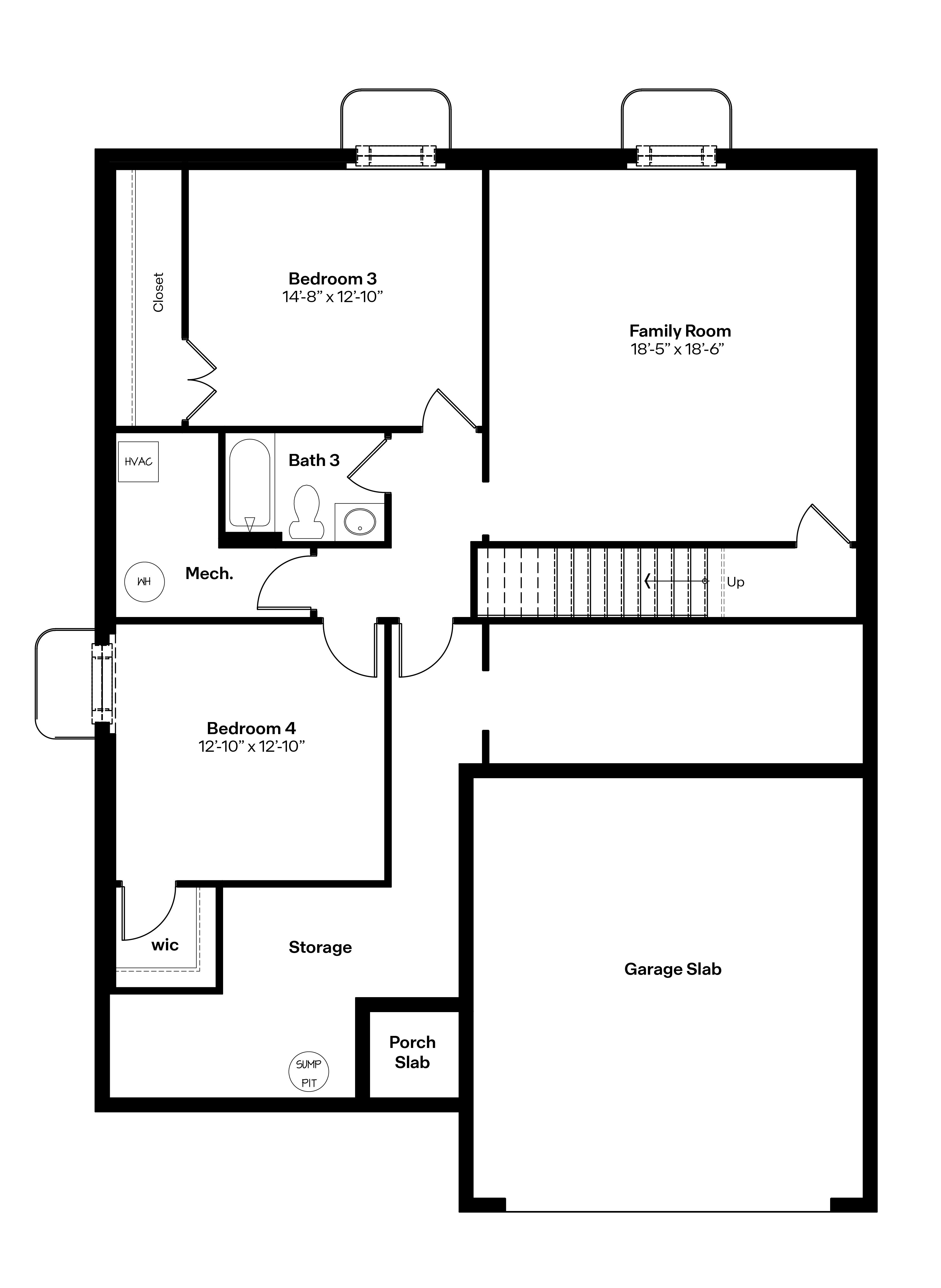
Step inside the Harmony floor plan at Painted Woods West in Waukee, IA. This open-concept ranch-style home offers 4 bedrooms, 3.5 bathrooms, a 2-3 car garage, and 2,462 sq. ft. of thoughtfully designed living space. A standout feature is the junior primary bedroom on the main level, complete with an en-suite bath and walk-in closet. Continue through the foyer past the laundry room and guest bathroom to the heart of the home, where the living room, dining area, and kitchen flow seamlessly. The living room features an electric fireplace and large windows that fill the space with natural light. The kitchen includes white cabinetry, quartz countertops, stainless steel appliances, a large island, and a spacious pantry. The rear primary bedroom offers privacy with an en-suite bathroom and a generous walk-in closet. The finished lower level provides two additional bedrooms, a shared full bathroom, and a large rec room perfect for entertaining or relaxing. Step into your new home in the Painted Woods West community today!
Floor plan center
View floor plan details for this property.
- Floor Plans
- Exterior Images
- Interior Images
- Other Media
Neighborhood
Community location & sales center
3650 Azalea Drive
Waukee, IA 50263
3650 Azalea Drive
Waukee, IA 50263
888-790-3488
Schools near Painted Woods West
- Waukee Comm School District
- Sugar Creek Elementary School
- Waukee Middle School
- Waukee High School
Actual schools may vary. Contact the builder for more information.
Amenities
Home details
Ready to build
Build the home of your dreams with the Harmony plan by selecting your favorite options. For the best selection, pick your lot in Painted Woods West today!
Nearby schools
Waukee Comm School District
Sugar Creek Elementary School
Elementary school. Grades KG to 5
Public school
Enrollment: 623
515-987-2786
965 Ashworth Rd, Waukee, IA, 50263
Waukee Middle School
Middle school. Grades 6 to 8
Public school
Class ratio: 1: 15
Enrollment: 1069
515-987-5177
905 S Warrior Ln, Waukee, IA, 50263
Waukee High School
High school. Grades 10 to 12
Public school
Class ratio: 1: 15
Enrollment: 1268
515-987-5163
555 Se University Ave, Waukee, IA, 50263
Actual schools may vary. We recommend verifying with the local school district, the school assignment and enrollment process.
Builder details
D.R. Horton
In 1978, D.R. Horton broke ground on our first home in Fort Worth, Texas. Since that day, the company has defined its success not by bricks and mortar, but by the satisfaction of the families that make our houses their homes. Our foundation is a single, guiding principle: a value-first dedication to the individual needs of each and every one of our nation’s homebuyers.
From first-time homebuyers to empty nesters, our family of brands provides a home for every stage in life. Our highly-trained, market experts are where you want to live, from New Jersey to Hawaii, providing unique, personalized services tailored to your individual needs. But the real value comes from the quality construction we put into every home, and the peace of mind that comes with a premium-backed warranty from America’s Number One Homebuilder.
We’ve come a long way, and while more people choose our family of brands over any other builder in the country, we never forget the most important thing of all – the families that choose us for their place to call home.
So continue to live out those dreams, America, and know we’ll be here for you every step of the way.
More new homes in Waukee, Iowa
Harmony Plan by D.R. Horton
saved to favorites!
To see all the homes you’ve saved, visit the My Favorites section of your account.
Discover More Great Communities
Select additional listings for more information
Way to Go!
An agent will be in contact soon!
