HAYDEN Plan
Ready to build
105 Alistar Avenue, Gray Court SC 29645
Home by D.R. Horton
at Foxbank
Last updated 1 day ago
The Price Range displayed reflects the base price of the homes built in this community.
You get to select from the many different types of homes built by this Builder and personalize your New Home with options and upgrades.
5 BR
3 BA
2 GR
2,511 SQ FT
Claim this listing to update information, get access to exclusive tools and more!

Floorplan 0 1/3
Overview
2 Stories
Single Family
HAYDEN Plan Info
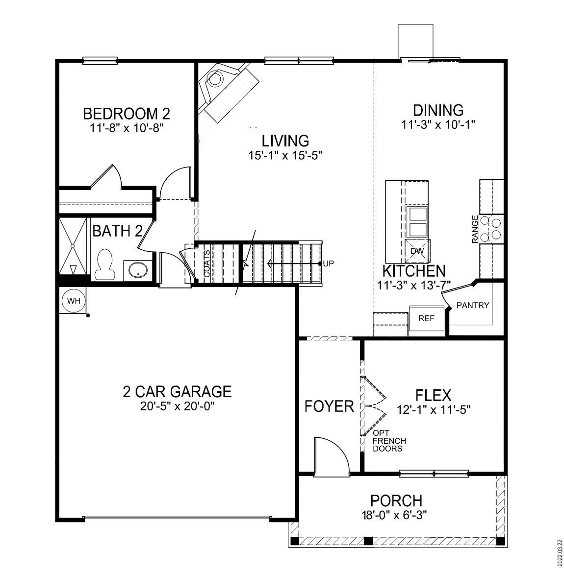
The Hayden is one of our two-story plans featured at Foxbank in Gray Court, SC offering 3 modern elevations. It also offers a secondary bedroom on the main floor. The Hayden is a spacious and modern two-story home. The home features five bedrooms, three bathrooms and a two-car garage. Upon entering the home, you'll be greeted by an inviting foyer connecting to a home office, then leading into the center of the home. This open-planned space features a large living room, dining area, and functional kitchen. The kitchen is equipped with a walk-in pantry, stainless steel appliances, and center island with a breakfast bar. Also located on the first floor, located off the living room, is a convenient guest bedroom and full bathroom. The Hayden upstairs features a spacious primary suite, complete with walk-in closet and primary bathroom with dual vanities. The additional three bedrooms share a third full bathroom. There is an upstairs loft space, perfect for family entertainment, gaming, or a reading area. With its luxurious design the Hayden is the perfect place to call home. Do not miss this opportunity to make the Hayden yours at Foxbank.
Floor plan center
View floor plan details for this property.
- Floor Plans
- Exterior Images
- Interior Images
- Other Media
Neighborhood
Community location & sales center
105 Alistar Avenue
Gray Court, SC 29645
105 Alistar Avenue
Gray Court, SC 29645
888-790-3488
Schools near Foxbank
- Laurens County School District 55
- Gray Court Owings Elementary Middle School
Actual schools may vary. Contact the builder for more information.
Amenities
Home details
Ready to build
Build the home of your dreams with the HAYDEN plan by selecting your favorite options. For the best selection, pick your lot in Foxbank today!
Nearby schools
Laurens County School District 55
Gray Court Owings Elementary Middle School
Elementary-Middle school. Grades PK to 8
Public school
Class ratio: 1: 13
Enrollment: 763
864-876-2131
9210 Highway 14, Gray Court, SC, 29645
Actual schools may vary. We recommend verifying with the local school district, the school assignment and enrollment process.
Builder details
D.R. Horton
In 1978, D.R. Horton broke ground on our first home in Fort Worth, Texas. Since that day, the company has defined its success not by bricks and mortar, but by the satisfaction of the families that make our houses their homes. Our foundation is a single, guiding principle: a value-first dedication to the individual needs of each and every one of our nation’s homebuyers.
From first-time homebuyers to empty nesters, our family of brands provides a home for every stage in life. Our highly-trained, market experts are where you want to live, from New Jersey to Hawaii, providing unique, personalized services tailored to your individual needs. But the real value comes from the quality construction we put into every home, and the peace of mind that comes with a premium-backed warranty from America’s Number One Homebuilder.
We’ve come a long way, and while more people choose our family of brands over any other builder in the country, we never forget the most important thing of all – the families that choose us for their place to call home.
So continue to live out those dreams, America, and know we’ll be here for you every step of the way.
More new homes in Gray Court, South Carolina
HAYDEN Plan by D.R. Horton
saved to favorites!
To see all the homes you’ve saved, visit the My Favorites section of your account.
Discover More Great Communities
Select additional listings for more information
Way to Go!
An agent will be in contact soon!
