HAYDEN II Plan
Ready to build
12517 Russian Olive Rd, Jacksonville FL 32218
Home by D.R. Horton
at The Arbors
Last updated 3 days ago
The Price Range displayed reflects the base price of the homes built in this community.
You get to select from the many different types of homes built by this Builder and personalize your New Home with options and upgrades.
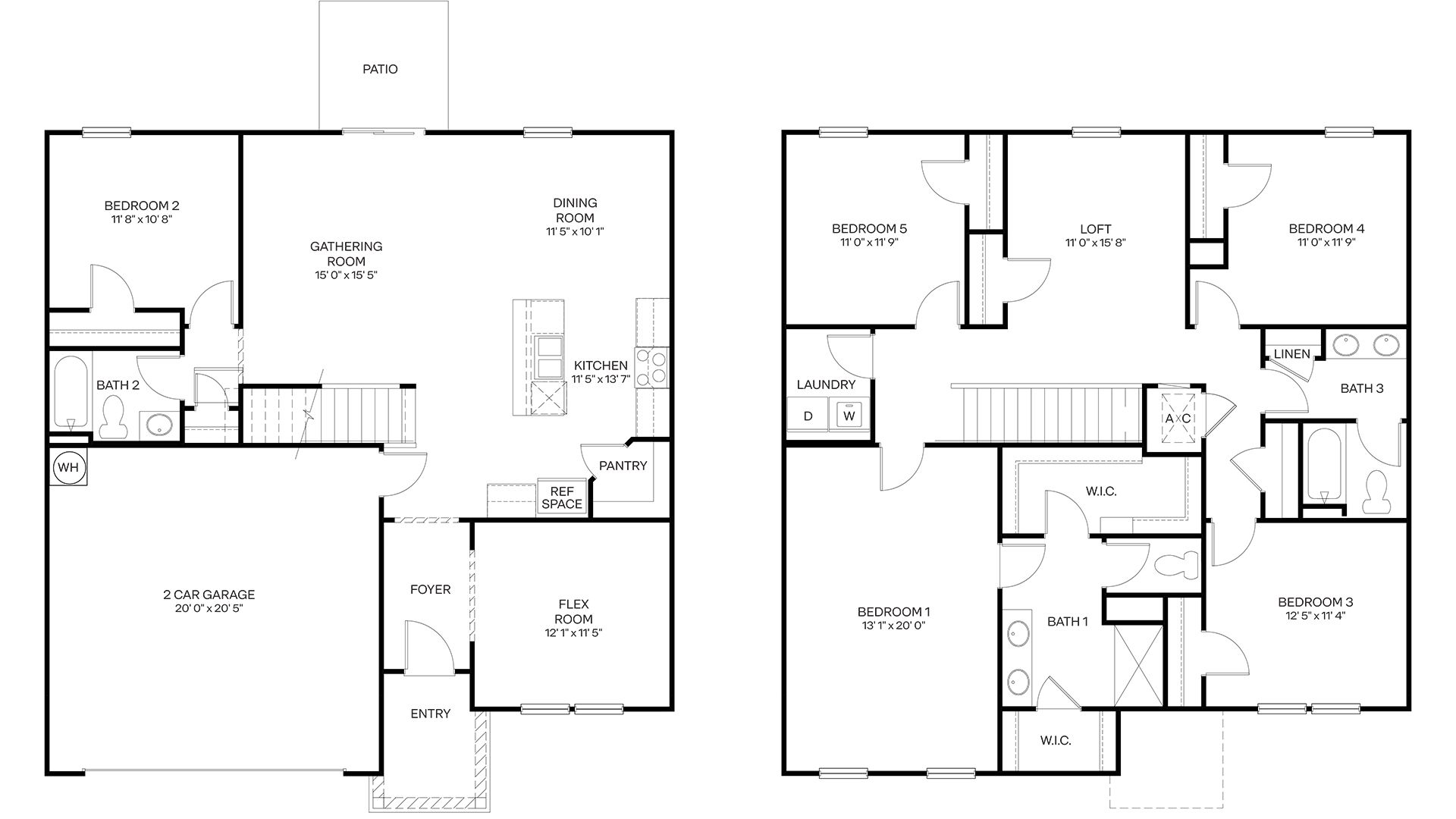
5 BR
3 BA
2 GR
2,499 SQ FT
Claim this listing to update information, get access to exclusive tools and more!

Floorplan 0 1/1
Overview
2 Car Garage
2 Stories
2499 Sq Ft
3 Bathrooms
5 Bedrooms
Single Family
HAYDEN II Plan Info
Welcome to The Arbors, a new home community located in Jacksonville's rapidly expanding Northside. These 3-to-5-bedroom homes offer up to 2,499 sq. ft. of living space and the perfect opportunity to start your new home journey in one of the city's most desirable areas. Located just a few miles from the expansive River City Marketplace, The Arbors offers convenient access to a wide range of shopping, dining, and entertainment options. Plus, with Jacksonville International Airport nearby, traveling has never been easier. Whether you're commuting or exploring the city, you'll love the ideal location of this new home community. At The Arbors, residents enjoy a variety of amenities designed for relaxation and recreation. Dive into the refreshing pool on warm Florida days, stay active at the fitness center, or let the kids explore the splash pad and the playground. Plus, plans for a future amenity expansion are underway! This is a community built with families in mind, offering something for each member of the family. D.R. Horton's affordable Express Series Homes are perfect for first-time homebuyers or those looking to upgrade to a modern, well-designed home. Each home features the quality craftsmanship and thoughtful design D.R. Horton is known for as well as smart home technology products that will keep you connected to your home no matter the distance. Discover The Arbors today and find the perfect place to call home. Schedule a tour or give us a call to connect with an O
Floor plan center
View floor plan details for this property.
- Floor Plans
- Exterior Images
- Interior Images
- Other Media
Neighborhood
Community location & sales center
12517 Russian Olive Rd
Jacksonville, FL 32218
12517 Russian Olive Rd
Jacksonville, FL 32218
888-355-8096
Schools near The Arbors
- Duval County School District
Actual schools may vary. Contact the builder for more information.
Amenities
Home details
Ready to build
Build the home of your dreams with the HAYDEN II plan by selecting your favorite options. For the best selection, pick your lot in The Arbors today!
Builder details
D.R. Horton
In 1978, D.R. Horton broke ground on our first home in Fort Worth, Texas. Since that day, the company has defined its success not by bricks and mortar, but by the satisfaction of the families that make our houses their homes. Our foundation is a single, guiding principle: a value-first dedication to the individual needs of each and every one of our nation’s homebuyers.
From first-time homebuyers to empty nesters, our family of brands provides a home for every stage in life. Our highly-trained, market experts are where you want to live, from New Jersey to Hawaii, providing unique, personalized services tailored to your individual needs. But the real value comes from the quality construction we put into every home, and the peace of mind that comes with a premium-backed warranty from America’s Number One Homebuilder.
We’ve come a long way, and while more people choose our family of brands over any other builder in the country, we never forget the most important thing of all – the families that choose us for their place to call home.
So continue to live out those dreams, America, and know we’ll be here for you every step of the way.
More new homes in Jacksonville, Florida
HAYDEN II Plan by D.R. Horton
saved to favorites!
To see all the homes you’ve saved, visit the My Favorites section of your account.
Discover More Great Communities
Select additional listings for more information
Way to Go!
An agent will be in contact soon!
