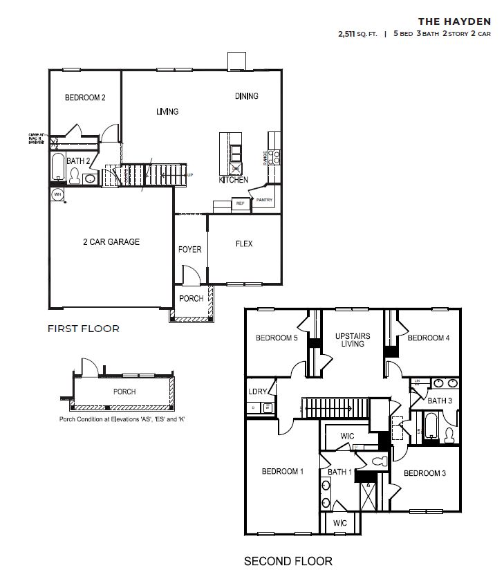
HAYDEN Plan
Ready to build
11035 Chappell Creek Cir, North Prince George VA 23860
Home by D.R. Horton
Last updated 2 days ago
The Price Range displayed reflects the base price of the homes built in this community.
You get to select from the many different types of homes built by this Builder and personalize your New Home with options and upgrades.
5 BR
3 BA
2 GR
2,511 SQ FT
Claim this listing to update information, get access to exclusive tools and more!

Floorplan 0 1/1
Overview
2 Stories
Single Family
HAYDEN Plan Info
Welcome to the 2511 sq ft Hayden model, offering a modern open-concept living space designed for both comfort and flexibility. The main level features a welcoming living room, a spacious dining room, and a well-appointed kitchen with walk-in pantry, perfect for family gatherings and entertaining. The main floor also includes a full bedroom, a bathroom, and a versatile flex room, allowing you to create the ideal space for your family's needs. Upstairs, an additional living space offers even more flexibility for a home office, playroom, or entertainment area. The large primary suite is a true retreat, featuring 2 large walk-in closets and a luxurious bathroom with separate vanities and a private water closet. The second floor also includes a laundry room, a full bathroom, and three additional spacious bedrooms, ensuring plenty of room for everyone. The Hayden model is the perfect live-play-work home, offering flexible living spaces and modern amenities for today's family, providing everything you need to live, work, and play in comfort.
Floor plan center
View floor plan details for this property.
- Floor Plans
- Exterior Images
- Interior Images
- Other Media
Neighborhood
Community location & sales center
11035 Chappell Creek Cir <br/> North Prince George, VA 23860
11035 Chappell Creek Cir <br/> North Prince George, VA 23860
888-355-8096
Schools near Chappell Creek
- Prince George County Public Schools
- North Elementary School
- J.e.j. Moore Middle School
- Prince George High School
Actual schools may vary. Contact the builder for more information.
Amenities
Home details
Ready to build
Build the home of your dreams with the HAYDEN plan by selecting your favorite options. For the best selection, pick your lot in Chappell Creek today!
Nearby schools
Prince George County Public Schools
North Elementary School
Elementary school. Grades PK to 5.
Public school
Teacher - student ratio: 1:15
Students enrolled: 785
804-458-8922
11106 Old Stage Rd, Prince George, VA, 23875
J.e.j. Moore Middle School
Middle-High school. Grades 6 to 12.
Public school
Teacher - student ratio: 1:12
Students enrolled: 1393
804-733-2748
11455 Prince George Dr, Disputanta, VA, 23842
Prince George High School
High school. Grades 9 to 12.
Public school
Teacher - student ratio: 1:13
Students enrolled: 1796
804-733-2720
7801 Laurel Spring Rd, Prince George, VA, 23875
Actual schools may vary. We recommend verifying with the local school district, the school assignment and enrollment process.
Neighborhood amenities
Randolph Market
4.03 miles away
300 N 6th Ave
Randolph Market
4.15 miles away
6th Ave & Broadway
Oriental Food Market
4.30 miles away
231 S 15th Ave
J & A Latino Market
4.42 miles away
2320 Oaklawn Blvd
Food Lion
4.59 miles away
4000 Prince George Dr
Shaklee Distributor
0.49 mile away
1402 Jordan Point Rd
Wonder City Bakery
3.58 miles away
245 E Broadway
Dessie's Delicious Desserts
6.13 miles away
213 Wren St
Exxon
1.10 miles away
10101 James River Dr
Hopewell Quick Lunch
3.48 miles away
113 Hopewell St
Saucy's Walk-Up Bar B Q
3.53 miles away
207 E City Point Rd
Omega Restaurant Inc
3.56 miles away
120 E City Point Rd
Lisa's Cafe
3.57 miles away
236 E Broadway
Guncotton Coffee & Gallery
3.57 miles away
238 E Broadway
Starbucks
4.15 miles away
5320 Oaklawn Blvd
What the Cup
4.64 miles away
2701 Oaklawn Blvd
Dunkin'
6.50 miles away
5113 Oaklawn Blvd
Starbucks
6.74 miles away
300 A Ave
Edgewood
2.77 miles away
4800 John Tyler Memorial Hwy
Citi Trends
4.15 miles away
205-B Cavalier Sq Bay 22
Family Dollar
4.27 miles away
1033 Elm St
Family Dollar
5.17 miles away
3317 Oaklawn Blvd
Family Dollar
6.59 miles away
5207 Plaza Dr
Indian Fields Tavern
6.54 miles away
9220 John Tyler Memorial Hwy
The Taphouse at River's Bend
8.12 miles away
13131 Rivers Bend Blvd
Tilted Kilt Pub & Eatery
8.72 miles away
2070 Waterside Rd
Sedona Taphouse
9.58 miles away
435 Charles H Dimmock Pkwy
Buffalo Wild Wings
9.73 miles away
1156 Temple Ave
Please note this information may vary. If you come across anything inaccurate, please contact us.
Builder details
D.R. Horton
In 1978, D.R. Horton broke ground on our first home in Fort Worth, Texas. Since that day, the company has defined its success not by bricks and mortar, but by the satisfaction of the families that make our houses their homes. Our foundation is a single, guiding principle: a value-first dedication to the individual needs of each and every one of our nation’s homebuyers.
From first-time homebuyers to empty nesters, our family of brands provides a home for every stage in life. Our highly-trained, market experts are where you want to live, from New Jersey to Hawaii, providing unique, personalized services tailored to your individual needs. But the real value comes from the quality construction we put into every home, and the peace of mind that comes with a premium-backed warranty from America’s Number One Homebuilder.
We’ve come a long way, and while more people choose our family of brands over any other builder in the country, we never forget the most important thing of all – the families that choose us for their place to call home.
So continue to live out those dreams, America, and know we’ll be here for you every step of the way.
More new homes in North Prince George, Virginia
HAYDEN Plan by D.R. Horton
saved to favorites!
To see all the homes you’ve saved, visit the My Favorites section of your account.
Discover More Great Communities
Select additional listings for more information
Way to Go!
An agent will be in contact soon!
