HELENA Plan
Ready to build
182 Bunch Ford Rd Holly Hill SC 29059, Holly Hill SC 29059
Home by D.R. Horton
at Evergreen
Last updated 2 days ago
The Price Range displayed reflects the base price of the homes built in this community.
You get to select from the many different types of homes built by this Builder and personalize your New Home with options and upgrades.
4 BR
2 BA
1 GR
1,482 SQ FT
Claim this listing to update information, get access to exclusive tools and more!

Floorplan 0 1/1
Overview
1 Story
Single Family
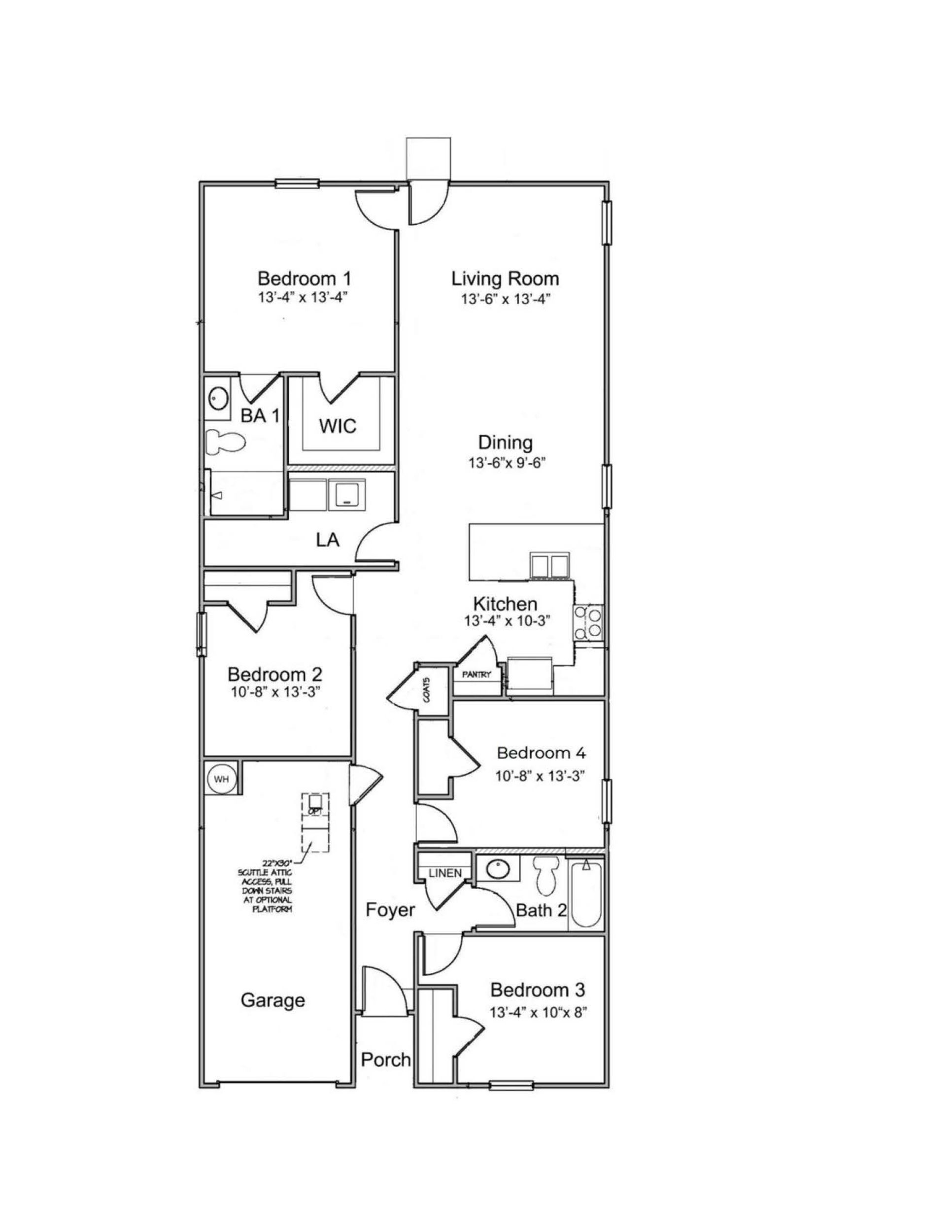
HELENA Plan Info
Situated on a desirable corner homesite, the Helena designed for efficiency and comfort is a 4-bedroom, 2-bathroom home with a 1 car garage, large driveway with ample space for 2 additional cars. Walking into the home you'll be greeted by wood inspired flooring to find 2 front bedrooms with a shared bathroom in between. Continue through the extended foyer you find another room just off the spacious kitchen, perfect for a home office or guests when they come to stay. The oversized laundry room is thoughtfully located in the center of the home. This home features gray cabinetry and stainless-steel appliances including a range, microwave, dishwasher and refrigerator. The primary suite at the back of the home features a large walk-in shower and walk in closet. This Ranch style home offers an inviting atmosphere ideal for both entertaining and everyday living. All new homes will include D.R. Horton's Home is Connected® package, an industry leading suite of smart home products that keeps homeowners connected with the people and place they value the most. This technology allows homeowners to monitor and control their home from the couch or across the globe. Products include touchscreen interface, video doorbell, front door light, z-wave t-stat, and keyless door lock. *Square footage dimensions are approximate. *The photos you see here are for illustration purposes only, interior and exterior features, options, colors and selections will differ. Please reach out to sales agent for
Floor plan center
View floor plan details for this property.
- Floor Plans
- Exterior Images
- Interior Images
- Other Media
Neighborhood
Community location & sales center
182 Bunch Ford Rd Holly Hill SC 29059
Holly Hill, SC 29059
182 Bunch Ford Rd Holly Hill SC 29059
Holly Hill, SC 29059
888-355-8096
Schools near Evergreen
- Orangeburg County School District
- Holly Hill Elementary School
- Holly Hill-roberts Middle School
- Lake Marion High School
Actual schools may vary. Contact the builder for more information.
Amenities
Home details
Ready to build
Build the home of your dreams with the HELENA plan by selecting your favorite options. For the best selection, pick your lot in Evergreen today!
Nearby schools
Orangeburg County School District
Holly Hill Elementary School
Elementary school. Grades PK to 5
Public school
Class ratio: 1: 13
Enrollment: 326
803-496-3464
1490 Bryant Ave, Holly Hill, SC, 29059
Holly Hill-roberts Middle School
Middle school. Grades 6 to 8
Public school
Class ratio: 1: 13
Enrollment: 418
803-496-3818
530 Hesseman Ave, Holly Hill, SC, 29059
Lake Marion High School
High school. Grades 9 to 12
Public school
Class ratio: 1: 15
Enrollment: 692
803-854-9213
3656 Tee Vee Rd, Santee, SC, 29142
Actual schools may vary. We recommend verifying with the local school district, the school assignment and enrollment process.
Neighborhood amenities
Piggly Wiggly
1.03 miles away
8508 Old State Rd
General IGA of Holly Hill Inc
1.26 miles away
621 Gardner Blvd
Eutawville IGA
5.21 miles away
225 Branchdale Hwy
Giant Resource Recovery Co
7.06 miles away
482 Seven Mile Rd
Vance Farmers Market
7.23 miles away
10324 Old Number Six Hwy
Mac's Diner
0.78 mile away
8332 Old State Rd
Becca's Soul Food
1.03 miles away
8644 Old State Rd
Carolina Chicken
1.03 miles away
8644 Old State Rd
Hardee's
1.03 miles away
8545 Old State Rd
Hunt Brothers Pizza
1.03 miles away
8640 Old State Rd
Family Dollar Dollar Tree
0.89 mile away
8444 Old State Rd
Family Dollar
6.20 miles away
12155 Old Number Six Hwy
Family Dollar Dollar Tree
7.40 miles away
10503 Old Highway Number 6
Visions Tees 'n Things
9.59 miles away
13825 Old Number Six Hwy
Utopia Restaurant & Lounge
1.03 miles away
7272 Old State Rd
Fish Tales
8.18 miles away
12914 Old Number Six Hwy
Please note this information may vary. If you come across anything inaccurate, please contact us.
Builder details
D.R. Horton
In 1978, D.R. Horton broke ground on our first home in Fort Worth, Texas. Since that day, the company has defined its success not by bricks and mortar, but by the satisfaction of the families that make our houses their homes. Our foundation is a single, guiding principle: a value-first dedication to the individual needs of each and every one of our nation’s homebuyers.
From first-time homebuyers to empty nesters, our family of brands provides a home for every stage in life. Our highly-trained, market experts are where you want to live, from New Jersey to Hawaii, providing unique, personalized services tailored to your individual needs. But the real value comes from the quality construction we put into every home, and the peace of mind that comes with a premium-backed warranty from America’s Number One Homebuilder.
We’ve come a long way, and while more people choose our family of brands over any other builder in the country, we never forget the most important thing of all – the families that choose us for their place to call home.
So continue to live out those dreams, America, and know we’ll be here for you every step of the way.
More new homes in Holly Hill, South Carolina
HELENA Plan by D.R. Horton
saved to favorites!
To see all the homes you’ve saved, visit the My Favorites section of your account.
Discover More Great Communities
Select additional listings for more information
Way to Go!
An agent will be in contact soon!
