Holland Plan
Ready to build
101 8th Ave NE, Altoona IA 50009
Home by D.R. Horton
Last updated 2 days ago
The Price Range displayed reflects the base price of the homes built in this community.
You get to select from the many different types of homes built by this Builder and personalize your New Home with options and upgrades.
4 BR
2 BA
3 GR
2,356 SQ FT
Claim this listing to update information, get access to exclusive tools and more!

Floorplan 0 1/2
Overview
2 Bathrooms
2 Stories
2356 Sq Ft
3 Car Garage
4 Bedrooms
Single Family
Holland Plan Info
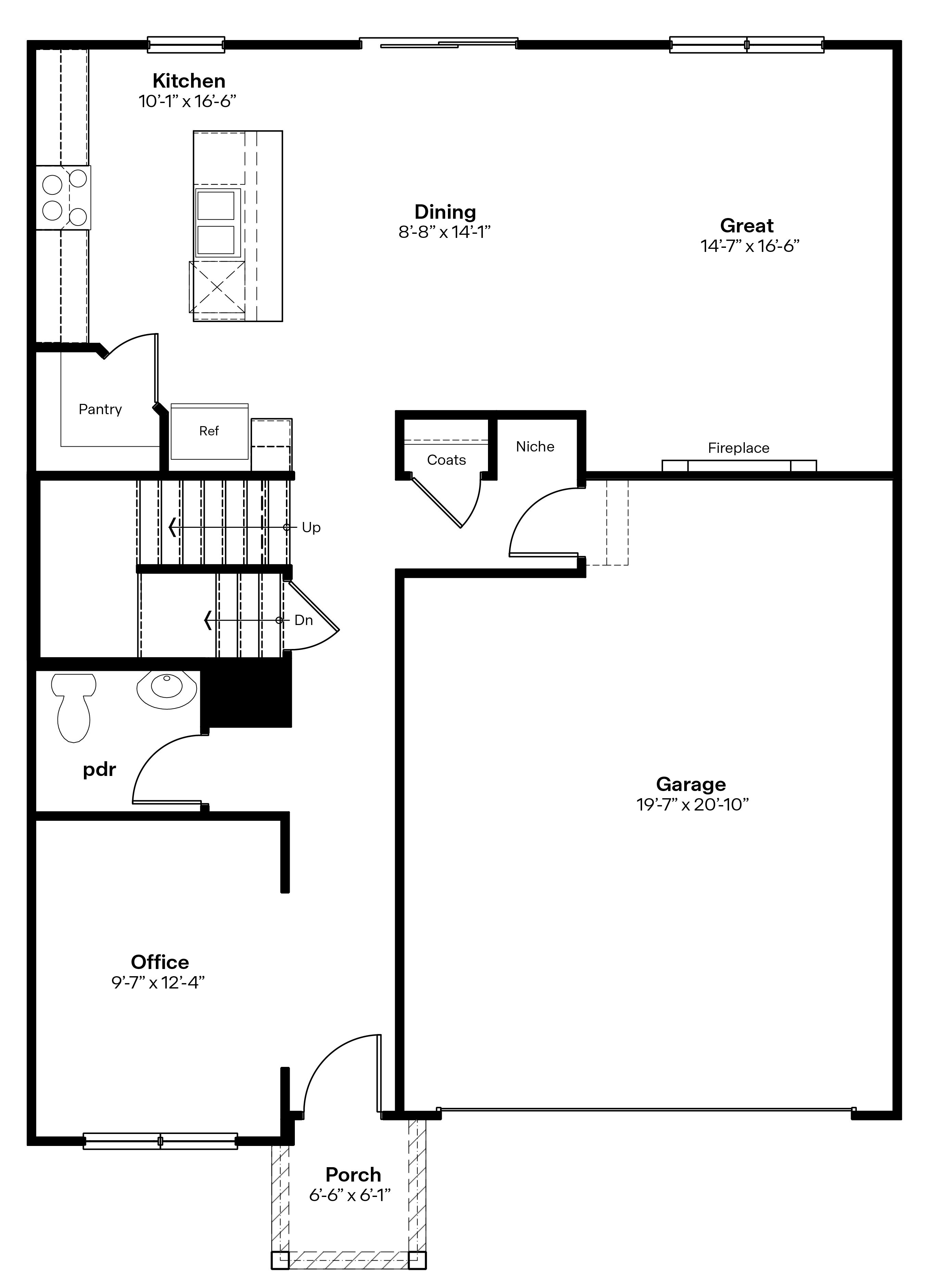
Welcome to the Holland floor plan at Edgewood Trail in Altoona, IA. This 2-story home offers 5 bedrooms, 3.5 bathrooms, a 3-car garage, and 2,929 sq. ft. of living space. Multiple exterior options and an open-concept layout make this home a popular choice. The foyer leads to a flex room perfect for an office, a guest bathroom, and access to the garage and stairs. The heart of the home features a living room with 9-ft ceilings, an electric fireplace, and a gourmet kitchen with quartz countertops, stainless steel appliances, subway tile backsplash, a walk-in pantry, and an oversized island for gathering. Sliding glass doors open to the back patio, making entertaining easy. Upstairs, three secondary bedrooms share a bathroom with dual vanities, a water closet, and tub, along with an oversized laundry and bonus room for extra flexibility. The primary bedroom offers a private ensuite with dual sinks, ceramic-tile walk-in shower, and a spacious walk-in closet. The finished basement offers a rec area, the fifth bedroom, and third full bathroom. Step into your new home in the Edgewood Trail community today!
Floor plan center
View floor plan details for this property.
- Floor Plans
- Exterior Images
- Interior Images
- Other Media
Neighborhood
Community location & sales center
101 8th Ave NE
Altoona, IA 50009
101 8th Ave NE
Altoona, IA 50009
888-790-3488
Schools near Edgewood Trail
- Southeast Polk Community School District
Actual schools may vary. Contact the builder for more information.
Amenities
Home details
Ready to build
Build the home of your dreams with the Holland plan by selecting your favorite options. For the best selection, pick your lot in Edgewood Trail today!
Builder details
D.R. Horton
In 1978, D.R. Horton broke ground on our first home in Fort Worth, Texas. Since that day, the company has defined its success not by bricks and mortar, but by the satisfaction of the families that make our houses their homes. Our foundation is a single, guiding principle: a value-first dedication to the individual needs of each and every one of our nation’s homebuyers.
From first-time homebuyers to empty nesters, our family of brands provides a home for every stage in life. Our highly-trained, market experts are where you want to live, from New Jersey to Hawaii, providing unique, personalized services tailored to your individual needs. But the real value comes from the quality construction we put into every home, and the peace of mind that comes with a premium-backed warranty from America’s Number One Homebuilder.
We’ve come a long way, and while more people choose our family of brands over any other builder in the country, we never forget the most important thing of all – the families that choose us for their place to call home.
So continue to live out those dreams, America, and know we’ll be here for you every step of the way.
More new homes in Altoona, Iowa
Holland Plan by D.R. Horton
saved to favorites!
To see all the homes you’ve saved, visit the My Favorites section of your account.
Discover More Great Communities
Select additional listings for more information
Way to Go!
An agent will be in contact soon!
