11390 CLOISTER DRIVE (JULIA)
Under Construction
Daphne, AL 36526
Home by D.R. Horton
Last updated 20 hours ago
The Price Range displayed reflects the base price of the homes built in this community.
You get to select from the many different types of homes built by this Builder and personalize your New Home with options and upgrades.
3 BR
2 BA
1 GR
1,430 SQ FT
Claim this listing to update information, get access to exclusive tools and more!

Floor Plan 1/1
Overview
1 Car Garage
1 Story
1430 Sq Ft
2 Bathrooms
3 Bedrooms
Single Family
11390 CLOISTER DRIVE (JULIA) Home Info
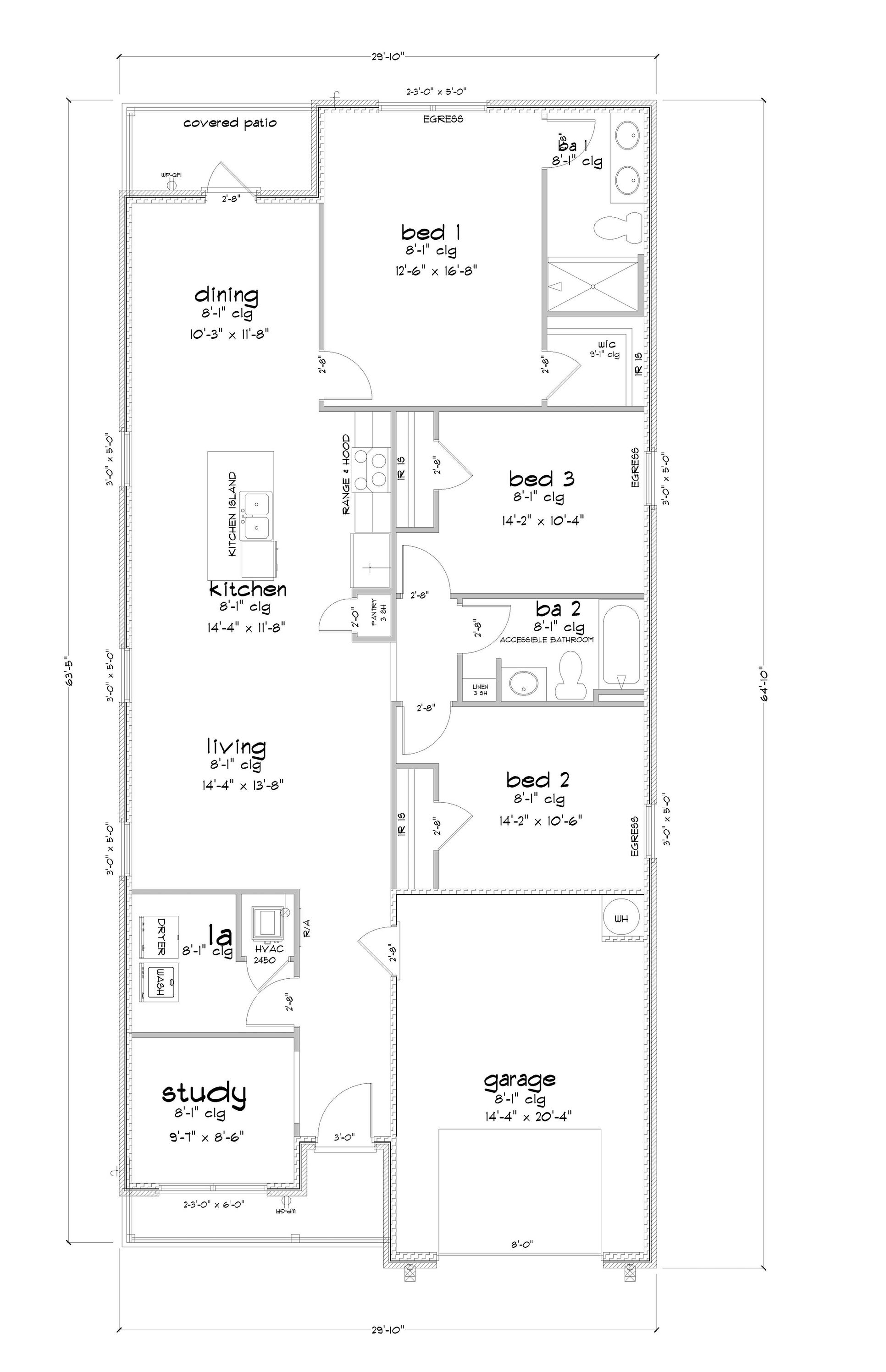
You're invited to tour 11390 Cloister Drive, a single-story new home in The Reserve of Daphne community, located in Daphne, Alabama. Nestled in a cul-de-sac at the back of the neighborhood, this exquisite home offers unparalleled privacy and tranquility. It backs up to a spacious Common Area and boasts an additional small Common Area on the East side, ensuring ample space between you and your neighbor. Inside, the stunning medium-dark brown flooring adds a touch of sophistication and warmth, creating a welcoming and elegant living environment. This 3-bedroom, 2-bathroom home boasts 1,430 square feet of functionality for convenient and comfortable living. As you enter the foyer, you will immediately notice the high-quality details and finishes throughout. Connected off the foyer are the study, laundry room, and garage. Continue walking down the hall and you will enter the great room. The open concept blends the kitchen, living, and dining areas seamlessly, allowing natural light to illuminate the space. The kitchen is fully equipped with white shaker-style cabinets, granite countertops, a center island, stainless steel appliances, and a pantry for storage. The owner's suite is generously sized and includes a walk-in closet and private bathroom with a double sink vanity, granite countertops, and an enclosed shower. Bedrooms two and three are perfect for children and guests. A conveniently located bathroom with a bathtub/shower combination can be found nestled between these
Floor plan center
View floor plan details for this property.
- Floor Plans
- Exterior Images
- Interior Images
- Other Media
Neighborhood
Community location & sales center
11023 Elemis Drive
Daphne, AL 36526
11023 Elemis Drive
Daphne, AL 36526
888-790-3488
Schools near The Reserve at Daphne
- Baldwin County Public Schools
- Daphne Middle School
- Daphne High School
Actual schools may vary. Contact the builder for more information.
Amenities
Home details
Now building
This home is currently under construction at 11390 CLOISTER DRIVE and will soon be available for move-in at The Reserve at Daphne. Contact D.R. Horton today to lock in your options!
Nearby schools
Baldwin County Public Schools
Middle school. Grades 7 to 8.
- Public school
- Teacher - student ratio: 1:19
- Students enrolled: 846
1 Jody Davis Cir, Daphne, AL, 36526
251-626-2845
High school. Grades 9 to 12.
- Public school
- Teacher - student ratio: 1:19
- Students enrolled: 1725
9300 Champions Way, Daphne, AL, 36526
251-626-8787
Actual schools may vary. We recommend verifying with the local school district, the school assignment and enrollment process.
Neighborhood amenities
Super Stop
3.17 miles away
29626 State Highway 181
Sam's Club
3.39 miles away
29683 Frederick Blvd
Fastime
4.00 miles away
2305 US Highway 98
ALDI
4.23 miles away
27060 US Highway 98
Publix
4.27 miles away
10179 Eastern Shore Dr
Daphne Chiropractic & Natural Health Improvement Center LL
2.82 miles away
9113 Merritt Ln
Sam's Club Bakery
3.39 miles away
29683 Frederick Blvd
GNC
3.63 miles away
10200 Eastern Shore Blvd
Couture
4.11 miles away
1905 Main St
Walmart Bakery
4.28 miles away
27520 US Highway 98
Hunt Brothers Pizza
0.79 mile away
10930 County Road 64
Krispy Krunchy Chicken
0.79 mile away
10930 County Road 64
The Shops at Four Corners
1.19 miles away
10025 County Road 64
Kravers Seafood
1.27 miles away
25965 State Highway 181
Subway
2.72 miles away
9091 Lawson Rd
Dunkin'
3.26 miles away
29728 Urgent Care Dr
Tropical Smoothie Cafe
3.29 miles away
29740 Urgent Care Dr
Starbucks
3.72 miles away
1698 US Highway 98
Fresh Healthy Cafe-Spanish Fort
3.73 miles away
10200A Eastern Shore Blvd
Doughnuts Glazed
3.82 miles away
2200 US Highway 98
Game Day Sports LLC
1.30 miles away
25945 State Highway 181
Pink Post Boutique
1.30 miles away
25945 State Highway 181
Gulf Coast Sales & Marketing
2.31 miles away
139 Wicker Way
Sam's Club
3.39 miles away
29683 Frederick Blvd
Old Navy
3.63 miles away
10200 Eastern Shore Blvd
Island Wing Company
3.29 miles away
29740 Urgent Care Dr
Mellow Mushroom
3.39 miles away
29698 Frederick Blvd
Southwood Kitchen
4.01 miles away
1203 US Highway 98
Dragonfly Tavern
4.09 miles away
1800 Main St
Pop & Pour
4.12 miles away
1809 Main St
Please note this information may vary. If you come across anything inaccurate, please contact us.
Builder details
D.R. Horton
In 1978, D.R. Horton broke ground on our first home in Fort Worth, Texas. Since that day, the company has defined its success not by bricks and mortar, but by the satisfaction of the families that make our houses their homes. Our foundation is a single, guiding principle: a value-first dedication to the individual needs of each and every one of our nation’s homebuyers.
From first-time homebuyers to empty nesters, our family of brands provides a home for every stage in life. Our highly-trained, market experts are where you want to live, from New Jersey to Hawaii, providing unique, personalized services tailored to your individual needs. But the real value comes from the quality construction we put into every home, and the peace of mind that comes with a premium-backed warranty from America’s Number One Homebuilder.
We’ve come a long way, and while more people choose our family of brands over any other builder in the country, we never forget the most important thing of all – the families that choose us for their place to call home.
So continue to live out those dreams, America, and know we’ll be here for you every step of the way.
More new homes in Daphne, Alabama
11390 CLOISTER DRIVE (JULIA) by D.R. Horton
saved to favorites!
To see all the homes you’ve saved, visit the My Favorites section of your account.
Discover More Great Communities
Select additional listings for more information
Way to Go!
An agent will be in contact soon!
