KELLY Plan
Ready to build
1009 Hayward Loop, Foley AL 36535
Home by D.R. Horton
at Rosewood
Last updated 1 day ago
The Price Range displayed reflects the base price of the homes built in this community.
You get to select from the many different types of homes built by this Builder and personalize your New Home with options and upgrades.
3 BR
2 BA
2 GR
1,510 SQ FT
Claim this listing to update information, get access to exclusive tools and more!

Floorplan 0 1/1
Overview
1 Story
Single Family
KELLY Plan Info
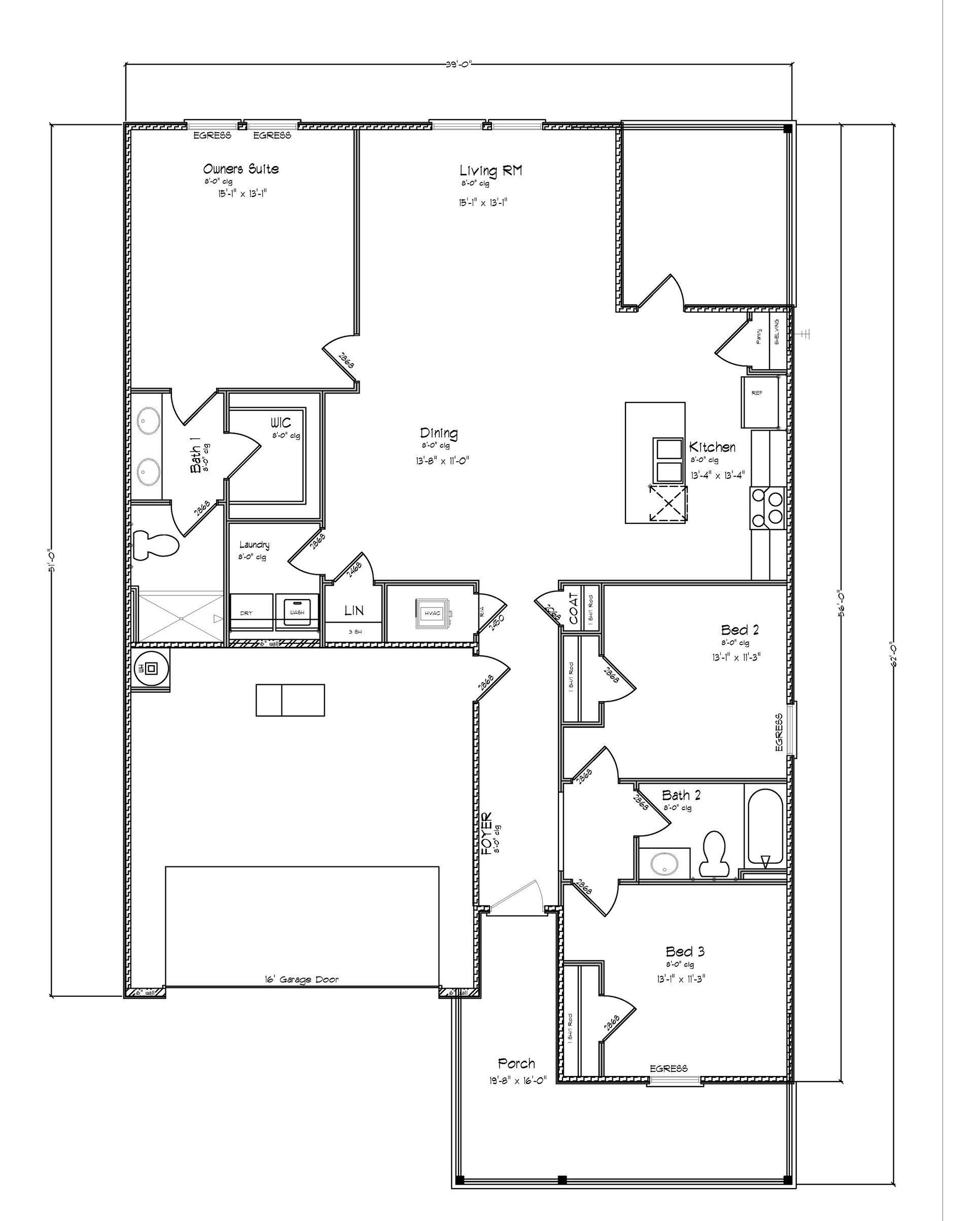
Welcome to the Kelly floor plan at Rosewood in Foley, Alabama-where modern design meets ultimate comfort. With a selection of stunning exterior options, you can choose the perfect look to make a lasting first impression. This thoughtfully crafted one-story home offers a seamless layout with a perfect balance of privacy and openness, featuring two front bedrooms and a secluded Owner's Suite tucked away in the back corner for a serene retreat. The Kelly plan welcomes you with a charming front porch and a convenient 2-car garage. Inside, you'll enjoy 1,510 square feet of well-designed living space, with three bedrooms and two bathrooms. The foyer leads you past two cozy bedrooms, which are connected by a convenient Jack-and-Jill bathroom. Beyond, you'll discover an open-concept living area, with a spacious dining area on one side and a well-appointed kitchen behind the second bedroom. The living room effortlessly flows into the private Owner's Suite, providing a peaceful escape. This single-story gem delivers ultimate convenience, with a primary bedroom that features an en-suite bath and a walk-in closet to make your daily routine a breeze. The double vanity and separate toilet room in the Owner's Suite provide extra comfort and privacy. The adjacent laundry room, located just past the foyer, offers both convenience and ample storage space with a linen closet nearby. A coat closet is thoughtfully positioned across the foyer near the bedroom wing. As part of our commitment to
Floor plan center
View floor plan details for this property.
- Floor Plans
- Exterior Images
- Interior Images
- Other Media
Neighborhood
Community location & sales center
1009 Hayward Loop
Foley, AL 36535
1009 Hayward Loop
Foley, AL 36535
888-790-3488
Schools near Rosewood
- Baldwin County Public Schools
- Florence B. Mathis Elementary School
- Foley Middle School
- Foley High School
Actual schools may vary. Contact the builder for more information.
Amenities
Home details
Ready to build
Build the home of your dreams with the KELLY plan by selecting your favorite options. For the best selection, pick your lot in Rosewood today!
Nearby schools
Baldwin County Public Schools
Florence B. Mathis Elementary School
Elementary-Middle school. Grades PK to 6
Public school
Class ratio: 1: 15
Enrollment: 915
251-943-1244
600 Ninth Ave, Foley, AL, 36535
Foley Middle School
Middle school. Grades 7 to 8
Public school
Class ratio: 1: 16
Enrollment: 783
251-943-1255
200 N Oak St, Foley, AL, 36535
Foley High School
High school. Grades 9 to 12
Public school
Class ratio: 1: 18
Enrollment: 1578
251-943-2221
1 Pride Pl, Foley, AL, 36535
Actual schools may vary. We recommend verifying with the local school district, the school assignment and enrollment process.
Neighborhood amenities
Publix
1.62 miles away
2614 S McKenzie St
Walmart Supercenter
1.94 miles away
2200 S McKenzie St
La Michoacana
2.20 miles away
1508 S McKenzie St
Piggly Wiggly
2.37 miles away
1200 S McKenzie St
Winn-Dixie
2.49 miles away
1235 S McKenzie St
Agape Juices
1.75 miles away
3782 S McKenzie St
Hot Pies Inc
1.91 miles away
2303 S McKenzie St
Fudgery Inc
1.93 miles away
2601 S McKenzie St
Vitamin World
1.93 miles away
2601 S McKenzie St
Walmart Bakery
1.94 miles away
2200 S McKenzie St
Krispy Krunchy Chicken
0.88 mile away
9027 County Road 65
Cracker Barrel Old Country Store
1.58 miles away
3150 S McKenzie St
O'Charley's Restaurant + Bar
1.60 miles away
3060 S McKenzie St
Whataburger
1.67 miles away
3141 S McKenzie St
Captain D's
1.67 miles away
3209 S McKenzie St
Krispy Kreme Doughnuts
1.71 miles away
3031 S McKenzie St
Starbucks
1.93 miles away
2601 S McKenzie St
Linkin Good Donuts
2.44 miles away
201 E Michigan Ave
Drowsy Poet at the Foley Station
2.99 miles away
218 S McKenzie St
7 Brew Coffee
3.12 miles away
3231 S McKenzie St
Shoe Station
1.71 miles away
3177 S McKenzie St
Ross Dress For Less
1.71 miles away
2450 S McKenzie St
Academy Sports + Outdoors
1.74 miles away
2410 S McKenzie St
adidas Outlet Store
1.93 miles away
2601 S McKenzie St
Aerie Store
1.93 miles away
2601 S McKenzie St
Tavern of Bon Secour
0.85 mile away
18424 County Road 12 S
The Office Lounge
1.51 miles away
122 County Road 20
Buffalo Wild Wings
1.74 miles away
2600 S McKenzie St
Applebee's Grill + Bar
1.88 miles away
2409 S McKenzie St
Mellow Mushroom
1.91 miles away
2303 S McKenzie St
Please note this information may vary. If you come across anything inaccurate, please contact us.
Builder details
D.R. Horton
In 1978, D.R. Horton broke ground on our first home in Fort Worth, Texas. Since that day, the company has defined its success not by bricks and mortar, but by the satisfaction of the families that make our houses their homes. Our foundation is a single, guiding principle: a value-first dedication to the individual needs of each and every one of our nation’s homebuyers.
From first-time homebuyers to empty nesters, our family of brands provides a home for every stage in life. Our highly-trained, market experts are where you want to live, from New Jersey to Hawaii, providing unique, personalized services tailored to your individual needs. But the real value comes from the quality construction we put into every home, and the peace of mind that comes with a premium-backed warranty from America’s Number One Homebuilder.
We’ve come a long way, and while more people choose our family of brands over any other builder in the country, we never forget the most important thing of all – the families that choose us for their place to call home.
So continue to live out those dreams, America, and know we’ll be here for you every step of the way.
More new homes in Foley, Alabama
KELLY Plan by D.R. Horton
saved to favorites!
To see all the homes you’ve saved, visit the My Favorites section of your account.
Discover More Great Communities
Select additional listings for more information
Way to Go!
An agent will be in contact soon!
