KELLY Plan
Ready to build
31518 Lyon Road, Spanish Fort AL 36527
Home by D.R. Horton
at Stonebridge
Last updated 1 day ago
The Price Range displayed reflects the base price of the homes built in this community.
You get to select from the many different types of homes built by this Builder and personalize your New Home with options and upgrades.
3 BR
2 BA
2 GR
1,510 SQ FT
Claim this listing to update information, get access to exclusive tools and more!

Floorplan 0 1/1
Overview
1 Story
Single Family
KELLY Plan Info
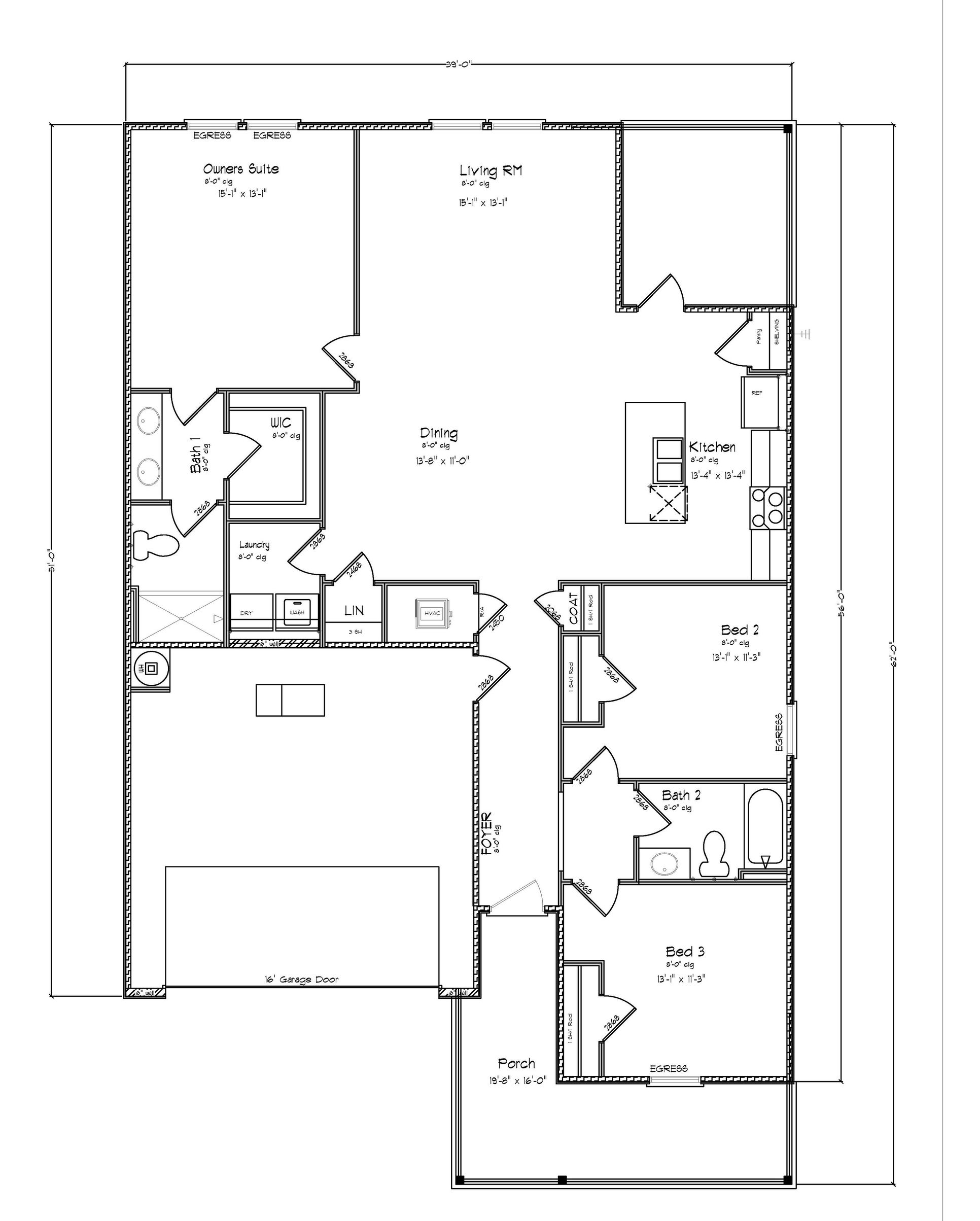
Step into the Kelly floorplan at Stonebridge in Spanish Fort, Alabama. With two modern exteriors to choose from, the Kelly is sure to turn heads. This one-story home has a great flow with two bedrooms at the front of the home and a private owner's suite in the back corner. The Kelly has a welcoming front porch beside the front-entry, 2-car garage. Inside this 3-bedroom, 2-bathroom home, you'll find 1,510 square feet of comfortable living. As you enter the home, the foyer leads you past two bedrooms which are conveniently connected with a jack-and-jill bathroom. You will then enter the open-concept space with a large dining area on one side and kitchen on the other, located behind the second bedroom. This space is also connected with the living room. The living room will lead you to the private Owner's Suite. This home offers great convenience and livability all on one-story. The primary bedroom has its own attached bathroom that features a walk-in closet and all the space you need to get ready in the morning. Sharing a sink isn't a worry with the double vanity, and you also get additional privacy with a separate door for the toilet. The laundry room is located just past the foyer before the dining area and is next to a linen closet. There is also a coat closet across the foyer where the bedrooms end. Contact us today to take a virtual or in-person tour and plan your move to Stonebridge in Spanish Fort!
Floor plan center
View floor plan details for this property.
- Floor Plans
- Exterior Images
- Interior Images
- Other Media
Neighborhood
Community location & sales center
31518 Lyon Road
Spanish Fort, AL 36527
31518 Lyon Road
Spanish Fort, AL 36527
888-790-3488
Schools near Stonebridge
- Baldwin County Public Schools
- Stonebridge Elementary School
- Spanish Fort Middle School
- Spanish Fort High School
Actual schools may vary. Contact the builder for more information.
Amenities
Home details
Ready to build
Build the home of your dreams with the KELLY plan by selecting your favorite options. For the best selection, pick your lot in Stonebridge today!
Nearby schools
Baldwin County Public Schools
Stonebridge Elementary School
Elementary-Middle school. Grades KG to 6
Public school
251-625-3280
12750 Bedrock Blvd, Loxley, AL, 36551
Spanish Fort Middle School
Middle school. Grades 7 to 8
Public school
Class ratio: 1: 16
Enrollment: 622
251-625-3271
33899 Jimmy Faulkner Dr, Spanish Fort, AL, 36527
Spanish Fort High School
High school. Grades 9 to 12
Public school
Class ratio: 1: 17
Enrollment: 1188
251-625-3259
1 Plaza De Toros Dr, Spanish Fort, AL, 36527
Actual schools may vary. We recommend verifying with the local school district, the school assignment and enrollment process.
Neighborhood amenities
Publix
3.17 miles away
10179 Eastern Shore Dr
Super Stop
3.69 miles away
29626 State Highway 181
Sam's Club
3.81 miles away
29683 Frederick Blvd
Country Wagon Farm Market
4.09 miles away
9347 Spanish Fort Blvd
Piggly Wiggly
4.42 miles away
1078 S Hickory St
Flowers Baking Co
2.22 miles away
30420 County Road 49
GNC
3.17 miles away
10200 Eastern Shore Blvd
Sweet & Simple
3.24 miles away
10198 US Highway 31
Sam's Club Bakery
3.81 miles away
29683 Frederick Blvd
Speedy Cafe
2.46 miles away
29636 State Highway 59
Arby's
2.54 miles away
126 E Flying K Rd
David's Catfish House
2.62 miles away
10810 US Highway 31
Burger King
2.72 miles away
13051 N Hickory St
Hardee's
2.76 miles away
13151 N Hickory St
Fresh Healthy Cafe-Spanish Fort
3.27 miles away
10200A Eastern Shore Blvd
Starbucks
3.42 miles away
30350 State Highway 181
Tropical Smoothie Cafe
3.55 miles away
29740 Urgent Care Dr
Dunkin'
3.56 miles away
29728 Urgent Care Dr
Beakers Coffee
4.71 miles away
29000 Bass Pro Dr
Sassy Fans
1.13 miles away
12561 Waxwing Ave
Gulf Coast Sales & Marketing
2.60 miles away
139 Wicker Way
Old Navy
3.17 miles away
10200 Eastern Shore Blvd
Ross Dress For Less
3.17 miles away
10200 Eastern Shore Blvd
Belk
3.41 miles away
30500 State Highway 181
Island Wing Company
3.55 miles away
29740 Urgent Care Dr
Mellow Mushroom
3.63 miles away
29698 Frederick Blvd
Beef'O'Brady's
4.97 miles away
8495 Spanish Fort Blvd
LongHorn Steakhouse
6.71 miles away
6870 US Highway 90
MS D's
7.10 miles away
25714 Highway 181
Please note this information may vary. If you come across anything inaccurate, please contact us.
Builder details
D.R. Horton
In 1978, D.R. Horton broke ground on our first home in Fort Worth, Texas. Since that day, the company has defined its success not by bricks and mortar, but by the satisfaction of the families that make our houses their homes. Our foundation is a single, guiding principle: a value-first dedication to the individual needs of each and every one of our nation’s homebuyers.
From first-time homebuyers to empty nesters, our family of brands provides a home for every stage in life. Our highly-trained, market experts are where you want to live, from New Jersey to Hawaii, providing unique, personalized services tailored to your individual needs. But the real value comes from the quality construction we put into every home, and the peace of mind that comes with a premium-backed warranty from America’s Number One Homebuilder.
We’ve come a long way, and while more people choose our family of brands over any other builder in the country, we never forget the most important thing of all – the families that choose us for their place to call home.
So continue to live out those dreams, America, and know we’ll be here for you every step of the way.
More new homes in Spanish Fort, Alabama
KELLY Plan by D.R. Horton
saved to favorites!
To see all the homes you’ve saved, visit the My Favorites section of your account.
Discover More Great Communities
Select additional listings for more information
Way to Go!
An agent will be in contact soon!
