723 Hardman Drive (Lafayette)
Under Construction
Morgantown, WV 26501
Home by D.R. Horton
Last updated 24 hours ago
The Price Range displayed reflects the base price of the homes built in this community.
You get to select from the many different types of homes built by this Builder and personalize your New Home with options and upgrades.
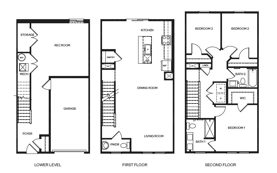
3 BR
2.5 BA
1 GR
1,969 SQ FT
Claim this listing to update information, get access to exclusive tools and more!

Floor Plan 1/2
Overview
1 Car Garage
1 Half Bathroom
1969 Sq Ft
2 Bathrooms
3 Bedrooms
3 Stories
Single Family
723 Hardman Drive (Lafayette) Home Info
Prepare to be captivated! This is your chance to seize one of the last three remaining quick move-in opportunities in a prime location. This stunning 3-bedroom, 2.5-bathroom townhome, complete with a convenient 1-car garage and a versatile finished rec room, offers the perfect blend of modern living and long-term investment potential. Inside discover sophisticated stone-gray cabinetry complemented by sleek gray luxury vinyl plank flooring and quartz countertops, creating a stylish and contemporary ambiance. The finished rec room is an ideal space for entertaining, a home gym, or a dedicated workspace, and provides direct access to the backyard - a tranquil retreat where you can unwind while soaking in breathtaking sunsets and admiring mature trees. This exceptional townhome is designed for convenience and peace of mind, boasting a builder warranty and integrated smart home technology. Beyond your the front door, you'll discover a vibrant community with easy access to shopping, dining, and entertainment options that cater to every taste. Enjoy the bustling energy of Downtown Morgantown or the serene beauty of Westover City Park, both just minutes away.
Floor plan center
View floor plan details for this property.
- Floor Plans
- Exterior Images
- Interior Images
- Other Media
Neighborhood
Community location & sales center
301 Dye Lane
Morgantown, WV 26501
301 Dye Lane
Morgantown, WV 26501
888-790-3488
Schools near Woodside Ridge
- Monongalia County Schools
Actual schools may vary. Contact the builder for more information.
Amenities
Home details
Now building
This home is currently under construction at 723 Hardman Drive and will soon be available for move-in at Woodside Ridge. Contact D.R. Horton today to lock in your options!
Builder details
D.R. Horton
In 1978, D.R. Horton broke ground on our first home in Fort Worth, Texas. Since that day, the company has defined its success not by bricks and mortar, but by the satisfaction of the families that make our houses their homes. Our foundation is a single, guiding principle: a value-first dedication to the individual needs of each and every one of our nation’s homebuyers.
From first-time homebuyers to empty nesters, our family of brands provides a home for every stage in life. Our highly-trained, market experts are where you want to live, from New Jersey to Hawaii, providing unique, personalized services tailored to your individual needs. But the real value comes from the quality construction we put into every home, and the peace of mind that comes with a premium-backed warranty from America’s Number One Homebuilder.
We’ve come a long way, and while more people choose our family of brands over any other builder in the country, we never forget the most important thing of all – the families that choose us for their place to call home.
So continue to live out those dreams, America, and know we’ll be here for you every step of the way.
More new homes in Morgantown, West Virginia
723 Hardman Drive (Lafayette) by D.R. Horton
saved to favorites!
To see all the homes you’ve saved, visit the My Favorites section of your account.
Discover More Great Communities
Select additional listings for more information
Way to Go!
An agent will be in contact soon!
