Lansing Plan
Ready to build
57 Creekview Road, Hendersonville NC 28792
Home by D.R. Horton
Last updated 20 hours ago
The Price Range displayed reflects the base price of the homes built in this community.
You get to select from the many different types of homes built by this Builder and personalize your New Home with options and upgrades.
3 BR
2.5 BA
1 GR
1,699 SQ FT
Claim this listing to update information, get access to exclusive tools and more!

Floorplan 0 1/2
Overview
1 Half Bathroom
2 Stories
Townhouse
Lansing Plan Info
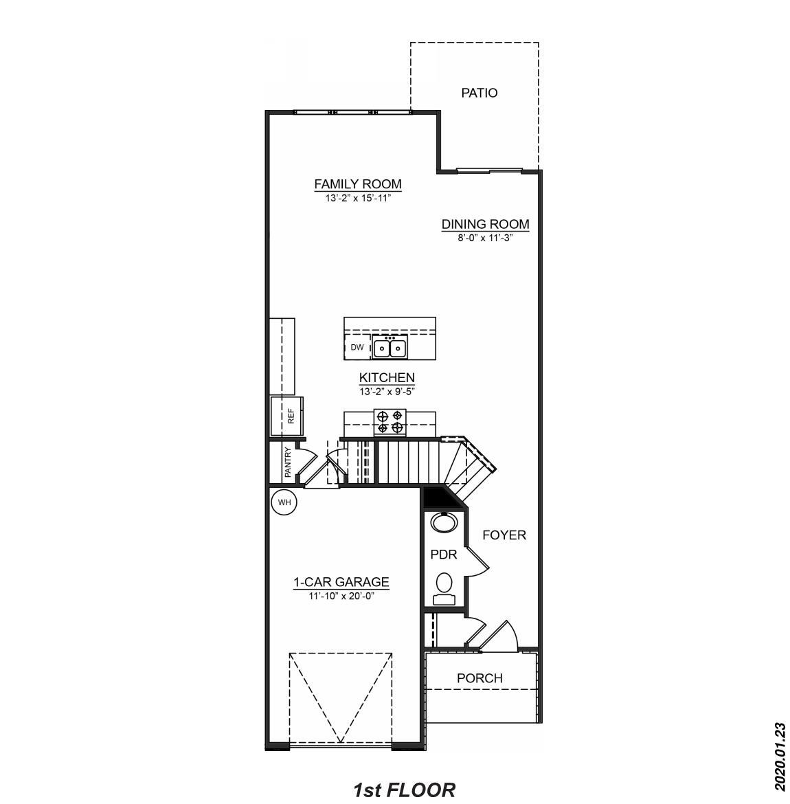
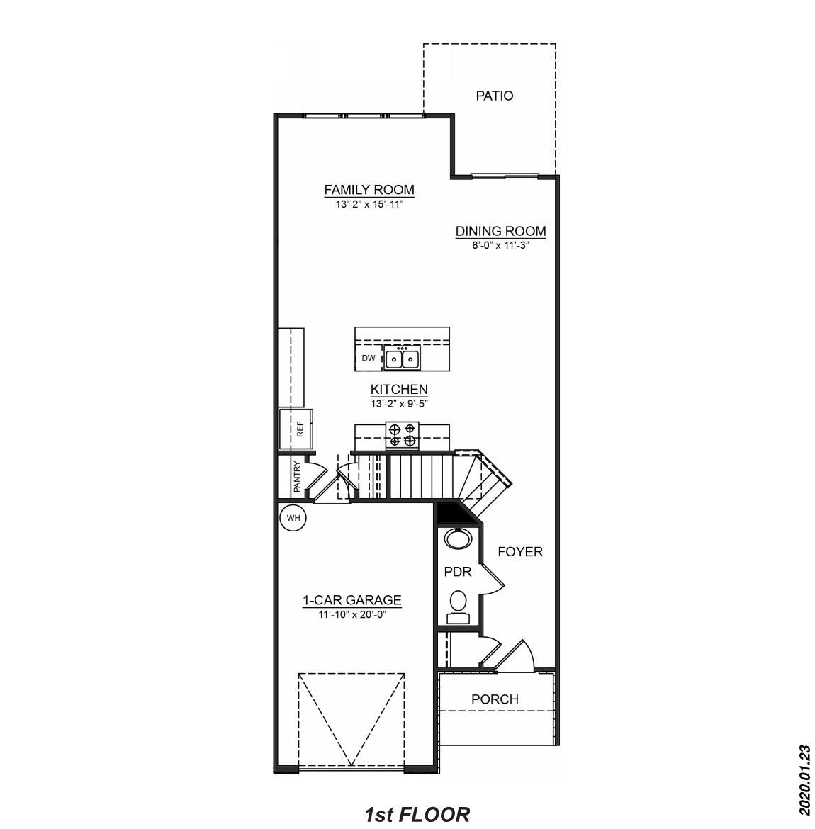
The Lansing is one of our townhome plans featured in The Townes at Stonecrest in Hendersonville, NC. This is a spacious and modern home designed with open concept living in mind. This home offers 3 bedrooms, 2.5 bathrooms, and a 1-car garage. At the center of the home is the kitchen that blends the family room and dining room creating an airy feel. The open kitchen is equipped with stainless steel appliances, granite countertops, pantry and center island with bar seating- perfect for both cooking and entertaining. The primary suite is located on the second floor, complete with en-suite bathroom with dual vanities and a walk-in closet. The additional two bedrooms share access to a secondary bathroom. The laundry room completes the second floor. The open floor plan and thoughtfully designed living spaces, make the Lansing the home for you.
Floor plan center
View floor plan details for this property.
- Floor Plans
- Exterior Images
- Interior Images
- Other Media
Neighborhood
Community location & sales center
57 Creekview Road <br/> Hendersonville, NC 28792
57 Creekview Road <br/> Hendersonville, NC 28792
888-790-3488
Schools near The Townes at Stonecrest
- Henderson County Schools
- Sugarloaf Elementary School
- Hendersonville Middle School
- Hendersonville High School
Actual schools may vary. Contact the builder for more information.
Amenities
Home details
Ready to build
Build the home of your dreams with the Lansing plan by selecting your favorite options. For the best selection, pick your lot in The Townes at Stonecrest today!
Nearby schools
Henderson County Schools
Sugarloaf Elementary School
Elementary school. Grades KG to 5.
Public school
Teacher - student ratio: 1:14
Students enrolled: 416
828-697-4600
2270 Sugarloaf Rd, Hendersonvlle, NC, 28792
Hendersonville Middle School
Middle school. Grades 6 to 8.
Public school
Teacher - student ratio: 1:13
Students enrolled: 510
828-697-4800
825 N Whitted St, Hendersonvlle, NC, 28791
Hendersonville High School
High school. Grades 9 to 12.
Public school
Teacher - student ratio: 1:17
Students enrolled: 784
828-697-4802
1 Bearcat Blvd, Hendersonvlle, NC, 28791
Actual schools may vary. We recommend verifying with the local school district, the school assignment and enrollment process.
Neighborhood amenities
Sam's Club
0.79 mile away
300 Highlands Square Dr
Marygs Burrito
1.00 miles away
2560 Asheville Hwy
Walmart Supercenter
1.06 miles away
250 Highlands Square Dr
Go Grocery Outlet
1.19 miles away
115 Four Seasons Mall
Ingles Market
1.31 miles away
1980 Asheville Hwy
Walmart Bakery
1.06 miles away
250 Highlands Square Dr
GNC
1.29 miles away
1800 Four Seasons Blvd
The Baker's Box
1.60 miles away
1508 Asheville Hwy
Underground Baking
2.10 miles away
352 7th Ave E
McFarlan Bake Shop
2.43 miles away
309 N Main St
Sam's Club Cafe
0.79 mile away
300 Highlands Square Dr
Mountain Man Pizza LLC
0.97 mile away
200 Thompson St
Marygs Burrito
1.00 miles away
2560 Asheville Hwy
Mary's Burritos
1.00 miles away
2560 Asheville Hwy
Subway
1.00 miles away
206 Thompson St
Krispy Kreme Doughnuts
1.11 miles away
1911 Four Seasons Blvd
Starbucks
1.15 miles away
103 Mitchelle Dr
Starbucks
1.31 miles away
1980 Asheville Hwy
The Ugly Mug
1.34 miles away
2024 Asheville Hwy
Dunkin'
1.36 miles away
2547 Chimney Rock Rd
Sam's Club
0.79 mile away
300 Highlands Square Dr
Bealls
0.98 mile away
204B Thompson St
Walmart Supercenter
1.06 miles away
250 Highlands Square Dr
Shoe Show
1.14 miles away
204 Highlands Square Dr
Cato Fashions
1.15 miles away
196 Highlands Square Dr
Tequila Bar & Grill
1.21 miles away
300 Freeman St
Applebee's Grill + Bar
1.23 miles away
1635 Four Seasons Blvd
Outback Steakhouse
1.30 miles away
250 Mitchelle Dr
Old Orchard Tavern at Cascades
1.35 miles away
201 Sugarloaf Rd
The Brandy Bar
2.03 miles away
504 7th Ave E
Please note this information may vary. If you come across anything inaccurate, please contact us.
Builder details
D.R. Horton
In 1978, D.R. Horton broke ground on our first home in Fort Worth, Texas. Since that day, the company has defined its success not by bricks and mortar, but by the satisfaction of the families that make our houses their homes. Our foundation is a single, guiding principle: a value-first dedication to the individual needs of each and every one of our nation’s homebuyers.
From first-time homebuyers to empty nesters, our family of brands provides a home for every stage in life. Our highly-trained, market experts are where you want to live, from New Jersey to Hawaii, providing unique, personalized services tailored to your individual needs. But the real value comes from the quality construction we put into every home, and the peace of mind that comes with a premium-backed warranty from America’s Number One Homebuilder.
We’ve come a long way, and while more people choose our family of brands over any other builder in the country, we never forget the most important thing of all – the families that choose us for their place to call home.
So continue to live out those dreams, America, and know we’ll be here for you every step of the way.
More new homes in Hendersonville, North Carolina
Lansing Plan by D.R. Horton
saved to favorites!
To see all the homes you’ve saved, visit the My Favorites section of your account.
Discover More Great Communities
Select additional listings for more information
Way to Go!
An agent will be in contact soon!
