LARIMER Plan
Ready to build
22205 E 6th Ave, Aurora CO 80018
Home by D.R. Horton
Last updated 1 day ago
The Price Range displayed reflects the base price of the homes built in this community.
You get to select from the many different types of homes built by this Builder and personalize your New Home with options and upgrades.
3 BR
2.5 BA
2 GR
1,577 SQ FT
Claim this listing to update information, get access to exclusive tools and more!

Floorplan 0 1/2
Overview
1 Half Bathroom
1577 Sq Ft
2 Bathrooms
2 Car Garage
2 Stories
3 Bedrooms
Single Family
LARIMER Plan Info
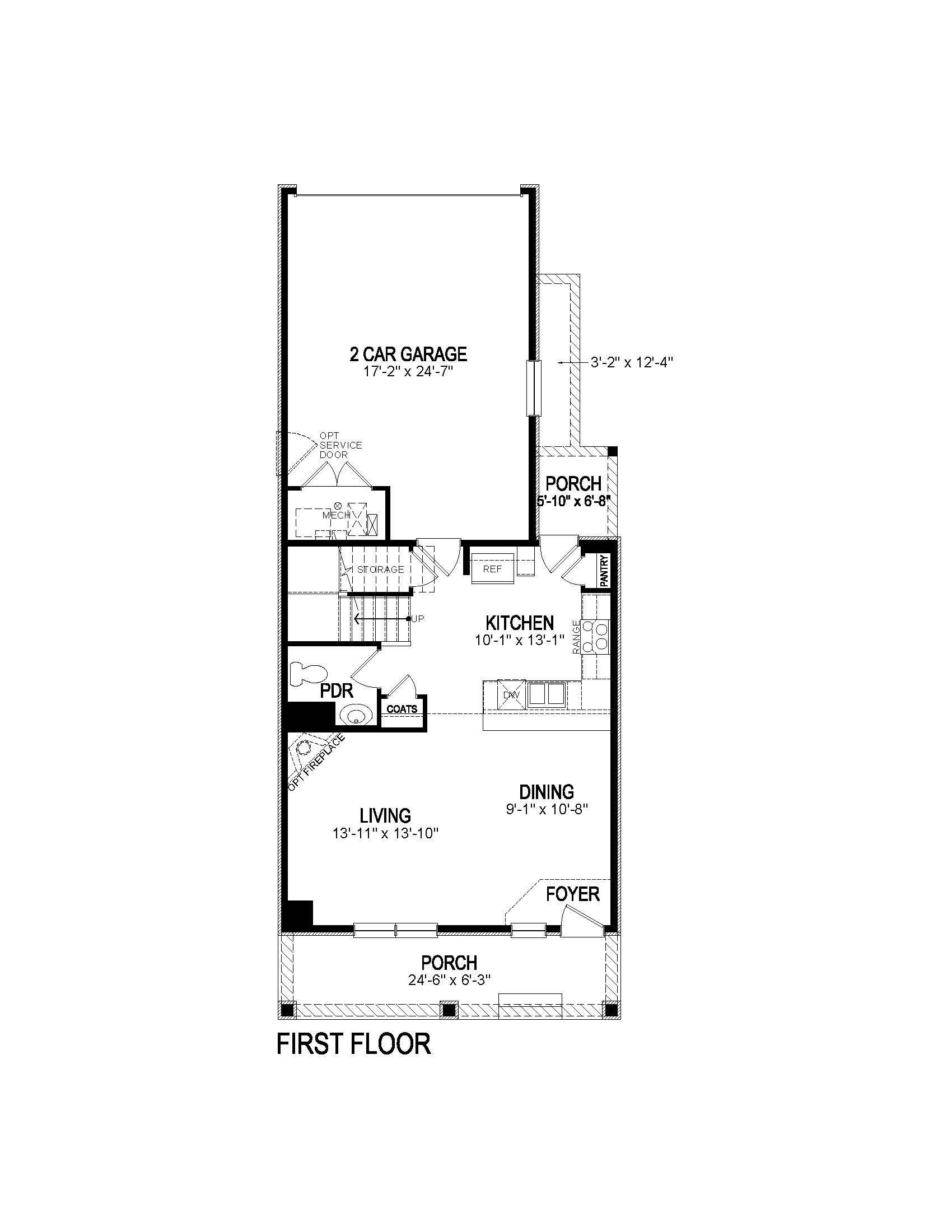
Welcome to the Larimer floor plan in Horizon Uptown in Aurora, Colorado. This thoughtfully designed two-story home offers the perfect combination of modern style, smart functionality, and comfortable living. With three spacious bedrooms, two and a half bathrooms, and a two-car garage, the Larimer is ideal for families, professionals, and anyone looking for a well-designed home in a desirable location. The first floor features an open-concept layout that seamlessly connects the living, dining, and kitchen areas, creating a bright and inviting space perfect for entertaining or everyday life. The modern kitchen includes a spacious island, ample cabinetry, and a pantry for extra storage. A convenient powder room and additional closet space add to the home's practicality. On the second floor, the primary suite serves as a private retreat with a generous walk-in closet and an ensuite bath with dual sinks and a walk-in shower. Two additional bedrooms provide ample space for family members or guests, while a full bathroom ensures comfort and convenience. A versatile tech niche is perfect for working from home, studying, or additional storage. The centrally located laundry room makes household tasks effortless, adding to the home's thoughtful design. Home Is Connected®: All D.R. Horton homes come with an industry-leading suite of smart home products that keep you connected with the people and places you value most. Additionally, D.R. Horton Colorado includes a tankless water heater
Floor plan center
View floor plan details for this property.
- Floor Plans
- Exterior Images
- Interior Images
- Other Media
Neighborhood
Community location & sales center
22205 E 6th Ave
Aurora, CO 80018
22205 E 6th Ave
Aurora, CO 80018
888-355-8096
Schools near Horizon Uptown
- Aurora Public Schools
- Vista Peak P-8 Exploratory
- Vista Peak 9-12 Preparatory
Actual schools may vary. Contact the builder for more information.
Amenities
Home details
Ready to build
Build the home of your dreams with the LARIMER plan by selecting your favorite options. For the best selection, pick your lot in Horizon Uptown today!
Nearby schools
Aurora Public Schools
Elementary-Middle school. Grades PK to 8.
- Public school
- Teacher - student ratio: 1:20
- Students enrolled: 1037
24551 E 1st Pl, Aurora, CO, 80018
303-364-3757
High school. Grades 9 to 12.
- Public school
- Teacher - student ratio: 1:21
- Students enrolled: 1795
24500 E 6th Ave, Aurora, CO, 80018
303-340-0121
Actual schools may vary. We recommend verifying with the local school district, the school assignment and enrollment process.
Neighborhood amenities
Golden State Foods
2.96 miles away
19754 E 35th Dr
Pulgarcito Market
3.49 miles away
1821 S Dunkirk St
Walmart Supercenter
3.49 miles away
3301 Tower Rd
Lotus Asian Market
3.69 miles away
844 S Buckley Rd
Safeway
3.86 miles away
1200 S Buckley Rd
Babu's Indian-Inspired Treats
3.38 miles away
19639 E Bails Pl
Walmart Bakery
3.49 miles away
3301 Tower Rd
GNC
3.60 miles away
3445 N Salida St
Einstein Bros Bagels
3.90 miles away
8500 Pena Boulevard Terminal C
Yummy Cakes
4.51 miles away
17377 E Adriatic Pl
Funiture Row LLC
1.52 miles away
24000 E 19th Ave
Hunt Brothers Pizza
2.15 miles away
19275 E Colfax Ave
Hunt Brothers Pizza
2.34 miles away
1305 S Zante St
Krispy Krunchy Chicken
2.34 miles away
1305 S Zante St
The Frontier Club
2.38 miles away
18881 E Colfax Ave
Starbucks
3.63 miles away
3455 N Salida St
Caribou Coffee
3.90 miles away
8500 Pena Blvd
Dazbog Coffee Company
3.90 miles away
9100 Pe A BLVD Terminal C
Dunkin'
3.90 miles away
Denver Intl Airport
Jamba
3.90 miles away
9100 Pena Blvd
Family Dollar
3.17 miles away
1175 S Tower Rd
Claire's Inside Walmart
3.49 miles away
3301 Tower Rd
Walmart Supercenter
3.49 miles away
3301 Tower Rd
Ross Dress For Less
3.76 miles away
3511 N Salida Ct
Filetta Couture Boutique
4.12 miles away
21247 E 49th Pl
The Frontier Club
2.38 miles away
18881 E Colfax Ave
Woody's Wings, INC
3.60 miles away
700 S Buckley Rd
Chili's
3.61 miles away
3451 Tower Rd
Qdoba Mexican Eats
3.84 miles away
1180 S Buckley Rd
Hubbly Bubbly Brewiry
4.01 miles away
16850 E Mississippi Ave
Please note this information may vary. If you come across anything inaccurate, please contact us.
Builder details
D.R. Horton
In 1978, D.R. Horton broke ground on our first home in Fort Worth, Texas. Since that day, the company has defined its success not by bricks and mortar, but by the satisfaction of the families that make our houses their homes. Our foundation is a single, guiding principle: a value-first dedication to the individual needs of each and every one of our nation’s homebuyers.
From first-time homebuyers to empty nesters, our family of brands provides a home for every stage in life. Our highly-trained, market experts are where you want to live, from New Jersey to Hawaii, providing unique, personalized services tailored to your individual needs. But the real value comes from the quality construction we put into every home, and the peace of mind that comes with a premium-backed warranty from America’s Number One Homebuilder.
We’ve come a long way, and while more people choose our family of brands over any other builder in the country, we never forget the most important thing of all – the families that choose us for their place to call home.
So continue to live out those dreams, America, and know we’ll be here for you every step of the way.
More new homes in Aurora, Colorado
LARIMER Plan by D.R. Horton
saved to favorites!
To see all the homes you’ve saved, visit the My Favorites section of your account.
Discover More Great Communities
Select additional listings for more information
Way to Go!
An agent will be in contact soon!
