LARK Plan
Ready to build
6613 Nystrom Terrace, Colorado Springs CO 80925
Home by D.R. Horton
Last updated 3 days ago
The Price Range displayed reflects the base price of the homes built in this community.
You get to select from the many different types of homes built by this Builder and personalize your New Home with options and upgrades.
4 BR
2.5 BA
2 GR
1,713 SQ FT
Claim this listing to update information, get access to exclusive tools and more!

Elevation 3 1/23
Overview
1 Half Bathroom
2 Stories
Single Family
LARK Plan Info
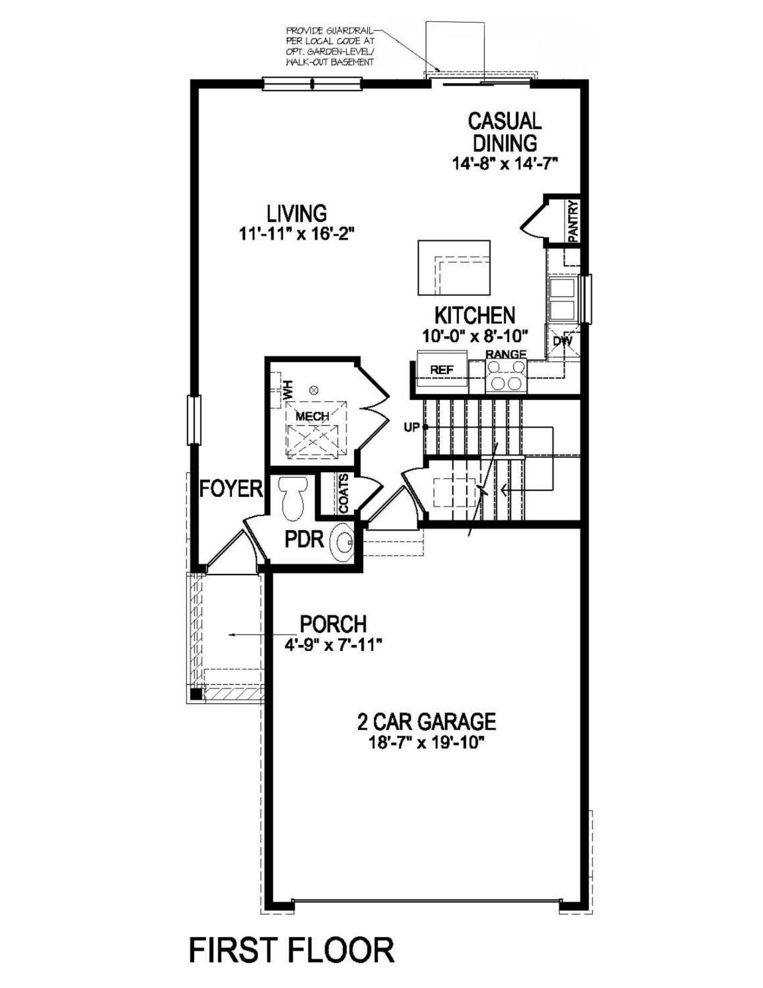
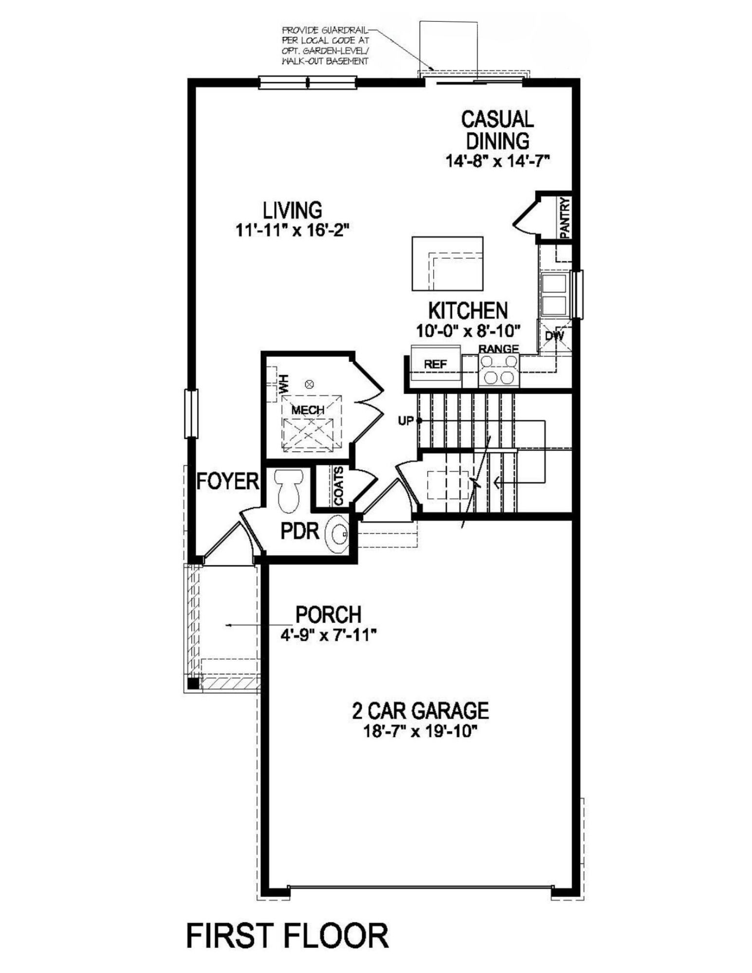
The Lark is a smartly designed two-story new home floor plan in The Ridge at Lorson community in Colorado Springs. This home features 4 bedrooms, 2.5 bathrooms, and 2-car garage. The house's main entry opens to the open-concept family room, kitchen, and dining area. Here you can relax in the family room, enjoy extra seating at the large kitchen island, or breeze through the dining room to the backyard. Off the kitchen, a walk-in pantry provides added storage. Upstairs, the primary bedroom offers a private retreat with a spacious walk-in closet and ensuite bathroom. Three additional bedrooms, each with their own walk-in closets, provide plenty of room for family members or guests. The second floor also includes a convenient laundry room and an additional full bathroom. Contact us today to make the Lark your next home.
Floor plan center
View floor plan details for this property.
- Floor Plans
- Exterior Images
- Interior Images
- Other Media
Neighborhood
Community location & sales center
6613 Nystrom Terrace
Colorado Springs, CO 80925
6613 Nystrom Terrace
Colorado Springs, CO 80925
888-355-8096
Schools near The Ridge at Lorson Ranch
- Widefield School District 3
- Martin Luther King Jr Elementary School
- Watson Junior High School
- Mesa Ridge High School
- Widefield High School
Actual schools may vary. Contact the builder for more information.
Amenities
Home details
Ready to build
Build the home of your dreams with the LARK plan by selecting your favorite options. For the best selection, pick your lot in The Ridge at Lorson Ranch today!
Nearby schools
Widefield School District 3
Martin Luther King Jr Elementary School
Elementary school. Grades KG to 5
Public school
Class ratio: 1: 17
Enrollment: 519
719-391-3455
6910 Defoe Ave, Colorado Spgs, CO, 80911
Watson Junior High School
Middle school. Grades 6 to 8
Public school
Class ratio: 1: 14
Enrollment: 544
719-391-3255
136 Fontaine Blvd, Colorado Spgs, CO, 80911
Mesa Ridge High School
High school. Grades 9 to 12
Public school
Class ratio: 1: 19
Enrollment: 1269
719-391-3600
6070 Mesa Ridge Pkwy, Colorado Spgs, CO, 80911
Widefield High School
High school. Grades 9 to 12
Public school
Class ratio: 1: 18
Enrollment: 1241
719-391-3200
615 Widefield Dr, Colorado Spgs, CO, 80911
Actual schools may vary. We recommend verifying with the local school district, the school assignment and enrollment process.
Builder details
D.R. Horton
In 1978, D.R. Horton broke ground on our first home in Fort Worth, Texas. Since that day, the company has defined its success not by bricks and mortar, but by the satisfaction of the families that make our houses their homes. Our foundation is a single, guiding principle: a value-first dedication to the individual needs of each and every one of our nation’s homebuyers.
From first-time homebuyers to empty nesters, our family of brands provides a home for every stage in life. Our highly-trained, market experts are where you want to live, from New Jersey to Hawaii, providing unique, personalized services tailored to your individual needs. But the real value comes from the quality construction we put into every home, and the peace of mind that comes with a premium-backed warranty from America’s Number One Homebuilder.
We’ve come a long way, and while more people choose our family of brands over any other builder in the country, we never forget the most important thing of all – the families that choose us for their place to call home.
So continue to live out those dreams, America, and know we’ll be here for you every step of the way.
More new homes in Colorado Springs, Colorado
LARK Plan by D.R. Horton
saved to favorites!
To see all the homes you’ve saved, visit the My Favorites section of your account.
Discover More Great Communities
Select additional listings for more information
Way to Go!
An agent will be in contact soon!
