Lismore Plan
Ready to build
145 Eunola Lane, Freeport FL 32439
Home by D.R. Horton
Last updated 1 day ago
The Price Range displayed reflects the base price of the homes built in this community.
You get to select from the many different types of homes built by this Builder and personalize your New Home with options and upgrades.
3 BR
2 BA
2 GR
1,580 SQ FT
Claim this listing to update information, get access to exclusive tools and more!

Floorplan 0 1/2
Overview
1 Story
Single Family
Lismore Plan Info
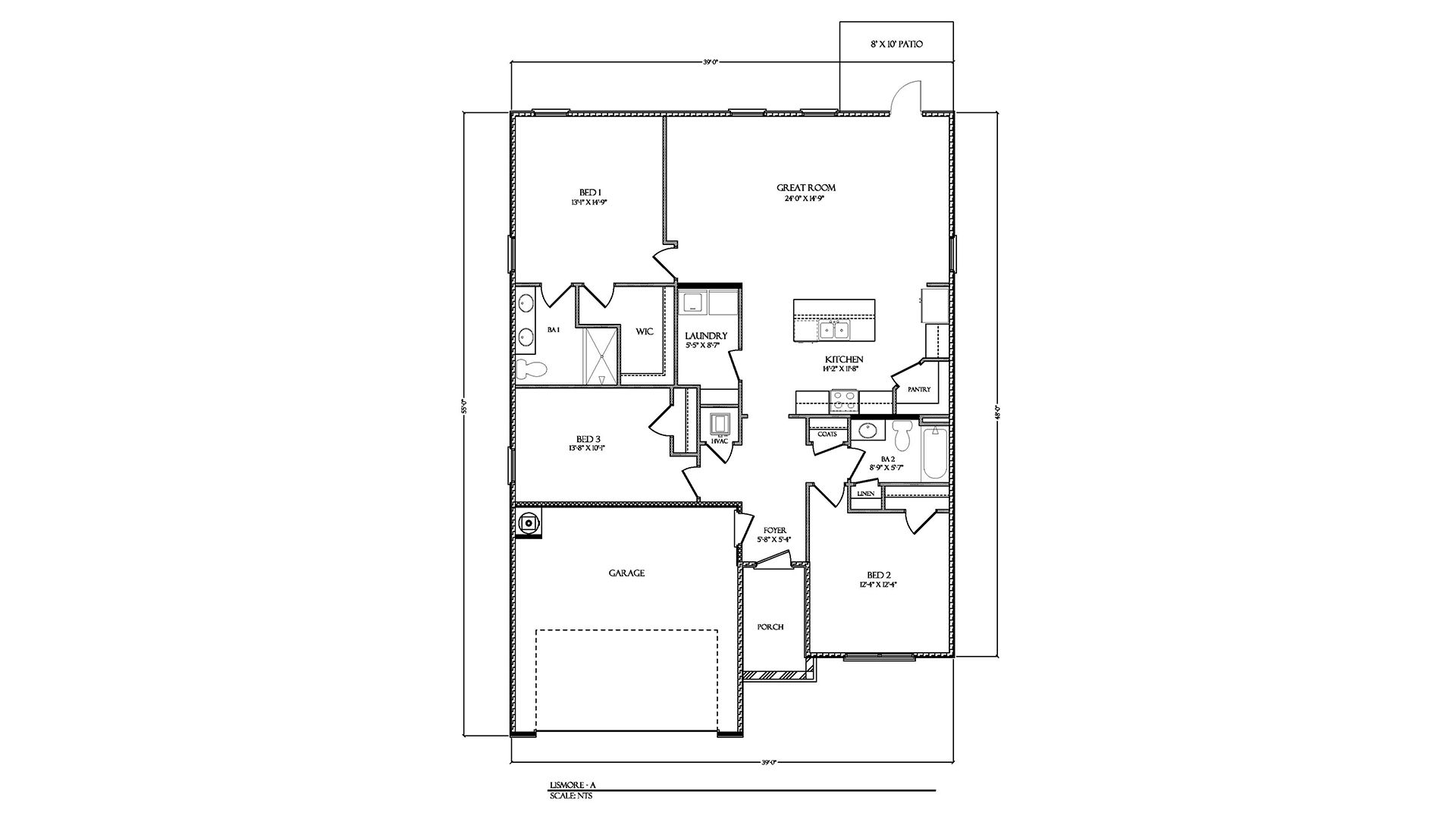
Welcome to the Lismore, a new home floor plan in Phase III of Ashton Park in Freeport, Florida. As you enter this home you are immediately struck by its clean lines and thoughtful design. The foyer opens to a bright and airy space, with two secondary bedrooms and a full bathroom tucked off to one side. These rooms are perfectly sized for guests, children, or even a home office, with each offering plenty of closet space and easy access to the shared bath. This home features modern finishes and engineered Vinyl plank flooring throughout the home except for the bedrooms where you'll find upgraded carpet. Continuing into the heart of the home, you will find an open concept living area. Here, the kitchen truly shines with its granite countertops, stainless steel appliances, and an island with a breakfast bar that creates the perfect spot for casual dining or entertaining. The adjoining dining area is well-positioned for family meals, while the living room offers a comfortable space to relax, complete with views of the backyard. The laundry room is off the kitchen and is complete with extra storage shelves. Privately located at the back of the home, the primary bedroom offers a peaceful retreat. The large bedroom is complemented by an ensuite bathroom, featuring a dual vanity, a large shower, and an expansive closet designed for all your wardrobe needs. The patio at the back of the home provides the perfect place to enjoy outdoor living, whether sipping your morning coff
Floor plan center
View floor plan details for this property.
- Floor Plans
- Exterior Images
- Interior Images
- Other Media
Neighborhood
Community location & sales center
145 Eunola Lane
Freeport, FL 32439
145 Eunola Lane
Freeport, FL 32439
888-790-3488
Schools near Ashton Park Phase III
- Walton
- Freeport Elementary School
- Freeport Middle School
- Freeport High School
Actual schools may vary. Contact the builder for more information.
Amenities
Home details
Ready to build
Build the home of your dreams with the Lismore plan by selecting your favorite options. For the best selection, pick your lot in Ashton Park Phase III today!
Nearby schools
Walton
Freeport Elementary School
Elementary school. Grades PK to 4
Public school
Class ratio: 1: 17
Enrollment: 1123
850-892-1211
15381 331 Business, Freeport, FL, 32439
Freeport Middle School
Elementary-Middle school. Grades 5 to 8
Public school
Class ratio: 1: 19
Enrollment: 700
850-892-1221
360 Kylea Laird Dr, Freeport, FL, 32439
Freeport High School
High school. Grades 9 to 12
Public school
Class ratio: 1: 17
Enrollment: 557
850-892-1201
12615 331 Business, Freeport, FL, 32439
Actual schools may vary. We recommend verifying with the local school district, the school assignment and enrollment process.
Neighborhood amenities
Bargains & More
1.70 miles away
15890 331 Business
Publix
2.57 miles away
16400 US Highway 331 S
GCJ Enterprises Inc
5.95 miles away
229 Oakcrest Dr
Pizza Hut
1.92 miles away
113 Florida 20
Subway
1.92 miles away
101 Marquis Way
Sweet Southern Comfort
2.00 miles away
172 State Highway 20 E
Please note this information may vary. If you come across anything inaccurate, please contact us.
Builder details
D.R. Horton
In 1978, D.R. Horton broke ground on our first home in Fort Worth, Texas. Since that day, the company has defined its success not by bricks and mortar, but by the satisfaction of the families that make our houses their homes. Our foundation is a single, guiding principle: a value-first dedication to the individual needs of each and every one of our nation’s homebuyers.
From first-time homebuyers to empty nesters, our family of brands provides a home for every stage in life. Our highly-trained, market experts are where you want to live, from New Jersey to Hawaii, providing unique, personalized services tailored to your individual needs. But the real value comes from the quality construction we put into every home, and the peace of mind that comes with a premium-backed warranty from America’s Number One Homebuilder.
We’ve come a long way, and while more people choose our family of brands over any other builder in the country, we never forget the most important thing of all – the families that choose us for their place to call home.
So continue to live out those dreams, America, and know we’ll be here for you every step of the way.
More new homes in Freeport, Florida
Lismore Plan by D.R. Horton
saved to favorites!
To see all the homes you’ve saved, visit the My Favorites section of your account.
Discover More Great Communities
Select additional listings for more information
Way to Go!
An agent will be in contact soon!
