135 Eunola Lane (Lismore)
Under Construction
Freeport, FL 32439
Home by D.R. Horton
Last updated 1 day ago
The Price Range displayed reflects the base price of the homes built in this community.
You get to select from the many different types of homes built by this Builder and personalize your New Home with options and upgrades.
3 BR
2 BA
2 GR
1,580 SQ FT
Claim this listing to update information, get access to exclusive tools and more!

Floor Plan 1/1
Overview
1 Story
Single Family
135 Eunola Lane (Lismore) Home Info
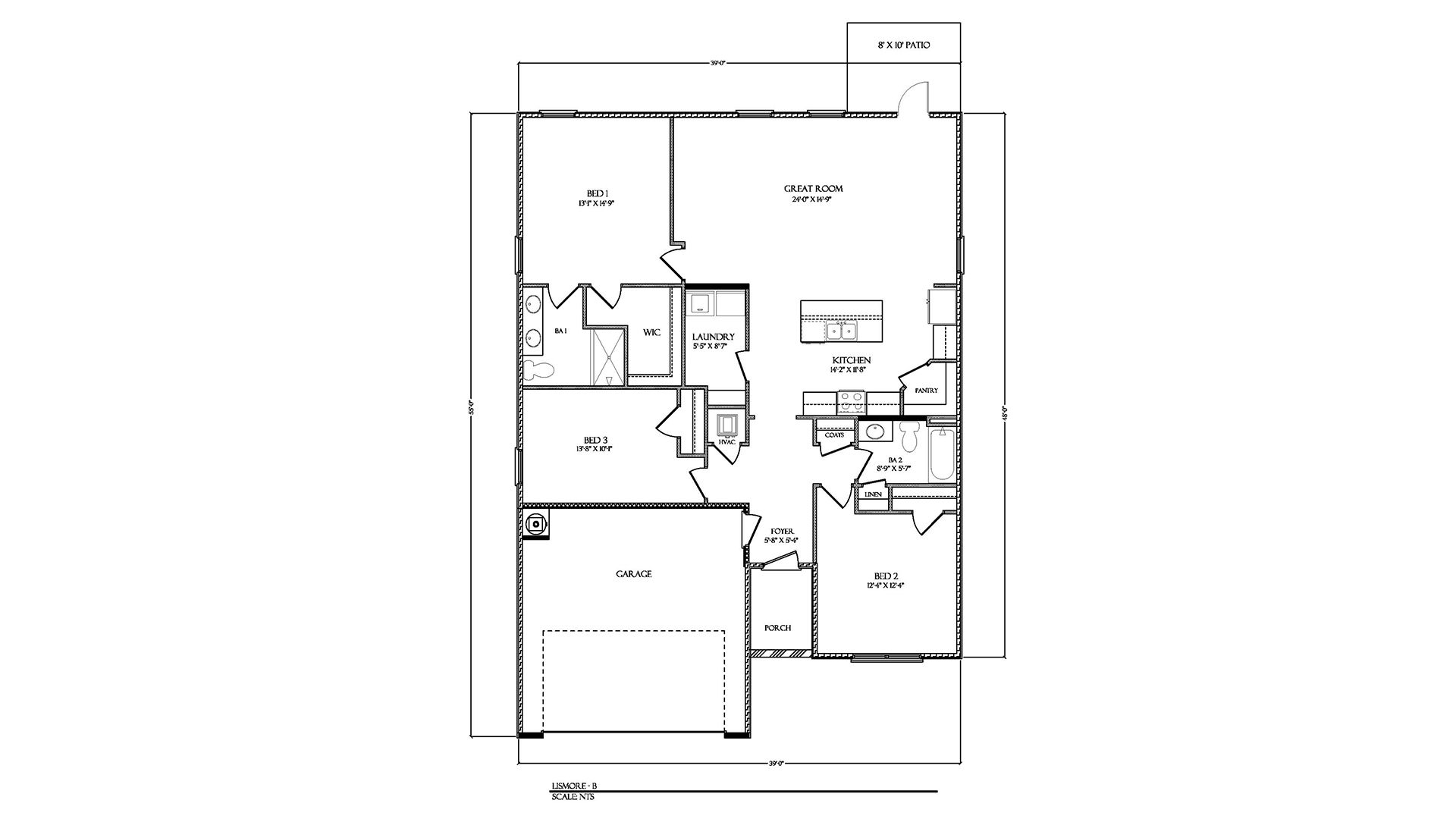
Welcome to 227 Eunola Lane, a new home in Phase III at Ashton Park in Freeport, Florida. Now released for pre-sale, this homesite offers the opportunity to secure new construction prior to groundbreaking. This is currently a dirt lot that will feature the Lismore floor plan. Buyers may have the ability to personalize select finishes depending on the stage of construction. Estimated completion timelines and build details available upon request. The Lismore floor plan has standard interior features including EVP in the shared areas and carpet in the bedrooms. The foyer opens to an open living area, with two secondary bedrooms and a full bathroom off to one side. The guest bedrooms have plenty of closet space and easy access to the shared bath. The kitchen is open to the living area and features granite countertops, stainless steel appliances, and an island with a breakfast bar that creates the perfect spot for casual dining or entertaining. The adjoining dining area is well-positioned for family meals, while the living room offers a comfortable space to relax, complete with views of the backyard. Located at the back of the home, the primary bedroom offers a peaceful retreat. The large bedroom has an ensuite bathroom, featuring a dual sink vanity, a shower, and an expansive closet designed for all your wardrobe needs. The patio at the back of the home provides the perfect place to enjoy outdoor living. For more information on the Lismore floor plan, give us a call today!
Floor plan center
View floor plan details for this property.
- Floor Plans
- Exterior Images
- Interior Images
- Other Media
Neighborhood
Community location & sales center
145 Eunola Lane
Freeport, FL 32439
145 Eunola Lane
Freeport, FL 32439
888-790-3488
Schools near Ashton Park Phase III
- Walton
- Freeport Elementary School
- Freeport Middle School
- Freeport High School
Actual schools may vary. Contact the builder for more information.
Amenities
Home details
Now building
This home is currently under construction at 135 Eunola Lane and will soon be available for move-in at Ashton Park Phase III. Contact D.R. Horton today to lock in your options!
Nearby schools
Walton
Freeport Elementary School
Elementary school. Grades PK to 4
Public school
Class ratio: 1: 17
Enrollment: 1123
850-892-1211
15381 331 Business, Freeport, FL, 32439
Freeport Middle School
Elementary-Middle school. Grades 5 to 8
Public school
Class ratio: 1: 19
Enrollment: 700
850-892-1221
360 Kylea Laird Dr, Freeport, FL, 32439
Freeport High School
High school. Grades 9 to 12
Public school
Class ratio: 1: 17
Enrollment: 557
850-892-1201
12615 331 Business, Freeport, FL, 32439
Actual schools may vary. We recommend verifying with the local school district, the school assignment and enrollment process.
Neighborhood amenities
Bargains & More
1.70 miles away
15890 331 Business
Publix
2.57 miles away
16400 US Highway 331 S
GCJ Enterprises Inc
5.95 miles away
229 Oakcrest Dr
Pizza Hut
1.92 miles away
113 Florida 20
Subway
1.92 miles away
101 Marquis Way
Sweet Southern Comfort
2.00 miles away
172 State Highway 20 E
Please note this information may vary. If you come across anything inaccurate, please contact us.
Builder details
D.R. Horton
In 1978, D.R. Horton broke ground on our first home in Fort Worth, Texas. Since that day, the company has defined its success not by bricks and mortar, but by the satisfaction of the families that make our houses their homes. Our foundation is a single, guiding principle: a value-first dedication to the individual needs of each and every one of our nation’s homebuyers.
From first-time homebuyers to empty nesters, our family of brands provides a home for every stage in life. Our highly-trained, market experts are where you want to live, from New Jersey to Hawaii, providing unique, personalized services tailored to your individual needs. But the real value comes from the quality construction we put into every home, and the peace of mind that comes with a premium-backed warranty from America’s Number One Homebuilder.
We’ve come a long way, and while more people choose our family of brands over any other builder in the country, we never forget the most important thing of all – the families that choose us for their place to call home.
So continue to live out those dreams, America, and know we’ll be here for you every step of the way.
More new homes in Freeport, Florida
135 Eunola Lane (Lismore) by D.R. Horton
saved to favorites!
To see all the homes you’ve saved, visit the My Favorites section of your account.
Discover More Great Communities
Select additional listings for more information
Way to Go!
An agent will be in contact soon!
