Macon Plan
Ready to build
16 Our Way Dr, Kilmarnock VA 22482
Home by D.R. Horton
Last updated 21 hours ago
The Price Range displayed reflects the base price of the homes built in this community.
You get to select from the many different types of homes built by this Builder and personalize your New Home with options and upgrades.
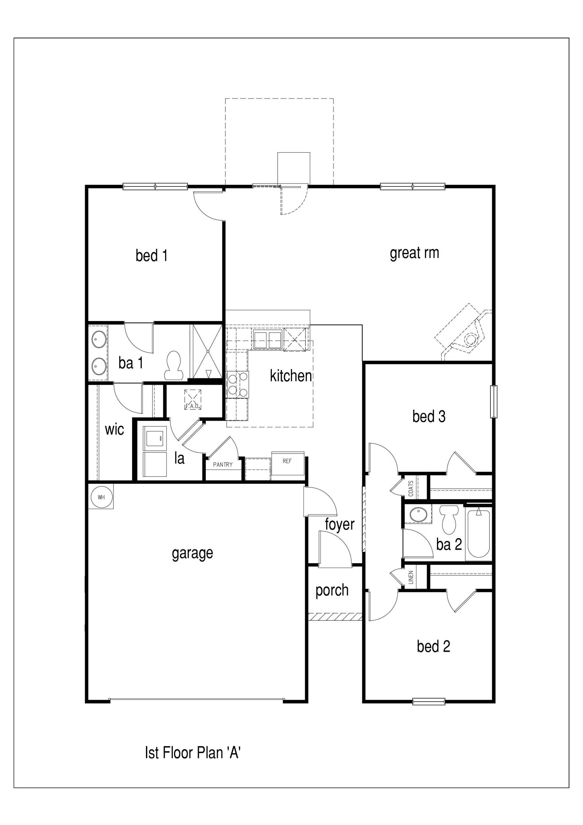
3 BR
2 BA
2 GR
1,343 SQ FT
Claim this listing to update information, get access to exclusive tools and more!

Floorplan 0 1/1
Overview
1 Story
1343 Sq Ft
2 Bathrooms
2 Car Garage
3 Bedrooms
Single Family
Macon Plan Info
Welcome to the Macon. This beautiful single-story home features 3 spacious bedrooms, 2 modern bathrooms, and a convenient 2-car garage. Perfect for families or those seeking comfortable, one-level living, this home offers a harmonious blend of style, functionality, and space. In addition to 2 spacious guest bedrooms, the grand primary suite includes beautiful natural light, a double vanity, and a huge walk-in closet. A large great room offers space for relaxation and dining and flows seamlessly into the kitchen, creating the perfect space for entertaining or family gatherings. With easy access just off the kitchen, an enclosed laundry room offers convenience and ease to your day-to-day life. Equipped with energy-efficient appliances and insulation to help save on utilities, this home offers the perfect combination of comfort and convenience.
Floor plan center
View floor plan details for this property.
- Floor Plans
- Exterior Images
- Interior Images
- Other Media
Neighborhood
Community location & sales center
16 Our Way Dr
Kilmarnock, VA 22482
16 Our Way Dr
Kilmarnock, VA 22482
888-355-8096
Schools near Springwood of Kilmarnock
- Lancaster County Public Schools
- Lancaster Primary School
- Lancaster High School
Actual schools may vary. Contact the builder for more information.
Amenities
Home details
Ready to build
Build the home of your dreams with the Macon plan by selecting your favorite options. For the best selection, pick your lot in Springwood of Kilmarnock today!
Nearby schools
Lancaster County Public Schools
Elementary school. Grades PK to 3.
- Public school
- Teacher - student ratio: 1:14
- Students enrolled: 316
36 Primary School Cir, Lancaster, VA, 22503
804-462-5100
High school. Grades 9 to 12.
- Public school
- Teacher - student ratio: 1:12
- Students enrolled: 403
8815 Mary Ball Rd, Lancaster, VA, 22503
804-462-5177
Actual schools may vary. We recommend verifying with the local school district, the school assignment and enrollment process.
Neighborhood amenities
Food Lion
0.80 mile away
424 N Main St
Tri-Star Supermarket
0.80 mile away
81 Irvington Rd
Walmart Supercenter
1.33 miles away
200 Old Fair Grounds Way
River Market
4.44 miles away
538 Rappahannock Dr
The River Market
4.44 miles away
1 Rappahannock Lndg
Higher Health
0.80 mile away
43 N Main St
Higher Health Foods
0.80 mile away
43 N Main St
Walmart Bakery
1.33 miles away
200 Old Fair Grounds Way
Out of the Oven
4.44 miles away
549 Rappahannock Dr
Chester's
0.65 mile away
80 Irvington Rd
Hunt Brothers Pizza
0.65 mile away
80 Irvington Rd
Northern Neck Burger Co
0.67 mile away
62 Irvington Rd
Domino's
0.71 mile away
23 W Church St
The Dub Shack
0.73 mile away
37 N Main St
Front Porch Coffee House
0.77 mile away
139 S Main St
Local
3.69 miles away
4337 Irvington Rd
Chesapeake Doughnut Company
4.44 miles away
500 Rappahannock Dr
Barkley's Boutique
0.69 mile away
44 Irvington Rd
Kathy Kathy
0.73 mile away
51 N Main St
Pandora Authorized Retailer
0.76 mile away
125 S Main St
Weekends Fashions
0.76 mile away
125 S Main St
Cato Fashions
0.80 mile away
459 N Main St
Kilmarnock Brewhaus
0.68 mile away
44 W Church St
The Dub Shack
0.73 mile away
37 N Main St
Rose's Steak House
1.31 miles away
652 N Main St
Byrd's Seafood
3.48 miles away
4357 Irvington Rd
Fish Hawk Oyster Bar
3.69 miles away
480 King Carter Dr
Please note this information may vary. If you come across anything inaccurate, please contact us.
Builder details
D.R. Horton
In 1978, D.R. Horton broke ground on our first home in Fort Worth, Texas. Since that day, the company has defined its success not by bricks and mortar, but by the satisfaction of the families that make our houses their homes. Our foundation is a single, guiding principle: a value-first dedication to the individual needs of each and every one of our nation’s homebuyers.
From first-time homebuyers to empty nesters, our family of brands provides a home for every stage in life. Our highly-trained, market experts are where you want to live, from New Jersey to Hawaii, providing unique, personalized services tailored to your individual needs. But the real value comes from the quality construction we put into every home, and the peace of mind that comes with a premium-backed warranty from America’s Number One Homebuilder.
We’ve come a long way, and while more people choose our family of brands over any other builder in the country, we never forget the most important thing of all – the families that choose us for their place to call home.
So continue to live out those dreams, America, and know we’ll be here for you every step of the way.
More new homes in Kilmarnock, Virginia
Macon Plan by D.R. Horton
saved to favorites!
To see all the homes you’ve saved, visit the My Favorites section of your account.
Discover More Great Communities
Select additional listings for more information
Way to Go!
An agent will be in contact soon!
