Madison Plan
Ready to build
154 Owls Head Farms Blvd, Freeport FL 32439
Home by D.R. Horton
Last updated 1 day ago
The Price Range displayed reflects the base price of the homes built in this community.
You get to select from the many different types of homes built by this Builder and personalize your New Home with options and upgrades.
4 BR
3 BA
3 GR
2,035 SQ FT
Claim this listing to update information, get access to exclusive tools and more!

Floorplan 1 1/1
Overview
1 Story
2035 Sq Ft
3 Bathrooms
3 Car Garage
4 Bedrooms
Single Family
Madison Plan Info
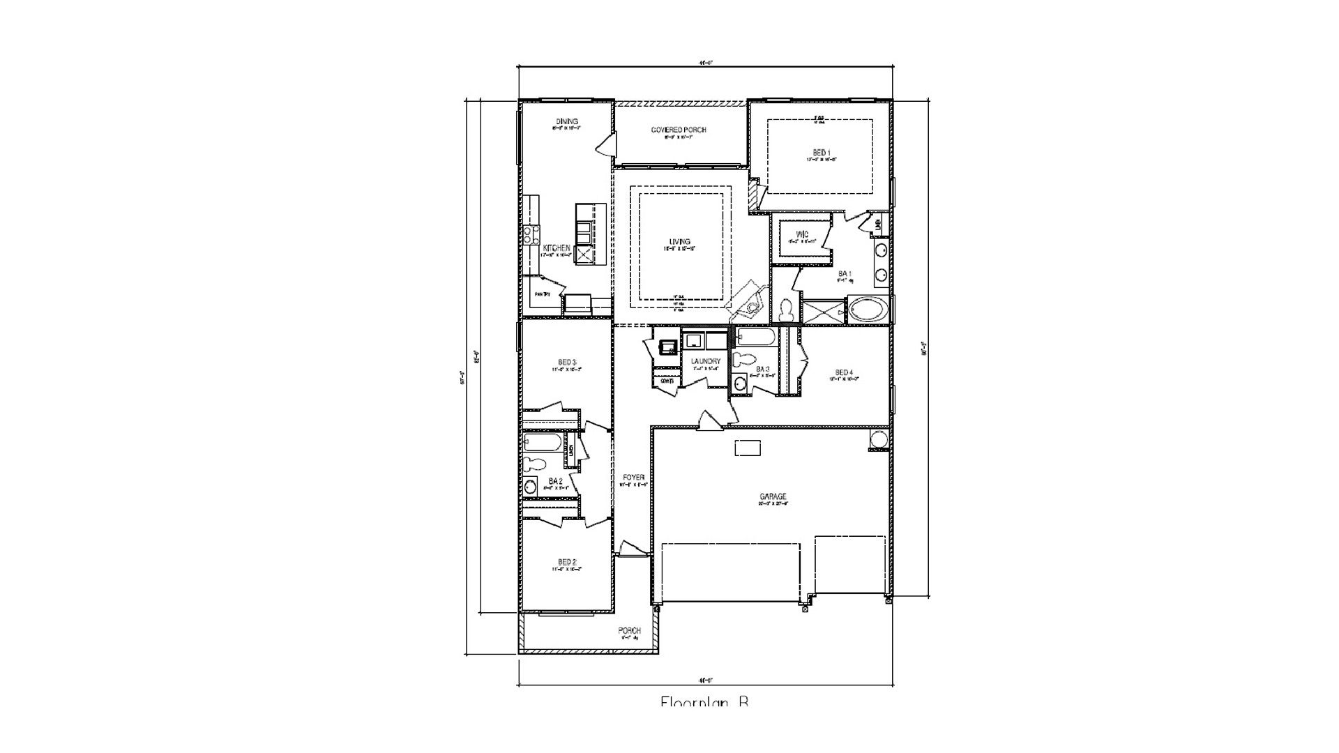
The Madison floorplan located in Owl's Head Farms community in Freeport, Florida greets you with a charming entryway that opens into a spacious and inviting living area. The kitchen is positioned at the heart of the home, featuring quartz countertops, Whirlpool stainless steel appliances, and an island that serves as a gathering point for family and friends. Tray ceilings and 3 large windows in the living room add to the openness of the home. The living room overlooks the patio and back yard. The adjacent dining room is flooded with light from windows and access through a glass door leading to the covered back patio. This area provides a comfortable space for shared meals. The Madison home boasts 4 bedrooms and 3 full baths in just under 2,000 SF of space. The primary bedroom is located at the back of the home, offering a peaceful retreat with a luxurious en-suite bathroom, complete with a double vanity, a walk-in shower, separate soaking tub and a large walk-in closet. Two additional bedrooms share a full bathroom at the front of the home. A 4th bedroom with a full ensuite and privacy door is located in a separate area of the home. Additional highlights include a three-car garage, and a laundry room with ample storage. The exterior of the home features Hardie Board siding with a brick skirt along the front and the other 3 sides are full brick. The Madison blends classic design with modern amenities, making it an ideal home for a family.
Floor plan center
View floor plan details for this property.
- Floor Plans
- Exterior Images
- Interior Images
- Other Media
Neighborhood
Community location & sales center
154 Owls Head Farms Blvd
Freeport, FL 32439
154 Owls Head Farms Blvd
Freeport, FL 32439
888-790-3488
Schools near Owl's Head Farms
- Walton
- Freeport Elementary School
- Freeport Middle School
Actual schools may vary. Contact the builder for more information.
Amenities
Home details
Ready to build
Build the home of your dreams with the Madison plan by selecting your favorite options. For the best selection, pick your lot in Owl's Head Farms today!
Nearby schools
Walton
Elementary school. Grades PK to 4.
- Public school
- Teacher - student ratio: 1:17
- Students enrolled: 1123
15381 331 Business, Freeport, FL, 32439
850-892-1211
Elementary-Middle school. Grades 5 to 8.
- Public school
- Teacher - student ratio: 1:19
- Students enrolled: 700
360 Kylea Laird Dr, Freeport, FL, 32439
850-892-1221
Actual schools may vary. We recommend verifying with the local school district, the school assignment and enrollment process.
Neighborhood amenities
Bargains & More
3.24 miles away
15890 331 Business
Publix
3.88 miles away
16400 US Highway 331 S
GCJ Enterprises Inc
7.13 miles away
229 Oakcrest Dr
Pizza Hut
3.42 miles away
113 Florida 20
Subway
3.42 miles away
101 Marquis Way
Sweet Southern Comfort
3.49 miles away
172 State Highway 20 E
Please note this information may vary. If you come across anything inaccurate, please contact us.
Builder details
D.R. Horton
In 1978, D.R. Horton broke ground on our first home in Fort Worth, Texas. Since that day, the company has defined its success not by bricks and mortar, but by the satisfaction of the families that make our houses their homes. Our foundation is a single, guiding principle: a value-first dedication to the individual needs of each and every one of our nation’s homebuyers.
From first-time homebuyers to empty nesters, our family of brands provides a home for every stage in life. Our highly-trained, market experts are where you want to live, from New Jersey to Hawaii, providing unique, personalized services tailored to your individual needs. But the real value comes from the quality construction we put into every home, and the peace of mind that comes with a premium-backed warranty from America’s Number One Homebuilder.
We’ve come a long way, and while more people choose our family of brands over any other builder in the country, we never forget the most important thing of all – the families that choose us for their place to call home.
So continue to live out those dreams, America, and know we’ll be here for you every step of the way.
More new homes in Freeport, Florida
Madison Plan by D.R. Horton
saved to favorites!
To see all the homes you’ve saved, visit the My Favorites section of your account.
Discover More Great Communities
Select additional listings for more information
Way to Go!
An agent will be in contact soon!
